Vuokrataan toimistotilat - Helsinki
Vilhonkatu 6, Kluuvi, 00100 Helsinki #10850127
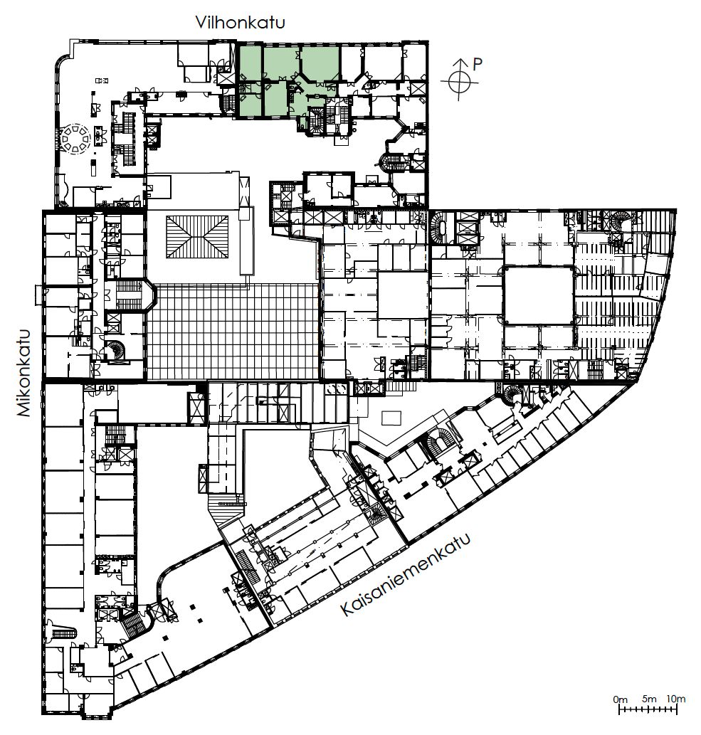
4. kerroksen toimisto, jossa on sekä huoneita että avotilaa. Näkymät sekä Vilhonkadulle että sisäpihalle. Tilassa on hyvä huonekorkeus ja sen erikoisuutena on useampi upea vanha kakluuni.
Osoite
Vilhonkatu 6, 00100 Helsinki
Tilatyyppi
Toimistotilaa
173 m2
Pohjapiirros
Kiinteistö
Historiaa henkivä toimisto- ja liikekiinteistö erinomaisella sijainnilla kaikkien palveluiden äärellä Fennia-korttelissa.
Arkkitehti Theodor Höijerin suunnittelema Vilhonkatu 6 valmistui vuonna 1888, ja se on yksi hänen hienoimmista tyylinäytteistään, jossa historiallinen arvokkuus yhdistyy kaupunkikuvan ajattomaan eleganssiin. Alun perin asuinrakennuksena toiminut rakennus on vuosien saatossa muuntunut liike- ja toimistokäyttöön, mutta on säilyttänyt ainutlaatuisen ilmeensä ja tunnelmansa läpi vuosikymmenten. Tilat ovat kokeneet useita uudistuksia, ja osassa niistä on kunnostettu alkuperäisiä elementtejä, kuten upeat vanhat kakluunit. Rakennuksen julkisivu on peruskorjattu vuoden 2025 aikana.
Katutasossa sijaitsevat liiketilat ja ylemmissä kerroksissa toimistotilat. Kiinteistö tarjoaa sekä perinteistä huonetoimistoa että helposti muunneltavaa avotilaa, ja tiloissa on miellyttävän korkea huonekorkeus.
Sijainti Fennia-korttelissa, aivan rautatientorin vieressä, takaa erinomaiset julkisen liikenteen yhteydet koko pääkaupunkiseudulle. Myös kaupalliset ja yrityspalvelut ovat vain lyhyen kävelymatkan päässä.
Kaikille Fennia-korttelin kiinteistöille on myönnetty BREEAM In-Use Excellent -tason ympäristösertifikaatti, ja koko kortteli toimii 100 % päästöttömällä energialla, kuten tuulisähköllä ja uusiutuvalla kaukolämmöllä.
Arkkitehti Theodor Höijerin suunnittelema Vilhonkatu 6 valmistui vuonna 1888, ja se on yksi hänen hienoimmista tyylinäytteistään, jossa historiallinen arvokkuus yhdistyy kaupunkikuvan ajattomaan eleganssiin. Alun perin asuinrakennuksena toiminut rakennus on vuosien saatossa muuntunut liike- ja toimistokäyttöön, mutta on säilyttänyt ainutlaatuisen ilmeensä ja tunnelmansa läpi vuosikymmenten. Tilat ovat kokeneet useita uudistuksia, ja osassa niistä on kunnostettu alkuperäisiä elementtejä, kuten upeat vanhat kakluunit. Rakennuksen julkisivu on peruskorjattu vuoden 2025 aikana.
Katutasossa sijaitsevat liiketilat ja ylemmissä kerroksissa toimistotilat. Kiinteistö tarjoaa sekä perinteistä huonetoimistoa että helposti muunneltavaa avotilaa, ja tiloissa on miellyttävän korkea huonekorkeus.
Sijainti Fennia-korttelissa, aivan rautatientorin vieressä, takaa erinomaiset julkisen liikenteen yhteydet koko pääkaupunkiseudulle. Myös kaupalliset ja yrityspalvelut ovat vain lyhyen kävelymatkan päässä.
Kaikille Fennia-korttelin kiinteistöille on myönnetty BREEAM In-Use Excellent -tason ympäristösertifikaatti, ja koko kortteli toimii 100 % päästöttömällä energialla, kuten tuulisähköllä ja uusiutuvalla kaukolämmöllä.
Sijainti
Kiinteistön vieressä sijaitsevat Rautatieasema ja Rautatientorin linja-autoasema takaavat erinomaisen julkisen liikenteen saavutettavuuden, jota täydentää korttelin alapuolella sijaitseva Helsingin yliopiston metroasema.
Pysäköinti
Autopaikat P-Eliel ja P-Kluuvi
Palvelut
Fennia-korttelissa on mittava määrä ravintoloita ja muita viihdepalveluita. Keskeinen sijainti ydinkeskustassa takaa sen, että kaikki kaupalliset ja yrityspalvelut sijaitsevat lyhyen kävelymatkan etäisyydellä.
Kulkuyhteydet
Lähimmälle bussipysäkille 100
Lähimmälle juna-asemalle 100
Lähimmälle metroasemalle 100
Lähimmälle raitiovaunupysäkille 200
Lentokentälle 30 min
Lähimmälle juna-asemalle 100
Lähimmälle metroasemalle 100
Lähimmälle raitiovaunupysäkille 200
Lentokentälle 30 min
Vapautuu
Kysy
Rakennusvuosi
1888
Kerros
4
Energiatehokkuusluokka
C2018 (liiketilat) D2018 (toimistot)
Ympäristöluokitus
BREEAM In-Use Excellent,GRESB Global Sector Leader 2025
Ota yhteyttä
Sponda Oy
Yrjönkatu 29C, 00100 Helsinki
Näytä puhelinnumero
020 43131
Laura Toponen
Senior Leasing Manager
Näytä puhelinnumero
+35850 413 4223
Sponda Oy
https://www.sponda.fiPyydä lisätietoa
