Vuokrataan toimistotilat - Helsinki
Merikortteli, Pursimiehenkatu 29-31, Punavuori, 00150 Helsinki #10850090
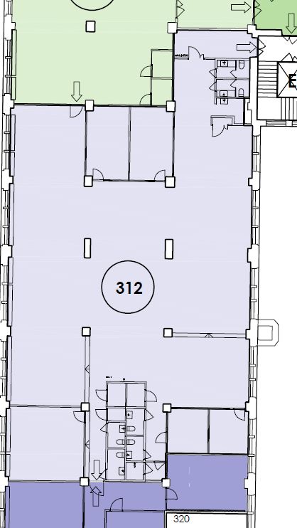
Upea kolmannen kerroksen 539 m² toimisto erinomaisella sijainnilla Punavuoressa, suositussa dynaamisessa ja yhteisöllisessä Merikorttelissa!
Upeat puistomaiset toiseen suuntaan ja toisella puolella on sisäpihanäkymät
Tila on muokattavissa vuokralaisen toiveiden mukaan.
Erinomainen sijainti Punavuoressa, suositussa dynaamisessa ja yhteisöllisessä Merikorttelissa!
Ilmoituksen sisäkuvat ovat yleiskuvia kiinteistön eri tiloista.
Tunnelmallinen Merikortteli on ainutlaatuinen kiinteistö merellisen Punavuoren sydämessä.
Talossa toimii monipuolinen joukko yrityksiä kahvipaahtimosta mainostoimistoihin, jotka yhdessä muodostavat ainutlaatuisen ja eloisan työyhteisön.
Merikorttelin selkeä rakenne tekee erilaisten pohjaratkaisujen suunnittelusta helppoa ja joustavaa. Avarien tilojen huonekorkeus on poikkeuksellisen suuri. Isoista, luonnonvaloa tulvivista ikkunoista voi ihailla upeita ympäröiviä maisemia: kauniita historiallisia rakennuksia ja Punavuoren eloisaa katukuvaa. Lähistöllä on paljon ravintoloita ja Hietalahden kauppahalli löytyy nurkan takaa. Punavuoreen on hyvät kulkuyhteydet ja Baana sijaitsee ihan vieressä. Merenranta on vain kivenheiton päässä.
Näkyvällä paikalla
Hissi
ScanReal Oy LKV
Opus Business Park
Hitsaajankatu 24
00810 Helsinki
info@scanreal.fi
Puh:
Näytä puhelinnumero
020 730 8830
Sopivat toimitilat yhdellä otolla!
Kartoitamme toimitilatarpeesi ja etsimme yrityksellesi parhaiten sopivat vapaat toimitilat. Koska vuokranantajat maksavat palvelumme, on tämä yrityksellesi veloituksetonta.
OTA YHTEYTTÄ - SOVI NÄYTTÖ!
Kaikki kohteemme eivät ole netissä, kerro tilatarpeesi niin kartoitamme vaihtoehdot.
Palvelumme on tilanhakijalle ilmainen
