Myydään toimistotilat, liiketilat, varastotilat, työtilat - Espoo
Itätuulenkuja 5, Tapiola, 02100 Espoo #10849910
Moneen soveltuva liiketila upealla sijainnilla Espoon Tapiolassa!
Osoite
Itätuulenkuja 5, 02100 Espoo
Tilatyyppi
Toimistotilaa
36 - 122,5 m2
Liiketilaa
36 - 122,5 m2
Varastotilaa
11 - 38,5 m2
Työtilaa
36 - 122,5 m2
Yhteensä
36 - 122,5 m2
Virtuaaliesittely
Myyntihinta
Alkaen 110'000 € (velaton hinta)
Muuta
Tilassa on pitkään ollut kampaamo ja kauneudenhoitoalan palveluita tarjoava yritys. Tila soveltuu hyvin vastaavaan käyttöön, mutta soveltuu hyvin toimistoksi tai erikoistavarakaupaksikin. Erinomainen sijainti, näkyvällä paikalla aivan kauppakeskus Ainoan yhteydessä.
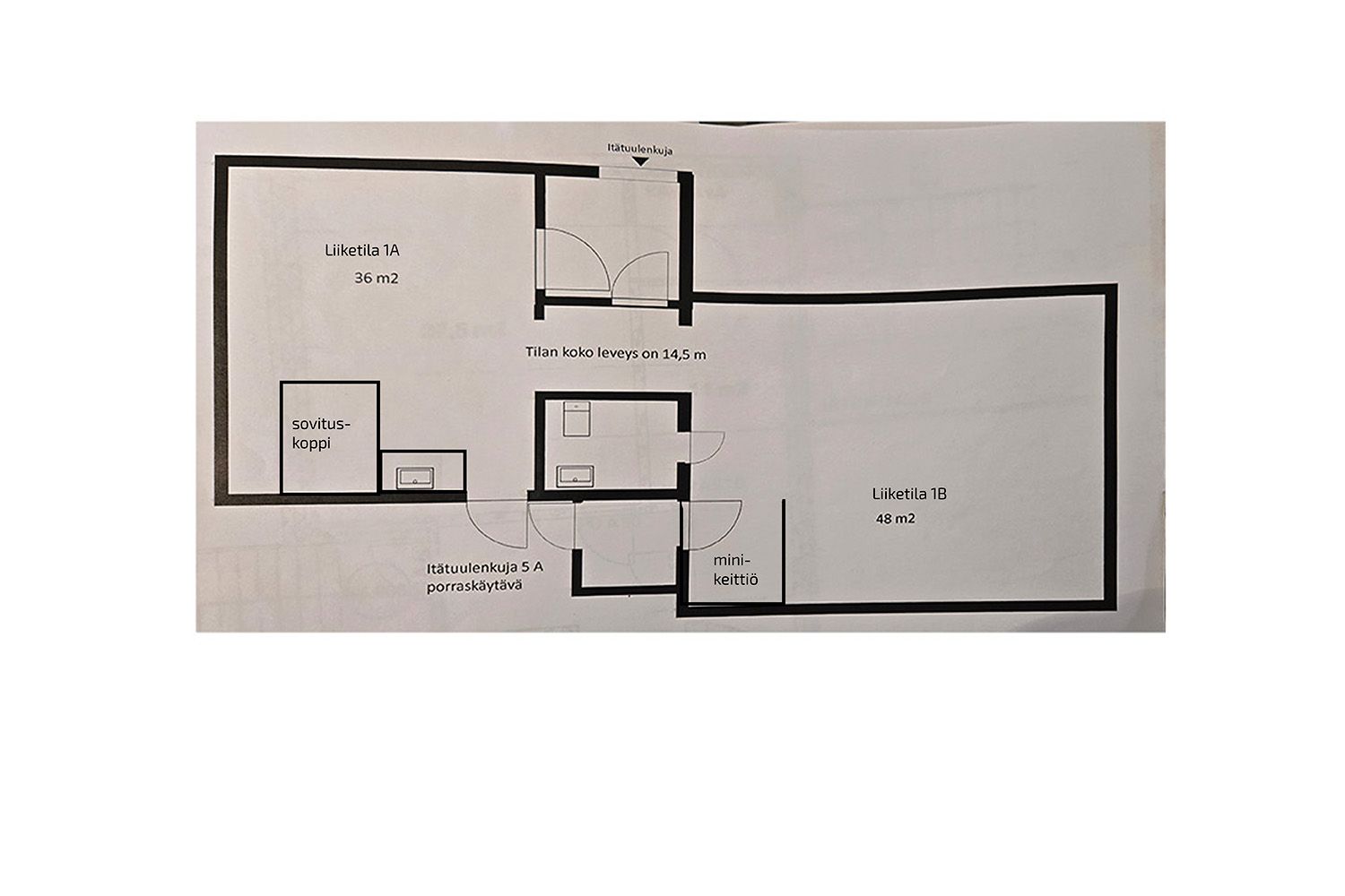
Tila koostuu kahdesta vierekkäisestä huoneistosta, jossa on isot näyteikkunat juuri valmistuneen korkeatasoisen ja aukiomaisena toimivan kansitason katutilan suuntaan, Itätuulenkujalle. Liikehuoneistot ovat nykyisellään yhteiskäytössä ja voidaan myydä yhdessä tai erikseen.
Liiketila 1A on pinta-alaltaan 36 m² ja siihen kuuluu kellarista 27,5 m² kokoinen varastotila. Isompi tila (liiketila 1B) on pinta-alaltaan 48 m² ja siihen kuuluu 11 m² kokoinen varastotila kellarista. Liiketilan 1B puolella on useampi vesipiste, WC, ja pieni taukohuone minikeittiöllä. Liiketilan 1A puolella on takaosassa ns. kampaamon ”väriensekoituskeittiö” vesipisteellä sekä hoitotilana toiminut nurkkaus. Liiketilaan 1B on myös asennettu vaatteiden vaihtoa varten pieni, mutta tyylikäs, sovituskoppi. Kellarin varastotilat voidaan myös tarvittaessa vuokrata erikseen kuukausivuokrahintaan 499 €/kk, kysy tilan vapautumisesta ja vuokraehdoista tarvittaessa lisää.
Tilan nykyinen omistaja voi jäädä tilaan vuokralle, mikäli uusi ostaja ei tarvitse tilaa omaan käyttöön. Tilassa olevat huonekalut, irtokalusteet, tarvikkeet ja tuotteet eivät sisälly kauppaan. Molempien huoneistojen vastike on harvinaislaatuisesti yksinkertainen. Kauppaan ei kuulu autopaikkaa, mutta taloyhtiön parkkihallista voi tiedustella vapautuvia autopaikkoja.
Erinomaisten Ainoan kaupanpalveluiden ääressä sekä loistavat liikenneyhteydet, metro ja bussiterminaali aivan vieressä! Ainoan parkkihallissa runsaasti paikoitustilaa asiakkaille.
Sopii kampaamo- ja kauneudenhoitolan yrittäjälle tai monen muunkin alan yritykselle – tämän sijainnin kohteet ovat ani harvassa, tartu tilaisuuteesi!
Kohdetiedot
Sijainti
Katuosoite: Itätuulenkuja 5, 02100 Espoo
Kaupunginosa: Tapiola
Ympäristö: Kauppakeskus Ainoa ja asuin- ja liikerakennuksia,
Tontti
Pinta-ala: 3082 m²
Tontin omistus: Oma
Rakennus/huoneisto
Pinta-ala: 1A) 36 m² + 27,5 m²
Pinta-ala: 1B) 48 m² + 11 m²
Kiinteistötyyppi: Kerrostalo
Rakennusvuosi:1982
Tilatyyppi: Liiketila
Kunto, varusteet ja palvelut: Hyväkuntoinen tila. Huoneistossa sosiaalitilat ja kampaamon pesupisteet valmiina, väriensekoituskeittiö, sovituskoppi ja hoitonurkkaus sekä yhteinen tuulikaappi. Kellarissa varastotilaa.
Energialuokka: D
Lämmitys: Kaukolämpö
Vapautuu: Sopimuksen mukaan
Myyntihinta ja kulut (1A)
Myyntihinta 1 A: 72’052 €
Velkaosuus liiketila 1 A: 34’948 € (12/25)
Velaton hinta liiketila 1 A: 110’000 €
Hoitovastike liiketila 1 A: 394,85 €/ kk
Rahoitusvastike liiketila 1 A: 245,85 €/kk
Sähkömaksu: Omistaja tekee tilaan oman sähkösopimuksen
Vesimaksu: Mittauksen mukaan
Lämmitys: Sisältyy vastikkeeseen
Myyntihinta ja kulut (1B)
Myyntihinta 1 B: 102’472 €
Velkaosuus liiketila 1 B: 37’528 € (12/25)
Velaton myyntihinta 1 B: 140’00 €
Hoitovastike liiketila 1 B: 424,00 €/ kk
Rahoitusvastike liiketila 1 B: 264 €/kk
Sähkömaksu: Omistaja tekee tilaan oman sähkösopimuksen
Vesimaksu: Mittauksen mukaan
Lämmitys: Sisältyy vastikkeeseen
Tila koostuu kahdesta vierekkäisestä huoneistosta, jossa on isot näyteikkunat juuri valmistuneen korkeatasoisen ja aukiomaisena toimivan kansitason katutilan suuntaan, Itätuulenkujalle. Liikehuoneistot ovat nykyisellään yhteiskäytössä ja voidaan myydä yhdessä tai erikseen.
Liiketila 1A on pinta-alaltaan 36 m² ja siihen kuuluu kellarista 27,5 m² kokoinen varastotila. Isompi tila (liiketila 1B) on pinta-alaltaan 48 m² ja siihen kuuluu 11 m² kokoinen varastotila kellarista. Liiketilan 1B puolella on useampi vesipiste, WC, ja pieni taukohuone minikeittiöllä. Liiketilan 1A puolella on takaosassa ns. kampaamon ”väriensekoituskeittiö” vesipisteellä sekä hoitotilana toiminut nurkkaus. Liiketilaan 1B on myös asennettu vaatteiden vaihtoa varten pieni, mutta tyylikäs, sovituskoppi. Kellarin varastotilat voidaan myös tarvittaessa vuokrata erikseen kuukausivuokrahintaan 499 €/kk, kysy tilan vapautumisesta ja vuokraehdoista tarvittaessa lisää.
Tilan nykyinen omistaja voi jäädä tilaan vuokralle, mikäli uusi ostaja ei tarvitse tilaa omaan käyttöön. Tilassa olevat huonekalut, irtokalusteet, tarvikkeet ja tuotteet eivät sisälly kauppaan. Molempien huoneistojen vastike on harvinaislaatuisesti yksinkertainen. Kauppaan ei kuulu autopaikkaa, mutta taloyhtiön parkkihallista voi tiedustella vapautuvia autopaikkoja.
Erinomaisten Ainoan kaupanpalveluiden ääressä sekä loistavat liikenneyhteydet, metro ja bussiterminaali aivan vieressä! Ainoan parkkihallissa runsaasti paikoitustilaa asiakkaille.
Sopii kampaamo- ja kauneudenhoitolan yrittäjälle tai monen muunkin alan yritykselle – tämän sijainnin kohteet ovat ani harvassa, tartu tilaisuuteesi!
Kohdetiedot
Sijainti
Katuosoite: Itätuulenkuja 5, 02100 Espoo
Kaupunginosa: Tapiola
Ympäristö: Kauppakeskus Ainoa ja asuin- ja liikerakennuksia,
Tontti
Pinta-ala: 3082 m²
Tontin omistus: Oma
Rakennus/huoneisto
Pinta-ala: 1A) 36 m² + 27,5 m²
Pinta-ala: 1B) 48 m² + 11 m²
Kiinteistötyyppi: Kerrostalo
Rakennusvuosi:1982
Tilatyyppi: Liiketila
Kunto, varusteet ja palvelut: Hyväkuntoinen tila. Huoneistossa sosiaalitilat ja kampaamon pesupisteet valmiina, väriensekoituskeittiö, sovituskoppi ja hoitonurkkaus sekä yhteinen tuulikaappi. Kellarissa varastotilaa.
Energialuokka: D
Lämmitys: Kaukolämpö
Vapautuu: Sopimuksen mukaan
Myyntihinta ja kulut (1A)
Myyntihinta 1 A: 72’052 €
Velkaosuus liiketila 1 A: 34’948 € (12/25)
Velaton hinta liiketila 1 A: 110’000 €
Hoitovastike liiketila 1 A: 394,85 €/ kk
Rahoitusvastike liiketila 1 A: 245,85 €/kk
Sähkömaksu: Omistaja tekee tilaan oman sähkösopimuksen
Vesimaksu: Mittauksen mukaan
Lämmitys: Sisältyy vastikkeeseen
Myyntihinta ja kulut (1B)
Myyntihinta 1 B: 102’472 €
Velkaosuus liiketila 1 B: 37’528 € (12/25)
Velaton myyntihinta 1 B: 140’00 €
Hoitovastike liiketila 1 B: 424,00 €/ kk
Rahoitusvastike liiketila 1 B: 264 €/kk
Sähkömaksu: Omistaja tekee tilaan oman sähkösopimuksen
Vesimaksu: Mittauksen mukaan
Lämmitys: Sisältyy vastikkeeseen
Vapautuu
Sopimuksen mukaan
Rakennusvuosi
1982
Katutasossa
Näkyvällä paikalla
Ota yhteyttä
Tilat.fi
KTM, LKV Antti Soivio
Näytä puhelinnumero
0400 446 553
OTM, LKV Riikka Tuominen
Näytä puhelinnumero
0400 551 790
KTM, LKV Maria-Sofia Puhakka
Näytä puhelinnumero
0400-150330
MBA, LKV Susanne Wallenius
Näytä puhelinnumero
0400-128877
LKV Tilat.fi Oy on toimitilojen välitykseen erikoistunut yritys.
http://www.tilat.fiPyydä lisätietoa
