Vuokrataan toimistotilat, liiketilat, näyttelytilat, muut tilat - Jyväskylä
Kauppalaispihalla liike- / toimistotila, Asemakatu 11, 40100 Jyväskylä #10849680
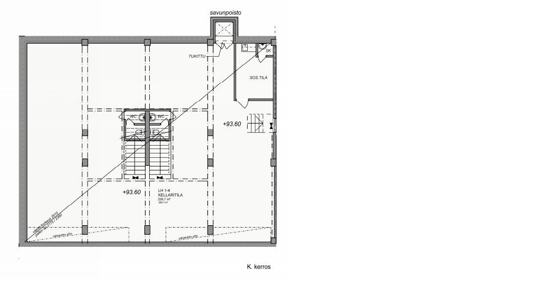
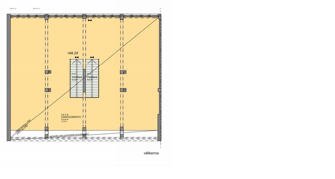
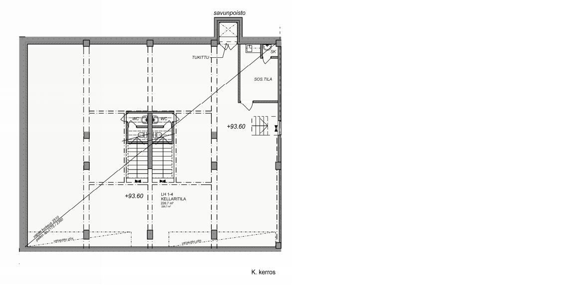
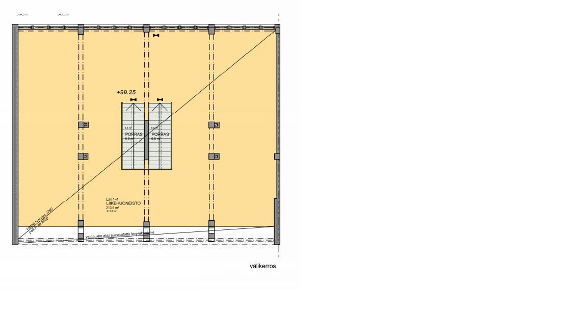
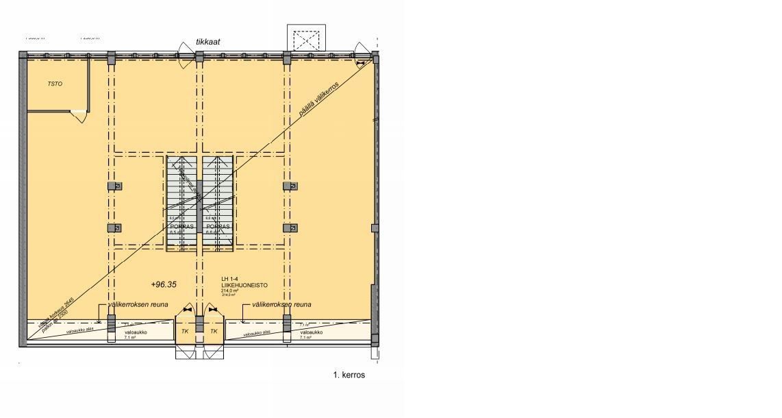
Vuokrataan Jyväskylän keskustasta erinomaiselta paikalta yhteensä n. 427 - 654 m2 liike- / myymälätilaa. Tilat sijaitsevat kolmessa kerroksessa, joista keskikerros sijaitsee katutasossa. Aiemmin tila on palvellut Second Hand-myymälää ja vaateliike Halosta.
Katutasossa ja 2. kerroksessa myymälätilaksi soveltuvaa, avaraa tilaa johon tulee paljon valoa isoista näyteikkunoista. Alakerrassa pieni varasto ja henkilökunnalle tauko- ja sosiaalitilat.
Pysäköintitilaa on saatavilla kiinteistön takana.
Lisätiedot ja näytöt: Henri Kumpulainen, 040 864 3631, henri.kumpulainen@aveon.fi
Katutasossa
Näkyvällä paikalla
Aveon Real Estate Oy
Kauppakatu 18 C 26, 40100 Jyväskylä
Henri Kumpulainen
Puh.
Näytä puhelinnumero
040 864 3631
henri.kumpulainen@aveon.fi
Olemme kiinteistöliiketoiminnan asiantuntija, joka toimii yrittäjämäisesti neuvonantajana kiinteistökaupoissa, toimitilavälittämisessä sekä kiinteistökehityksessä.
Asiakkaitamme ovat kotimaiset ja ulkomaiset kiinteistönomistajat, -sijoittajat sekä tilojen käyttäjät kaikkialla Suomessa.
