Myydään toimistotilat, tuotantotilat, varastotilat - Tampere
Joentaustankatu 5, Myllypuro, 33330 Tampere #10849562
Myydään teollisuuskiinteistö Tampereen Raholassa
Osoite
Joentaustankatu 5, 33330 Tampere
Tilatyyppi
Toimistotilaa
115 m2
Tuotantotilaa
250 m2
Varastotilaa
250 m2
Yhteensä
365 m2
Myyntihinta
260000
Kiinteistö
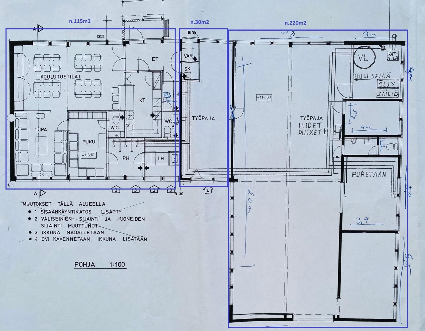
Myydään Tampereen Myllypurossa varasto-/tuotantokiinteistö
Teollisuusalueella os. Joentaustankatu 5 myydään siistikuntoinen, monikäyttöinen kiinteistö rakennuksineen. Kolmenkulman ABC:lle ja moottoritien liittymään matkaa n. 1,5 km.
Tontti on ympäriajettava ja sillä sijaitsee L-mallinen rakennus. Rakennus koostuu hallista jonka yhteydessä on myös varastohuone sekä puku- ja sosiaalitilat. Tästä on erotettu omaksi tilakseen n. 30 m2 kokoinen autohalli/työpaja omalla nosto-ovella. Lisäksi iso ns. koulutustila, jossa sauna-osasto. Tämä soveltuu hyvin toimisto- ja/tai sosiaalitiloiksi tai sitä voidaan vuokrata saunatilana. Siistikuntoista monipuolista tilaa. Rakennuksen tekniikkaa on uusittu ja se on mm. liitetty maalämpöön.
Tontin tiedot:
-Tontti 1815 m2
-Oma omisteinen tontti
-Tasamaasto
-Asfaltoitu piha
-Kokonaan aidattu
-E-luku 0,5 - rakennusoikeutta on jäljellä n. 540 m2
-Ympäriajettava piha
Rakennuksen tiedot:
-1979 rakennettu 1-kerroksinen tuotanto-/varastorakennus n. 360m2.
-Maalämpö
-Koneellinen ilmanvaihto
-Paineilmaverkosto
-Voimavirta 3x63
-Nosto-ovi 3,5 x 3 m, oven luona lisälämmitin
-Vapaa korkeus n. 3 m kattopalkin alaosaan
-Epoksilattia
-Halli jonka yhteydessä puku- ja sosiaalitilat, toimisto ja tekninen tila yht. n. 220 m2
-Erillinen autohalli/työpaja n. 30m2 jossa nosto-ovi. Yhdistettävissä muihin tiloihin.
-Saunaosasto/koulutustila/sosiaalitila/toimisto, jonne erillinen sisäänkäynti n. 115 m2. Tämä koostuu eteisestä jossa wc-tilat, keittiöstä, L-mallisesta avotilasta, puku-, pesu- ja saunahuoneesta.
Kiinteistö soveltuu joko sijoitukseen tai omaan käyttöön.
Ole yhteydessä, sovitaan käyntiaikaa paikan päälle!
Teollisuusalueella os. Joentaustankatu 5 myydään siistikuntoinen, monikäyttöinen kiinteistö rakennuksineen. Kolmenkulman ABC:lle ja moottoritien liittymään matkaa n. 1,5 km.
Tontti on ympäriajettava ja sillä sijaitsee L-mallinen rakennus. Rakennus koostuu hallista jonka yhteydessä on myös varastohuone sekä puku- ja sosiaalitilat. Tästä on erotettu omaksi tilakseen n. 30 m2 kokoinen autohalli/työpaja omalla nosto-ovella. Lisäksi iso ns. koulutustila, jossa sauna-osasto. Tämä soveltuu hyvin toimisto- ja/tai sosiaalitiloiksi tai sitä voidaan vuokrata saunatilana. Siistikuntoista monipuolista tilaa. Rakennuksen tekniikkaa on uusittu ja se on mm. liitetty maalämpöön.
Tontin tiedot:
-Tontti 1815 m2
-Oma omisteinen tontti
-Tasamaasto
-Asfaltoitu piha
-Kokonaan aidattu
-E-luku 0,5 - rakennusoikeutta on jäljellä n. 540 m2
-Ympäriajettava piha
Rakennuksen tiedot:
-1979 rakennettu 1-kerroksinen tuotanto-/varastorakennus n. 360m2.
-Maalämpö
-Koneellinen ilmanvaihto
-Paineilmaverkosto
-Voimavirta 3x63
-Nosto-ovi 3,5 x 3 m, oven luona lisälämmitin
-Vapaa korkeus n. 3 m kattopalkin alaosaan
-Epoksilattia
-Halli jonka yhteydessä puku- ja sosiaalitilat, toimisto ja tekninen tila yht. n. 220 m2
-Erillinen autohalli/työpaja n. 30m2 jossa nosto-ovi. Yhdistettävissä muihin tiloihin.
-Saunaosasto/koulutustila/sosiaalitila/toimisto, jonne erillinen sisäänkäynti n. 115 m2. Tämä koostuu eteisestä jossa wc-tilat, keittiöstä, L-mallisesta avotilasta, puku-, pesu- ja saunahuoneesta.
Kiinteistö soveltuu joko sijoitukseen tai omaan käyttöön.
Ole yhteydessä, sovitaan käyntiaikaa paikan päälle!
Vapautuu
Kysy
Ota yhteyttä
Logistila Oy
Kauppakatu 14, 33210 TAMPERE
Tuomas Lehtinen
Näytä puhelinnumero
044 491 5961
Pyydä lisätietoa
