Vuokrataan varastotilat - Tuusula
KOY Amerin Talliosake tila 43 – parvi, wc, ilmalämpöpumppu, Korvenrannantie 25, 04300 Tuusula #10849502
Suositulta Amerin Talliosakkeelta monikäyttöinen varasto, autotalli, harraste-, toimitila 43. Tilassa jo valmiina valoisa, ikkunallinen parvi sekä wc ja ilmalämpöpumppu.
Osoite
Korvenrannantie 25, 04300 Tuusula
Tilatyyppi
Varastotilaa
57 m2
Vuokra
720 € / kk
Kiinteistö
KOY Amerin Talliosake
Sijainti
Amerin Talliosake sijaitsee hyvien kulkuyhteyksien varrella Tuusulan eteläpuolella, Hyrylän teollisuusalueen tuntumassa, Sulan kaupunginosassa. Tuusulanväylälle ajaa muutamassa minuutissa ja Kehä 3:lle matkaa noin 9 minuuttia. Kohde soveltuu hyvin esim. Uudenmaan alueella toimiville yrityksille, jotka tarvitsevat keskeiseltä paikalta tilaa toimia.
Muuta
Vuokrataan vain yritysasiakkaille – vuokraan lisätään ALV 25,5%.
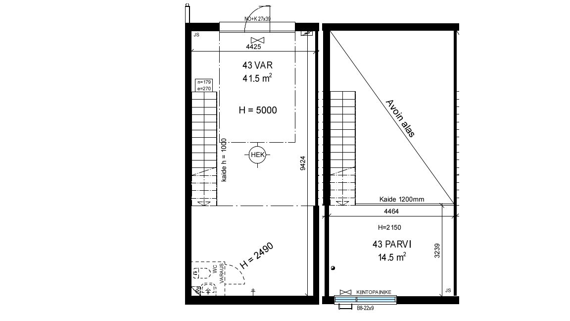
Tilan lattiapinta-ala on 42 m² ja parven 15 m². Yhteispinta-ala 57 m².
Moottoroitu nosto-ovi erillisellä käyntiovella. Autolla sisään ajettava tila. Tilamitat: 9,42 (Pituus) 4,42 (Leveys) 5,00 (Korkeus). Ovimitat: 2,70 (Leveys) 3,90 (Korkeus).
Käyttötarkoitusesimerkkejä: - toimitila - varastotila - yrityksen työtarvikevarasto / kalustovarasto - kimppatalli - harrastetila - bändikämppä - autotalli - moottoripyörätalli - mönkijätalli. Tila ei sovellu autokorjaamoksi eikä autopesulaksi.
Tila on sähkölämmitteinen. Vuokralainen tekee tilaan oman sähkösopimuksen. Vesi- ja sähkömaksu kulutuksen mukaan. Vakuus kahden kuukauden vuokraa vastaava määrä. Haetaan pitkäaikaista vuokralaista. Luottotiedot tarkistetaan.
Talliosake tuottaa joustavasti muunneltavia hallitiloja ympäri Suomen, joita yritykset ja yksityishenkilöt käyttävät tukikohtinaan erilaisille toiminnoille: yritys- ja liiketoimintaan, varastointiin sekä harrastuksiin.
Tilan lattiapinta-ala on 42 m² ja parven 15 m². Yhteispinta-ala 57 m².
Moottoroitu nosto-ovi erillisellä käyntiovella. Autolla sisään ajettava tila. Tilamitat: 9,42 (Pituus) 4,42 (Leveys) 5,00 (Korkeus). Ovimitat: 2,70 (Leveys) 3,90 (Korkeus).
Käyttötarkoitusesimerkkejä: - toimitila - varastotila - yrityksen työtarvikevarasto / kalustovarasto - kimppatalli - harrastetila - bändikämppä - autotalli - moottoripyörätalli - mönkijätalli. Tila ei sovellu autokorjaamoksi eikä autopesulaksi.
Tila on sähkölämmitteinen. Vuokralainen tekee tilaan oman sähkösopimuksen. Vesi- ja sähkömaksu kulutuksen mukaan. Vakuus kahden kuukauden vuokraa vastaava määrä. Haetaan pitkäaikaista vuokralaista. Luottotiedot tarkistetaan.
Talliosake tuottaa joustavasti muunneltavia hallitiloja ympäri Suomen, joita yritykset ja yksityishenkilöt käyttävät tukikohtinaan erilaisille toiminnoille: yritys- ja liiketoimintaan, varastointiin sekä harrastuksiin.
Vapautuu
01.02.2026
Katutasossa
Ota yhteyttä
Talliosake Oy
Jani Sanevuori
Aluemyyntipäällikkö,
Etelä-Suomi, Vuokrauspalvelu, LVV
Näytä puhelinnumero
050 361 4814
Pyydä lisätietoa
