Vuokrataan toimistotilat - Lappeenranta
Liikekeskus Centre, Brahenkatu 4, 53100 Lappeenranta #10849080
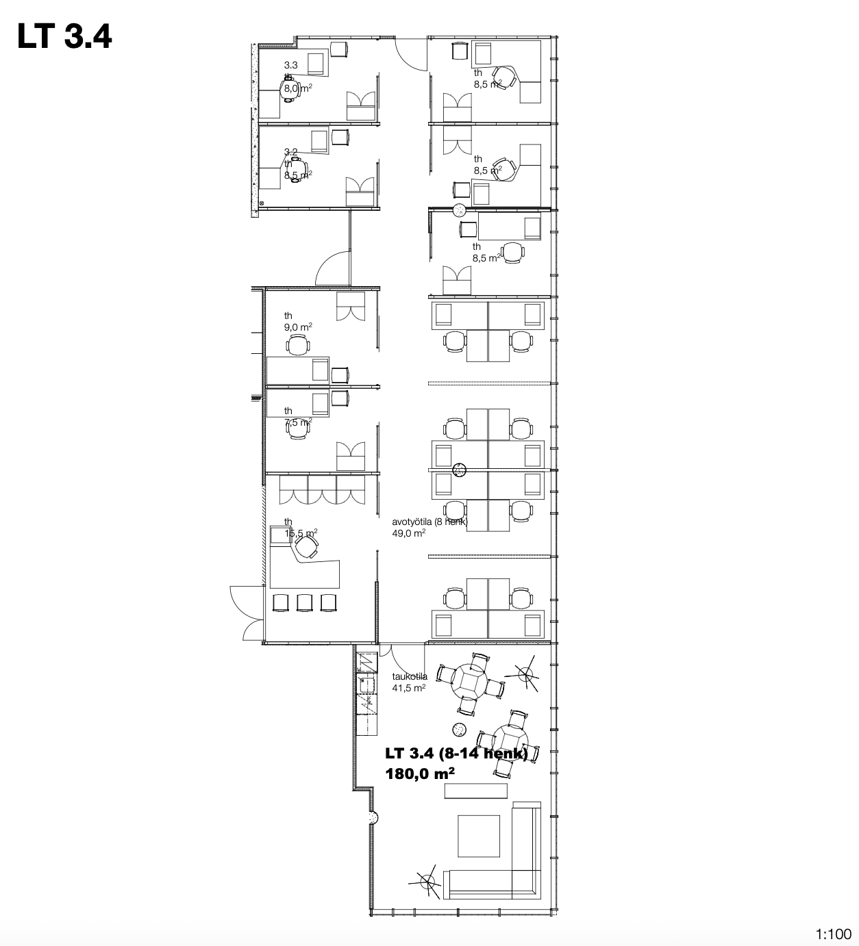
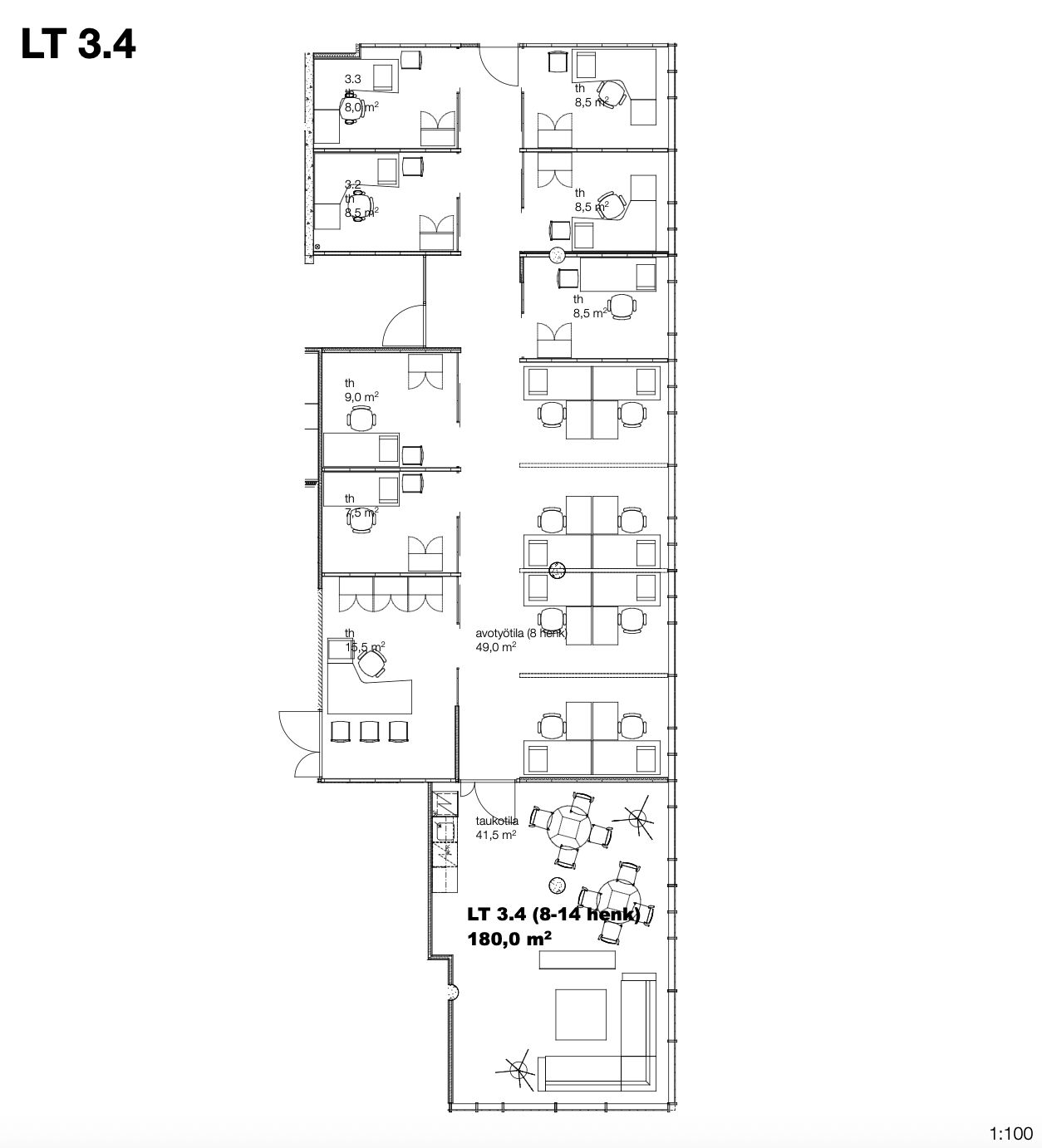
Tämä valoisa ja selkeälinjainen 180 m2 toimistotila täyttää kaikki nykyaikaisen toimistotilan vaatimukset ja soveltuu hyvin 8-14 hengen toimistoksi. Tämä toimistotila soveltuu erityisesti toimijoille, joka arvostaa korkeatasoista toimistotilaa ja äänieristettyjä työhuoneita.
Havainnekuvan mukainen tilajako koostuu äänieristetyistä tyohuoneista (11 kpl) ja neuvotteluhuoneesta sekä valoisasta toimistokeittiö ja taukotilasta. Liitteenä tilan pohjakuva tilajaosta. Toimistotilaa voidaan räätälöidä asiakkaan tarpeiden mukaan.
Centre tarjoaa modernit myymälä- ja toimistotilat viidessä kerroksessa vilkkaasta kivijalasta ainutlaatuisiin panoraamanäkymiin.
Katso lisää läheisistä parkkihalleista https://www.europark.fi/pysakointi/p-isokristiina/ ja https://www.williparkki.fi/fi/Pysakointitalot/Pysakointitalo-P-pormestari
Pyöräparkki asiakkaille on katutasolla pääsisäänkäynnin läheisyydessä ja vuokralaisille pohjakerroksessa (lukittu tila)
Näkyvällä paikalla
Kirsi-Kiinteistöt Oy
Tommi Malmi, puh Näytä puhelinnumero 0400-254 264
Kirsi Kiinteistöt Oy on Lappeenrannan ja Kaakkois-Suomen toimitilamarkkinoiden vahva toimija, jolla on vuosikymmenten kokemus erilaisten yritystilojen vuokrauksesta, kehittämisestä ja ostamisesta. Erikoisosaamisemme on kehittää kiinteistöjä laadukkaiksi toimitiloiksi erilaisten yritysten tarpeisiin.
Toimistotalot, hallimyymälät, liiketilat, asunnot ja varastotilat – meiltä löydät tilat, jotka tukevat yrityksesi kasvua ja näkyvyyttä oikeassa ympäristössä.
Paikallinen ja tavoitettavissa
Reilu ja reagoiva kumppani
Tilat tarpeen mukaan – ei massaa, vaan merkitystä ja toimivuutta
Kirsi-Kiinteistöt Oy – Kun arvostat vakautta, luotettavuutta ja vastuullisuutta tilaratkaisuissa.
