Vuokrataan/myydään toimistotilat, varastotilat - Seinäjoki
Lastausväylä 1, 60100 Seinäjoki #10848839
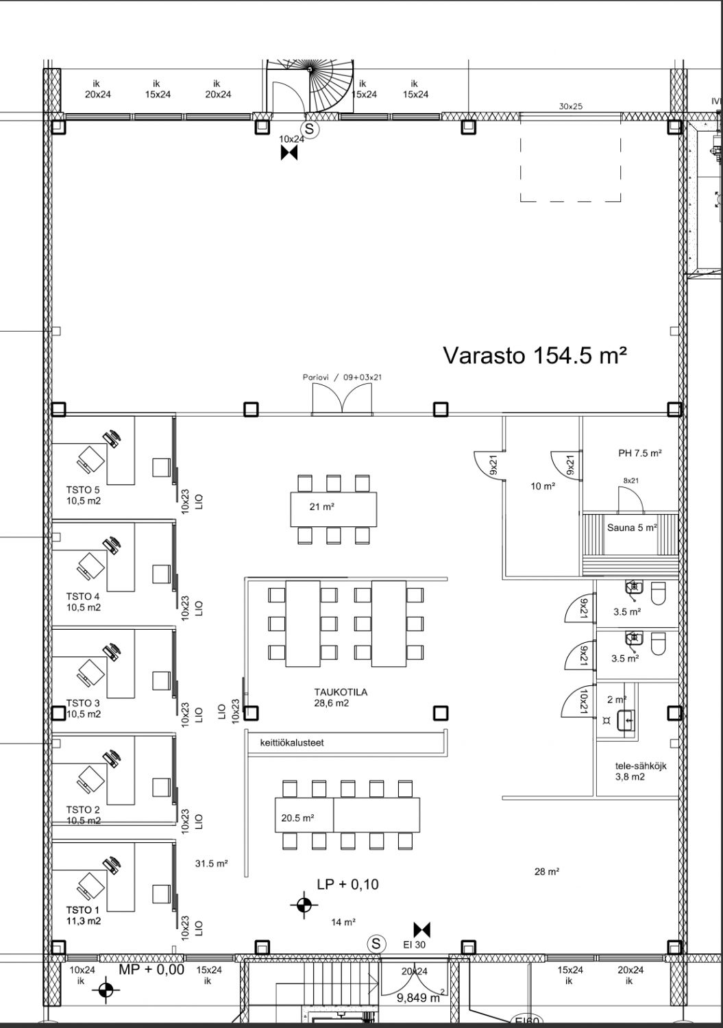
Myydään / vuokrataan moderni sisustussuunnittelijan suunnittelema 460 m² toimisto- ja varastotila Seinäjoelta (Roves)
Lastausväylä 1a, 60100 Seinäjoki, Kiinteistö Oy Rekkakulma. Yhtiölainaa jäljellä!
Osoite
Lastausväylä 1, 60100 Seinäjoki
Tilatyyppi
Toimistotilaa
305 m2
Varastotilaa
155 m2
Yhteensä
460 m2
Myyntihinta
379 000 € (velaton hinta)
Kiinteistö
Tila on erittäin hyväkuntoinen ja moderni. Toimisto-osio on avaraa ja valoisaa, lasiseinäisiä neuvotteluhuoneita ja hyvä akustiikka.
Varastopuoli myös siistiä tilaa, jossa kaikki tekniikka on valmiina toimistoiksi muuntamiselle.
Varastopuoli myös siistiä tilaa, jossa kaikki tekniikka on valmiina toimistoiksi muuntamiselle.
Sijainti
Kohde sijaitsee Roveksen yritysalueella, n. 3 km Seinäjoen keskustasta.
Sijainti on logistisesti toimiva ja helposti saavutettavissa Itäväylän kautta.
Ympäristö on kehittyvää yritysaluetta, jossa on toimisto-, liike- ja varastotiloja.
Sijainti on logistisesti toimiva ja helposti saavutettavissa Itäväylän kautta.
Ympäristö on kehittyvää yritysaluetta, jossa on toimisto-, liike- ja varastotiloja.
Ympäristö
Teollisuusalue. Lähistöllä useita tukkuliikkeitä sekä lounaspaikkoja.
Pysäköinti
Piha-alueella runsaasti pysäköintipaikkoja.
Kulkuyhteydet
Isot valtatiet aivan vieressä.
Muuta
Tila on sisustussuunnittelijan suunnittelema, erittäin moderni ja edustava kokonaisuus, jossa lasiseinäiset tilaratkaisut, laadukkaat materiaalit ja ajaton ilme luovat yritykselle näyttävän ja uskottavan toimintaympäristön. Selkeä ja toimiva tilajako tekee kokonaisuudesta sopivan niin asiantuntijatyöhön, myynti- ja asiakaspalveluun, pääkonttoriksi kuin yrityksille, jotka tarvitsevat sekä toimisto- että varastotilaa saman katon alle.
Hoitovastike on 1 494,08 €/kk, ja osakkeisiin kohdistuu yhtiölaina, jonka lyhennys on 3 441,93 €/kk. Yhtiölainaa on jäljellä 192 545,80 € (10/2025), mikä pienentää ostajan rahoitettavaa kauppahintaa selvästi.
Soita ja kysy lisää: Janne Kuoppala 050 345 6769
Hoitovastike on 1 494,08 €/kk, ja osakkeisiin kohdistuu yhtiölaina, jonka lyhennys on 3 441,93 €/kk. Yhtiölainaa on jäljellä 192 545,80 € (10/2025), mikä pienentää ostajan rahoitettavaa kauppahintaa selvästi.
Soita ja kysy lisää: Janne Kuoppala 050 345 6769
Vapautuu
Heti
Rakennusvuosi
2018
Kerros
1 / 1
Ota yhteyttä
Näytä puhelinnumero 0503456769
Soita lisätietoja ja sovitaan näyttö kohteeseen!
Pyydä lisätietoa