Vuokrataan toimistotilat - Lappeenranta
Rakuunakasarmi, Väinö Valveen katu 2, 53900 Lappeenranta #10848688
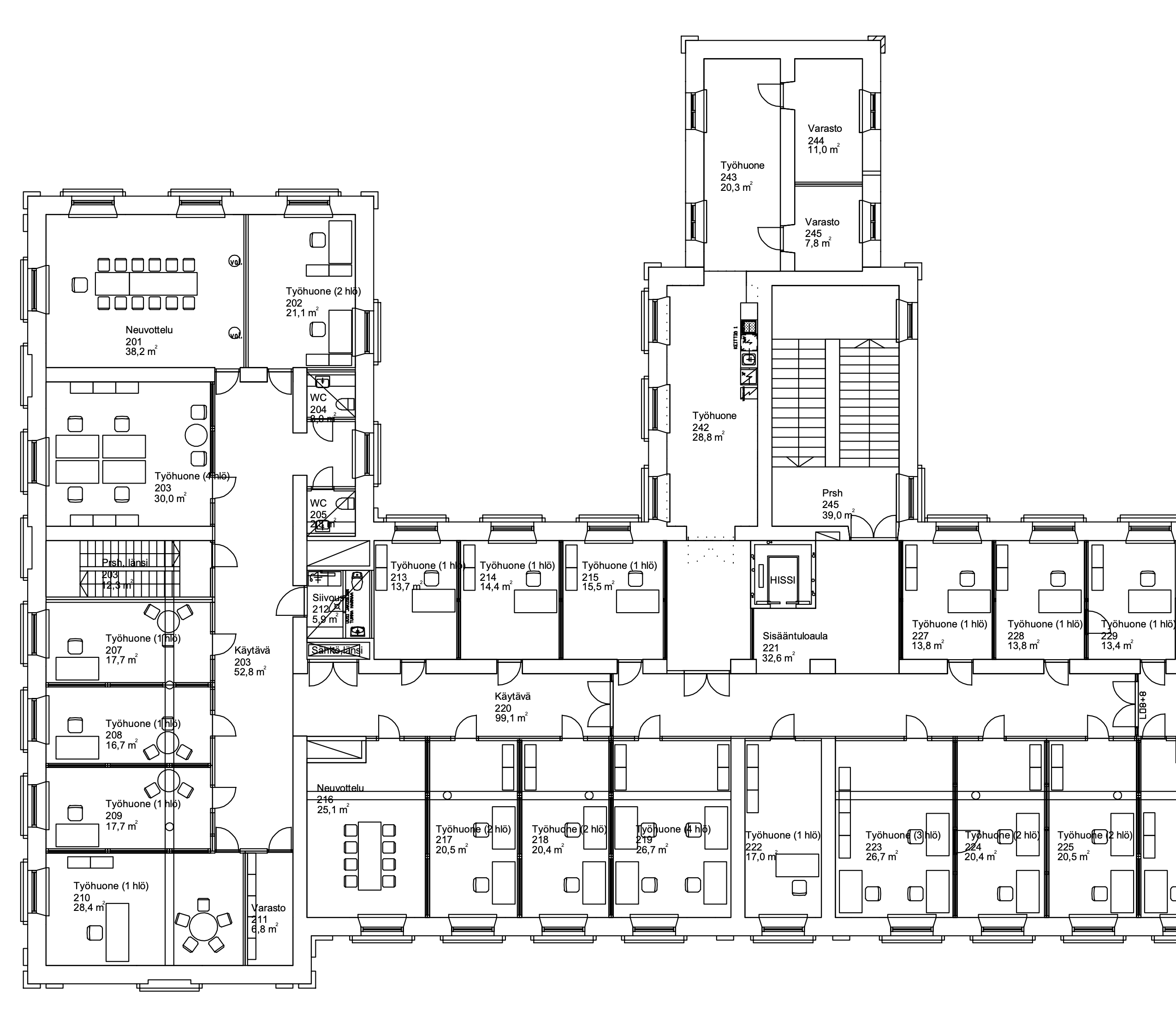
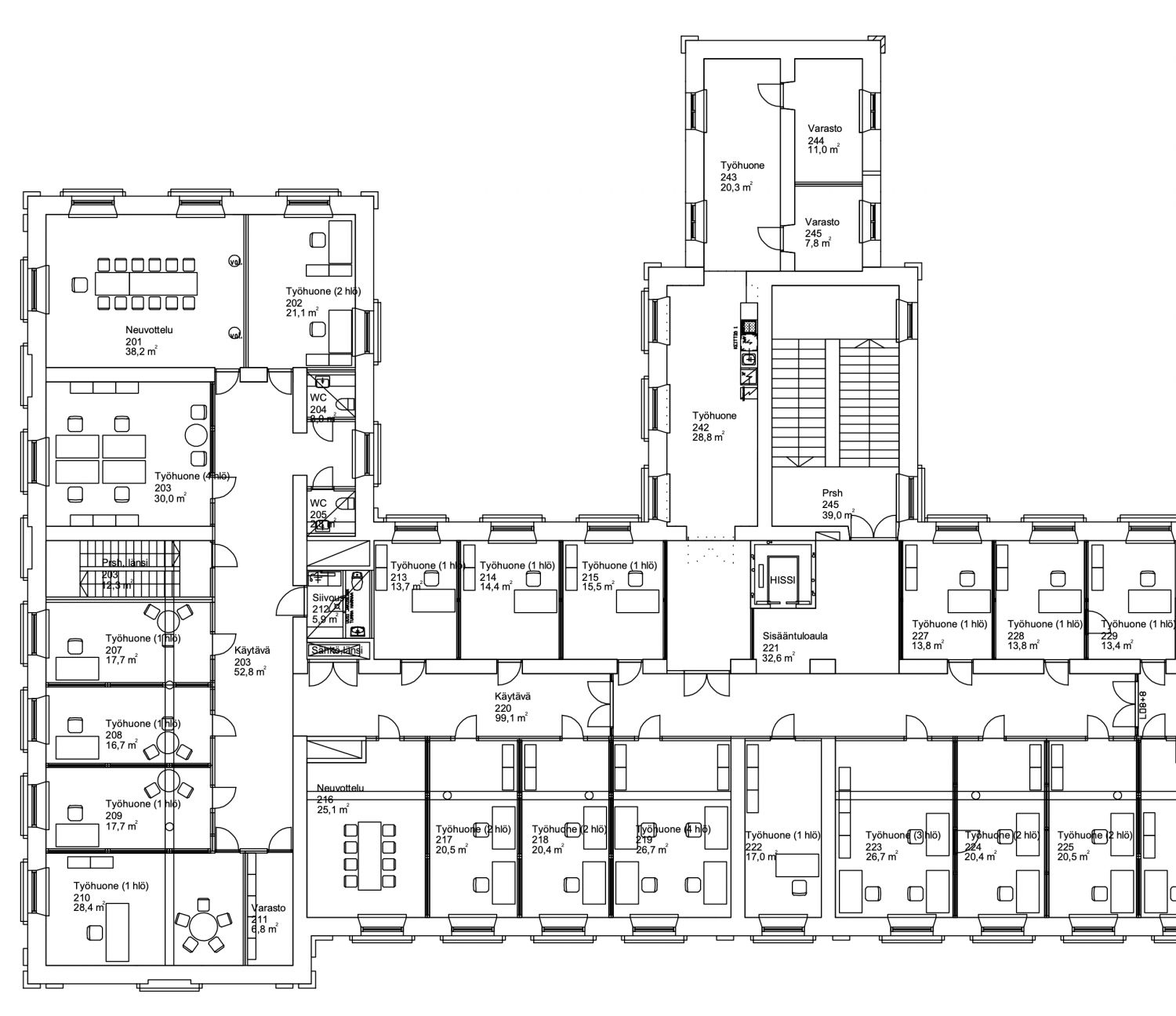
Rakuunakasarmista vapautui juuri 672 m2 toimistotila (2. krs), joka tarjoaa laadukkaat toimistotilat historiallisessa ympäristössä:
- 25 äänieristettyä eri kokoista työhuonetta – rauhalliset puitteet keskittymiseen tai tiimityöhön
- Tilava toimistokeittiö ja suuri taukotila – viihtyisät tilat yhteisiin hetkiin
- Omat wc-tilat ja pieni varasto – arjen sujuvuutta ja rauhaa
- Yhdistelmän historiaa ja nykyaikaa – inspiroiva, toimiva ja edustava työympäristö
Osoite
Väinö Valveen katu 2, 53900 Lappeenranta
Tilatyyppi
Toimistotilaa
300 - 672 m2
Tilajako
Jaettavissa
Toimistotila voidaan vuokrata joko yhtenä kokonaisuutena tai jaettuna kahdeksi eri toimistotilaksi
Pohjapiirros
Kiinteistö
Rakuunakasarmi on täydellinen valinta organisaatioille, jotka arvostavat inspiroivaa ympäristöä, arvokasta perintöä ja käytännöllistä sijaintia ja vaivatonta parkkeerausta. Täällä rakennat uutta vahvalla perustalla.
Tämä kulttuurihistoriallisesti merkittävä 3400 m2 kokonaisuus tarjoaa modernisoituja toimistotiloja upeissa, punatiilisissä rakennuksissa, joissa arkkitehtoninen perintö ja nykyaikainen mukavuus kulkevat käsi kädessä. Peruskorjauksessa tilat on varustettu nykyaikaisella tekniikalla ja palveluilla – säilyttäen silti alkuperäisen tunnelman.
Tämä kulttuurihistoriallisesti merkittävä 3400 m2 kokonaisuus tarjoaa modernisoituja toimistotiloja upeissa, punatiilisissä rakennuksissa, joissa arkkitehtoninen perintö ja nykyaikainen mukavuus kulkevat käsi kädessä. Peruskorjauksessa tilat on varustettu nykyaikaisella tekniikalla ja palveluilla – säilyttäen silti alkuperäisen tunnelman.
Sijainti
Rakuunakasarmi sijaitsee osoitteessa Väinö Valveen katu 2. Rakuunakasarmi on Lappeenrannan maamerkki, jossa historia ja nykyhetki kohtaavat ainutlaatuisella tavalla. Alun perin 1800-luvun lopulla ratsuväen käyttöön rakennettu kasarmialue henkii menneiden aikojen arvokkuutta – joka uudistettiin täydellisesti 1995 vastaamaan tämän päivän yritysten ja yhteisöjen tarpeita.
Ympäristö
Erinomainen sijainti:
- Helppo saavutettavauus, runsaasti ilmaista parkkitilaa kiinteistön ympärille
- Keskustaan – n 900 m
- Ravintolat 100-1000 m
- Hotelli 200-1000 m
- Lappeenrannan juna-asema – n. 2,2 km, yhteydet pääkaupunkiseudulle ja itään
- LUT-yliopisto ja LAB-ammattikorkeakoulu – n. 6 km, nopeat yhteydet Skinnarilaan
📍 Rakuunakasarmi on täydellinen valinta organisaatioille, jotka arvostavat inspiroivaa ympäristöä, arvokasta perintöä ja käytännöllistä sijaintia ja vaivatonta parkkeerausta. Täällä rakennat uutta vahvalla perustalla.
- Helppo saavutettavauus, runsaasti ilmaista parkkitilaa kiinteistön ympärille
- Keskustaan – n 900 m
- Ravintolat 100-1000 m
- Hotelli 200-1000 m
- Lappeenrannan juna-asema – n. 2,2 km, yhteydet pääkaupunkiseudulle ja itään
- LUT-yliopisto ja LAB-ammattikorkeakoulu – n. 6 km, nopeat yhteydet Skinnarilaan
📍 Rakuunakasarmi on täydellinen valinta organisaatioille, jotka arvostavat inspiroivaa ympäristöä, arvokasta perintöä ja käytännöllistä sijaintia ja vaivatonta parkkeerausta. Täällä rakennat uutta vahvalla perustalla.
Pysäköinti
Vuokralaisella mahdollisuus vuokrata edullisesti autojen lämpöpistokepaikkoja asfaltoitulta pihalta. Pihalla myös ilmaisia asiakaspaikkoja Rakuunakasarmin pääoven edustalla
Vuokralaisia
Tilat vuokrattu mm. Reim Lappeenranta, DNA, Kuntaisännöinti, Varte Lappeenranta, SRV, Tilikarelia, Reim Group, Storymakers, Despro, NK Isännöinti.
Muuta
Sovi esittely ja tule kokemaan tila paikan päällä!
Lisätietoa saneerauksista
Uudistettiin täydellisesti 1995 vastaamaan tämän päivän yritysten ja yhteisöjen tarpeit
Vapautuu
Heti
Rakennusvuosi
1890
Saneerausvuosi
1995
Kerros
2 / 3
Huoneiden lukumäärä
24
Näkyvällä paikalla
Jaettavissa
Hissi
Ota yhteyttä
Pyydä lisätietoa
