Vuokrataan toimistotilat, muut tilat - Jyväskylä
Puistokatu 21, 40100 Jyväskylä #10848685
Vuokrattavana modernia ja siistiä toimistotilaa Puistokadun ensimmäisestä kerrostalosta, joka valmistui vuonna 1926. Tämä kiinteistö on osa kaupungin rikasta historiaa ja tarjoaa ainutlaatuisen yhdistelmän perinteistä arkkitehtuuria ja modernia toimistotilaa aivan Jyväskylän ydinkeskustan tuntumassa. Kiinteistöä on remontoitu vanhaa kunnioittaen, ja talo on säilyttänyt ainutlaatuisen historiallisen charmin, ja sen toimistotilat on päivitetty vastaamaan nykypäivän vaatimuksia.
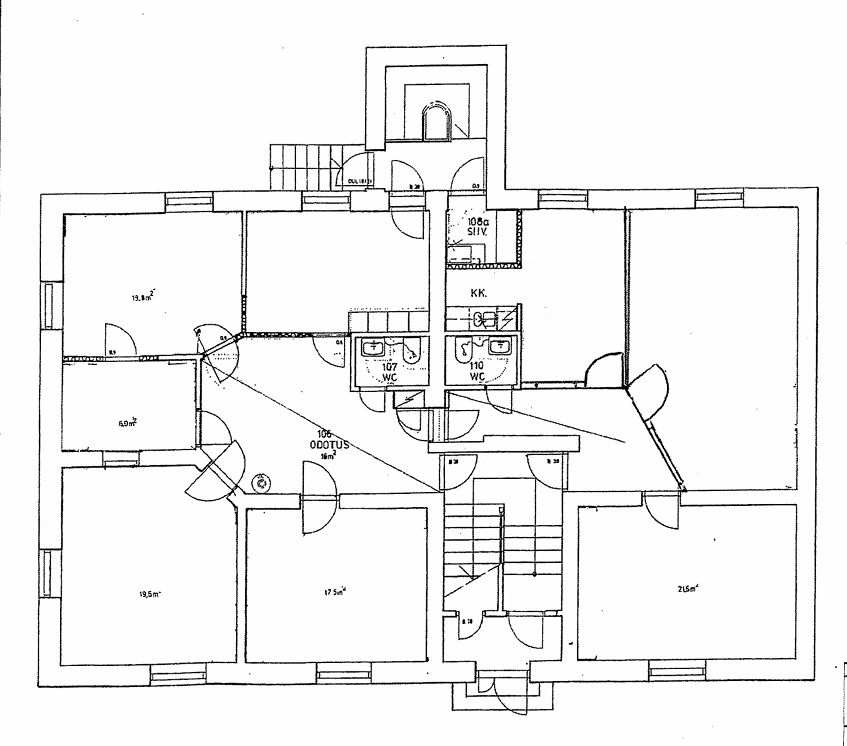
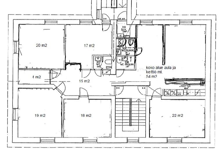
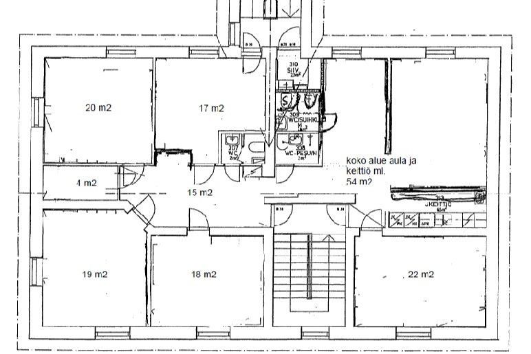
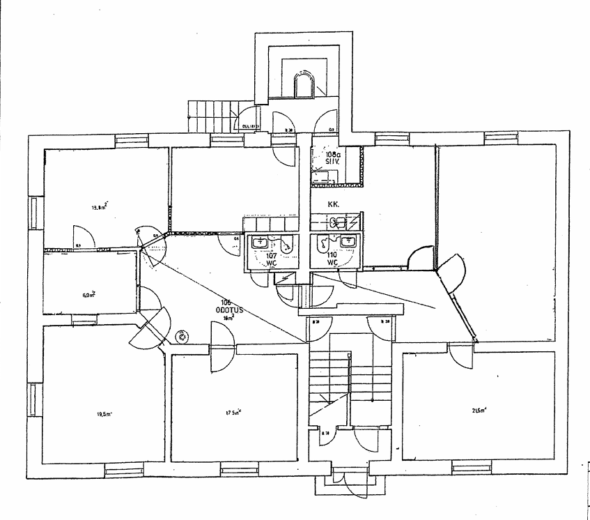
Toimistotilat sijaitsevat talon kolmessa kerroksessa ja kerroksissa on kussakin on 4-7 erikokoista työhuonetta, joista osa on ollut jo aiemmin tai voidaan valjastaa neuvotteluhuonekäyttöön. Kussakin kerroksessa keittiö ja taukotila, 2*wc ja siivouskomero. Katso pohjakuvat kustakin kerroksesta!
Kellarissa kaksi varastohuonetta, n. 19,5m2 ja 36 m2 sekä pesuhuonetilaa, suihkut, pukuhuoneet sekä sauna (yht. 152 m2). Kiinteistölle kuuluu yhteensä 15 autopaikkaa, osa tolpallisia ja osa tolpattomia ja autopaikat sijaitsevat sisäpihalla. Kadun varressa kiekollisia pysäköintipaikkoja. Tilat jaettavissa esimerkiksi kerroksittain (n. 178m2) tai vuokrattavissa myös kokonaan, yhteensä n. 686 m2. Esitetyt pinta-alat eivät ole tarkistusmitattuja.
Lisätiedot ja näytöt: Henri Kumpulainen, Puh 040 864 3631, s-posti henri.kumpulainen@aveon.fi
Jaettavissa
Aveon Real Estate Oy
Kauppakatu 18 C 26, 40100 Jyväskylä
Henri Kumpulainen
Puh.
Näytä puhelinnumero
040 864 3631
henri.kumpulainen@aveon.fi
Olemme kiinteistöliiketoiminnan asiantuntija, joka toimii yrittäjämäisesti neuvonantajana kiinteistökaupoissa, toimitilavälittämisessä sekä kiinteistökehityksessä.
Asiakkaitamme ovat kotimaiset ja ulkomaiset kiinteistönomistajat, -sijoittajat sekä tilojen käyttäjät kaikkialla Suomessa.
