Lataa energiatodistus [PDF]
Energiatodistus
Vuokrataan toimistotilat - Lappeenranta
Liikekeskus Centre, Brahenkatu, 53100 Lappeenranta #10848684
Liikekeskus Centre on vuoden 2015 lopussa valmistunut moderni 4200 m2 toimisto- ja liikekeskus keskeisellä paikalla Lappeenrannan ydinkeskustassa.
Centre tarjoaa modernit myymälä- ja toimistotilat viidessä kerroksessa vilkkaasta kivijalasta ainutlaatuisiin panoraamanäkymiin. Toimistotiloista löytyy erilaisia tilaratkaisuja 16-500 m2 tilakokonaisuuksiiin, jotka ovat helposti ja kustannustehokkaasti muokattavissa asiakkaiden tarpeisiin.
Osoite
Brahenkatu, 53100 Lappeenranta
Tilatyyppi
Toimistotilaa
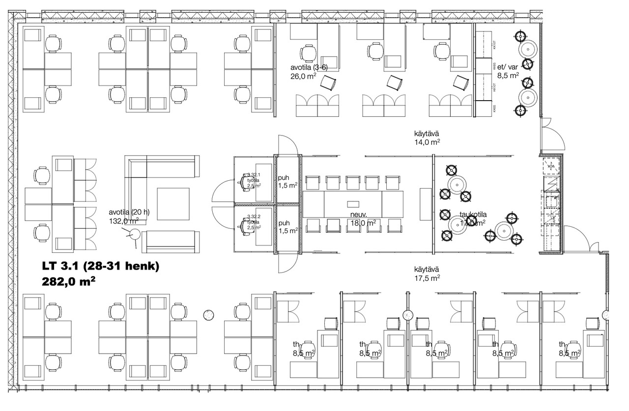
93 - 282 m2
Tilajako
Jaettavissa
Selkeälinjainen ja muuntojoustava tila täyttää nykyaikaisen hybridityön vaatimukset ja soveltuu hyvin noin 6–31 hengen toimistoksi. Moderni toimistotila on toimiva yhdistelmä avotilaa, neuvotteluhuoneita, työhuoneita ja videoneuvotteluihin sopivia tiloja. Tila voidaan vuokrata yhtenä kokonaisuutena tai pilkkoa pienemmiksi toimistotiloiksi.
Toimistotiloja voidaan myös helposti räätälöidä vuokralaisen tarpeiden mukaan.
Pohjapiirros
Vuokra
neuvotellaan erikseen
Vuokraan sisältyy sähkö, vesi, lämpö, alv, jäähdytys
Kiinteistö
Kiinteistö Oy Centre
Sijainti
Liikekeskus Centre sijaitsee Brahenkadulla keskeisellä liikepaikalla, kauppakeskus Isokristiinan ja Lappeenrannan kaupungintalon välissä.
Ympäristö
Centren läheisyyden sijaitsee mm. kauppakeskukset Isokristiina ja Galleria, hotelli Lappee, lukuisat ravintolat ja virastotalojen palvelut
Pysäköinti
Centren pohjakerroksissa on 29 kpl lämmityspistokkeellisia sopimuspysäköintipaikkaa. Myös läheiset IsoKristiinan ja Pormestarin parkkihallit tarjoavat asiakas- ja sopimuspysäköintiä, jotka sijaitsevat noin 20-150m etäisyydellä Centrestä.
Katso lisää läheisistä parkkihalleista https://www.europark.fi/pysakointi/p-isokristiina/ ja https://www.williparkki.fi/fi/Pysakointitalot/Pysakointitalo-P-pormestari
Pyöräparkki vierailijoille sijaitsee kansitasanteella Centren pääoven edustalla ja vuokralaisille kiinteistön pohjakerroksessa (lukittu tila).
Katso lisää läheisistä parkkihalleista https://www.europark.fi/pysakointi/p-isokristiina/ ja https://www.williparkki.fi/fi/Pysakointitalot/Pysakointitalo-P-pormestari
Pyöräparkki vierailijoille sijaitsee kansitasanteella Centren pääoven edustalla ja vuokralaisille kiinteistön pohjakerroksessa (lukittu tila).
Palvelut
Centre tarjoaa myös kattavat kiinteistöhuollon ja siivouspalvelut. Lisäksi tarjoamme sopimuskumppanin avulla myös lähetti ja kuriiripalveluja
Kulkuyhteydet
Centreen on helppo saapua niin kävellen, pyörällä, autolla kuin julkisilla liikennevälineillä.
Vuokralaisia
Visma, Andritz, Avidly, Maestro, Martela, Skanska, Enia, Vaisala, VMH Marketing, Investco, Askele, Hansavest, Ita Nordic, Newsek, K2 Media, Greenstep, M Room, Einere ja kauneushoitola Illusia
Muuta
Katso lisää https://centrelappeenranta.fi
Vapautuu
Heti
Rakennusvuosi
2015
Kerros
3 / 5
Huoneiden lukumäärä
10
Energiatehokkuusluokka
E-luku
139 kWhE/m²/vuosi
Näkyvällä paikalla
Jaettavissa
Liitetiedostot
Ota yhteyttä
Pyydä lisätietoa
