Vuokrataan toimistotilat - Helsinki
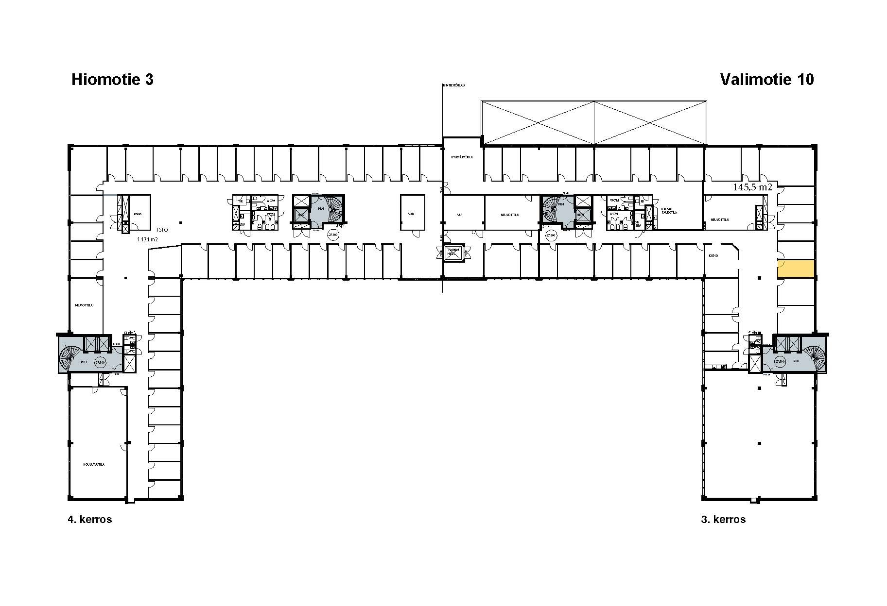
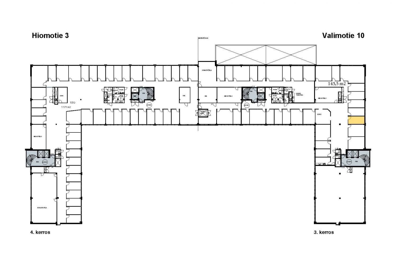
Valimotie 10 3.krs 10 m2 toimistotila, Valimotie 10, Pitäjänmäki, 00380 Helsinki #10848661
Vuokrattavana 3. krs toimistotila, noin 10 m2. Tilaan on lukittava sisäänkäynti ja samasta kerroksesta löytyvät yhteiskäyttöiset keittiö- ja wc-tilat.
Rakennuksen edessä on bussipysäkki sekä pysäköintialue. Pääsisäänkäynnin yhteydessä katutasossa on InBliss Host-vierailijahallintajärjestelmä vieraiden vastaanottamiseen.
Suunnittelemme mahdollisen tilojen räätälöinnin ja muutostyöt asiakaskohtaisesti vuokraneuvottelujen yhteydessä.
Valimo Centerin kaikkia vuokralaisia palvelee Valimotie 13a:ssa sijaitseva aulapalvelu, jossa on myös postin vastaanotto, edelleenlähetys sekä pakettipalvelut. Samassa rakennuksessa on kiinteistön oma – vuokralaisille tarkoitettu kuntosali, jonne on pääsy kulkuavaimella klo 5-21. Katutasossa herkullisen lounaan arkipäivisin tarjoilee Ravintola Factory, jossa on myös kesäterassi. Mikäli yrityksellänne on tarvetta kokoustiloille, löytyy niitä tuntiperiaatteella vuokrattavana 2-20:lle henkilölle yhteensä viisi kappaletta Valimotie 13a ja Valimotie 10 rakennuksista.
Katso videoesittely Valimo Centeristä: https://youtu.be/W4-0X0CgEa0
Tästä kohteesta voit olla yhteydessä pääkaupunkiseudun vuokrauspäällikköömme Artoon.
Puh. 044 906 2226 / Arto Haavisto
- Valmistunut vuonna 1994, peruskorjattu 2017
- Pinta-ala: 13 103 m²
- Kerrosten lukumäärä: 6
- Lastauslaituri ja tavarahissi
- 3 henkilöhissiä
- Koneellinen jäähdytetty ilmanvaihto
- Turvallista kulunvalvottua tilaa
- Neuvottelutilat
Jaettavissa
Hissi
Lastauslaituri
Nurmi-Yhtiöt Oy
Nurmi Kiinteistöt
Jousitie 7
20760 Piispanristi
puh.
Näytä puhelinnumero
044 906 2226
/ Arto Haavisto (pk-seutu)
puh.
Näytä puhelinnumero
040 624 0344
/ Ilias Niemi (Varsinais-Suomi)
