Vuokrataan toimistotilat, liiketilat, tuotantotilat, työtilat - Jyväskylä
Cygnaeuksenkatu 3, 40100 Jyväskylä #10848501
Vuokrataan yhteensä n. 834 m2 monikäyttöistä toimisto-, liike- tai työskentelytilaa keskustasta Cygnaeuksenkadulta. Tila on vuodesta 1994 saakka toiminut Yliopiston painotalona. Ensimmäisessä kerroksessa, katutasossa sijaitsevat tilat on jaettu kahdeksi osaksi, jotka ovat vuokrattavissa erikseen tai yhdessä.
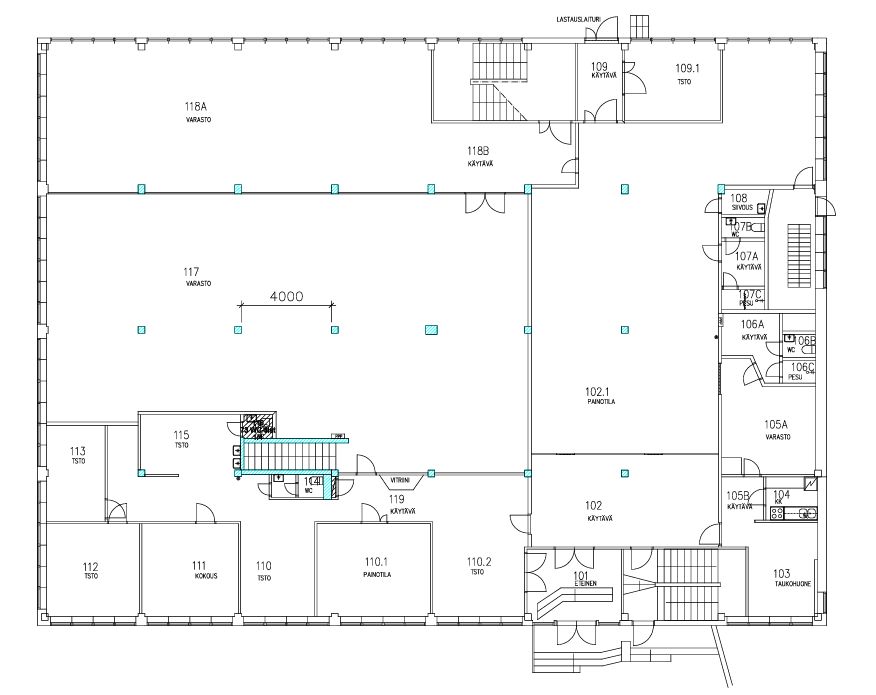
Isompi tila on yhteensä n. 546-neliöinen, ja siihen kuuluu suuri avotila, kolme työhuonetta, taukotila sekä 2 WC:tä. Pienempi tila on yhteensä 288 m2, ja siihen kuuluu avotilaa sekä varastotila, taukohuone ja 2 suihkua, 2 WC:tä ja 2 pukuhuonetta. Tilassa myös lastaussilta, joka sopii pakettiautolastaukselle. Katso pohjakuvasta tarkempi sijoittelu!
Tila lämpiää kaukolämmöllä, ja siellä on LED-valaistus. Lisäksi painotalotaustasta johtuen tilassa myös ilmankosteuden ja lämmön säätely.
Tila sopii suureksi toimitilaksi, mutta myös toiminnallisempaankin käyttöön, kuten myymäläksi, asiakaspalvelupisteeksi, kevyeksi työ- ja tuotantotilaksi tai esimerkiksi kuntosaliksi.
Kiinteistön takapuolella 14 autopaikkaa sekä pysäköinti mahdollista myös Vapaudenkadun varrella tai P-Cygnaeus-parkkitalossa.
Samassa kiinteistössä on toimii esimerkiksi Cityvarasto sekä kuntosali kellarikerroksessa.
Lisätiedot ja näytöt:
Henri Kumpulainen, 040 864 3631, henri.kumpulainen@aveon.fi
Katutasossa
Näkyvällä paikalla
Jaettavissa
Lastauslaituri
Aveon Real Estate Oy
Kauppakatu 18 C 26, 40100 Jyväskylä
Henri Kumpulainen
Puh.
Näytä puhelinnumero
040 864 3631
henri.kumpulainen@aveon.fi
Olemme kiinteistöliiketoiminnan asiantuntija, joka toimii yrittäjämäisesti neuvonantajana kiinteistökaupoissa, toimitilavälittämisessä sekä kiinteistökehityksessä.
Asiakkaitamme ovat kotimaiset ja ulkomaiset kiinteistönomistajat, -sijoittajat sekä tilojen käyttäjät kaikkialla Suomessa.
