Vuokrataan tuotantotilat, varastotilat - Kuopio
Varastotila @ Tehdaskatu 22, Haapaniemi, 70620 Kuopio #10848202
Varastotila
Osoite
Varastotila @ Tehdaskatu 22, 70620 Kuopio
Tilatyyppi
Tuotantotilaa
400 m2
Varastotilaa
400 m2
Yhteensä
400 m2
Kiinteistö
Hyvällä sijainnilla - siisti, kuiva ja edullinen varastotila
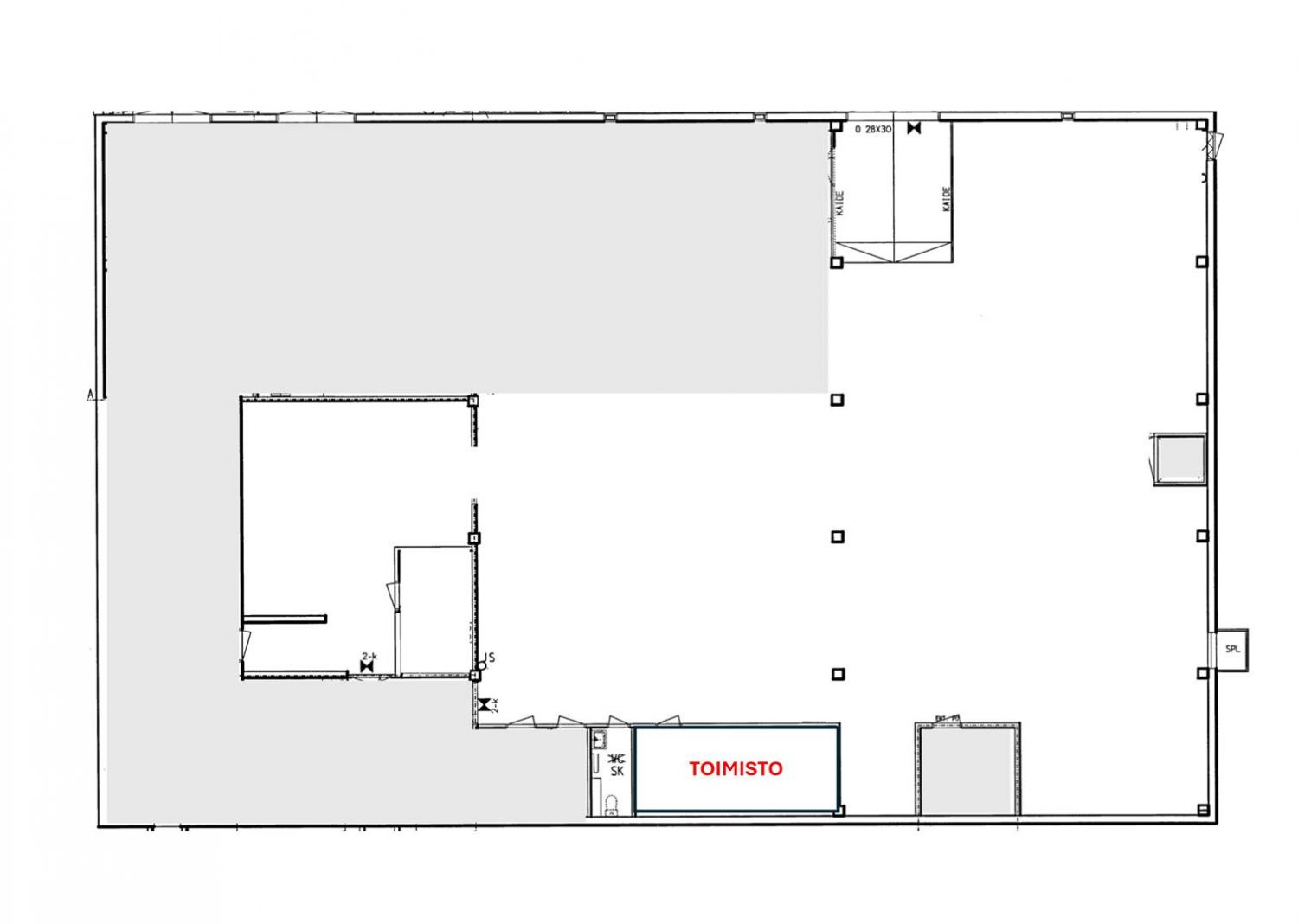
Vuokrattavana Kuopion Haapaniemeltä varastotila n. 400 m² ja parkkitilaa piha-alueella.
Varastotilat sijaitsevat Tehdaskatu 22 kiinteistön eteläpuolella/takapihalla. Varastotilat ovat siistit ja kuivat.
Hyvällä tuurilla tilat voivat soveltua myös pien/kevyt - tuotanto/kokoonpanotiloiksi.
Tila on fiksattu siistiksi ja tila muuttovalmiina viimeistään 1.2.2026:
sähkökäyttöinen nosto-ovi K 2,55 m x L 2,62 m
varastossa tasainen lattia - ei kaivoja
sisäkorkeus 2,6-2,75 metriä
takavarasto n. 40 m² ja sisäkorkeus > 3 metriä
loisteputkivalaistus
voimavirtapistokkeita
kuituyhteys kiinteistölle
hälytinjärjestelmä
erillinen toimistohuone
WC ja SK
Kiinteistö ja sijainti
Tehdaskatu on logistisesti hyvällä sijainnilla moottoritieltä (Vitostie E63) tai Saaristokaupungista päin tultaessa.
Kiinteistölle on helppo tulla ja helppo lähteä ja rakennus on ympäriajettava.
Ydinkeskustaan on suorat yhteydet joko Siikaniemenkatua pitkin tai Tasavallankatua pitkin ja matka taittuu 5-10 minuutissa.
Samoilla nurkilla ovat mm. K-CM, S-Market Ykkösrasti, Lidl, Mc Donald´s ja useita palveluyrityksiä ja tukkuliikkeitä.
Naapurikiinteistöllä on suosittu lounasravintola Silta.
Pysäköinti tontilla onnistuu hyvin
Yläpihalla on latausmahdollisuus (22 kW ja 11 kW) ja takapihalla on n. 5 pysäköintipaikkaa seinän vierustalla.
Joukkoliikenne pysäkille on n. 150 metriä ja Freebike-asema on samassa yhteydessä.
Kilauta ja mennään käymään kiinteistöllä!
Vuokrattavana Kuopion Haapaniemeltä varastotila n. 400 m² ja parkkitilaa piha-alueella.
Varastotilat sijaitsevat Tehdaskatu 22 kiinteistön eteläpuolella/takapihalla. Varastotilat ovat siistit ja kuivat.
Hyvällä tuurilla tilat voivat soveltua myös pien/kevyt - tuotanto/kokoonpanotiloiksi.
Tila on fiksattu siistiksi ja tila muuttovalmiina viimeistään 1.2.2026:
sähkökäyttöinen nosto-ovi K 2,55 m x L 2,62 m
varastossa tasainen lattia - ei kaivoja
sisäkorkeus 2,6-2,75 metriä
takavarasto n. 40 m² ja sisäkorkeus > 3 metriä
loisteputkivalaistus
voimavirtapistokkeita
kuituyhteys kiinteistölle
hälytinjärjestelmä
erillinen toimistohuone
WC ja SK
Kiinteistö ja sijainti
Tehdaskatu on logistisesti hyvällä sijainnilla moottoritieltä (Vitostie E63) tai Saaristokaupungista päin tultaessa.
Kiinteistölle on helppo tulla ja helppo lähteä ja rakennus on ympäriajettava.
Ydinkeskustaan on suorat yhteydet joko Siikaniemenkatua pitkin tai Tasavallankatua pitkin ja matka taittuu 5-10 minuutissa.
Samoilla nurkilla ovat mm. K-CM, S-Market Ykkösrasti, Lidl, Mc Donald´s ja useita palveluyrityksiä ja tukkuliikkeitä.
Naapurikiinteistöllä on suosittu lounasravintola Silta.
Pysäköinti tontilla onnistuu hyvin
Yläpihalla on latausmahdollisuus (22 kW ja 11 kW) ja takapihalla on n. 5 pysäköintipaikkaa seinän vierustalla.
Joukkoliikenne pysäkille on n. 150 metriä ja Freebike-asema on samassa yhteydessä.
Kilauta ja mennään käymään kiinteistöllä!
Vapautuu
Kysy
Kerros
Katutaso
Ota yhteyttä
LogisTila Oy
Ankkuritie 1, 70460 KUOPIO
Timo Puustinen
Näytä puhelinnumero
0400 33 00 30
Pyydä lisätietoa
