Vuokrataan toimistotilat - Tampere
Finlaysoninkuja 22, Keskusta, 33210 Tampere #10848082
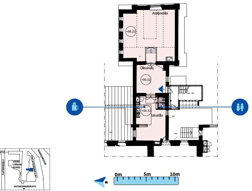
Persoonallinen, korkea ateljeetila lankkulattioineen.
Oma sisäänkäynti.
Tila näkemisen arvoinen.
Perinteikäs Finlaysonin alue on vireä liike-elämän, vapaa-ajan ja kulttuuritapahtumien keskus, jossa toimivissa yli 100 yrityksessä työskentelee ja asioi päivittäin tuhansia ihmisiä. Alueen useat ravintolat ja kahvilat mahdollistavat maukkaat lounas- ja kahvihetket. Finlaysonin alueen vanhat tehdasrakennukset tarjoavat yrityksellesi uniikin toimintaympäristön Tammerkosken maisemissa. Alueen rakennukset ovat BREEAM In-Use -ympäristösertifioituja. Finlaysonin alue on helposti saavutettavissa omalla autolla, julkisin kulkuvälinein ja kevyellä liikenteellä. Keskustori ja rautatieasema ovat kävelymatkan etäisyydellä.
Lisätietoja Harri Talvitie, 041 314 7463, harri.talvitie@rhg.fi
Lisää kohteita www.rhg.fi
RHG Real Estate
Hämeenkatu 2 B20, 20500 Turku
Harri Talvitie
Toimitilavälittäjä
Näytä puhelinnumero
0413147463
