Vuokrataan tuotantotilat, työtilat, autotalli/-hallitilat, muut tilat - Porvoo
Tolkkistentie 773, 06750 Porvoo #10847897
Monipuolista ja korkeaa hallitilaa Tolkkisten satama-alueelta! Vuokra 3'300 €/kk + alv
Osoite
Tolkkistentie 773, 06750 Porvoo
Tilatyyppi
Tuotantotilaa
300 m2
Työtilaa
300 m2
Autotalli/-hallitilaa
300 m2
Muuta tilaa
100 m2
Yhteensä
300 m2
Virtuaaliesittely
Vuokra
3'300 €/kk + alv
Muuta
Nyt vuokrattavana moneen yritystoimintaan soveltuva tuotanto-/varastotila Tolkkisten satama-alueella.
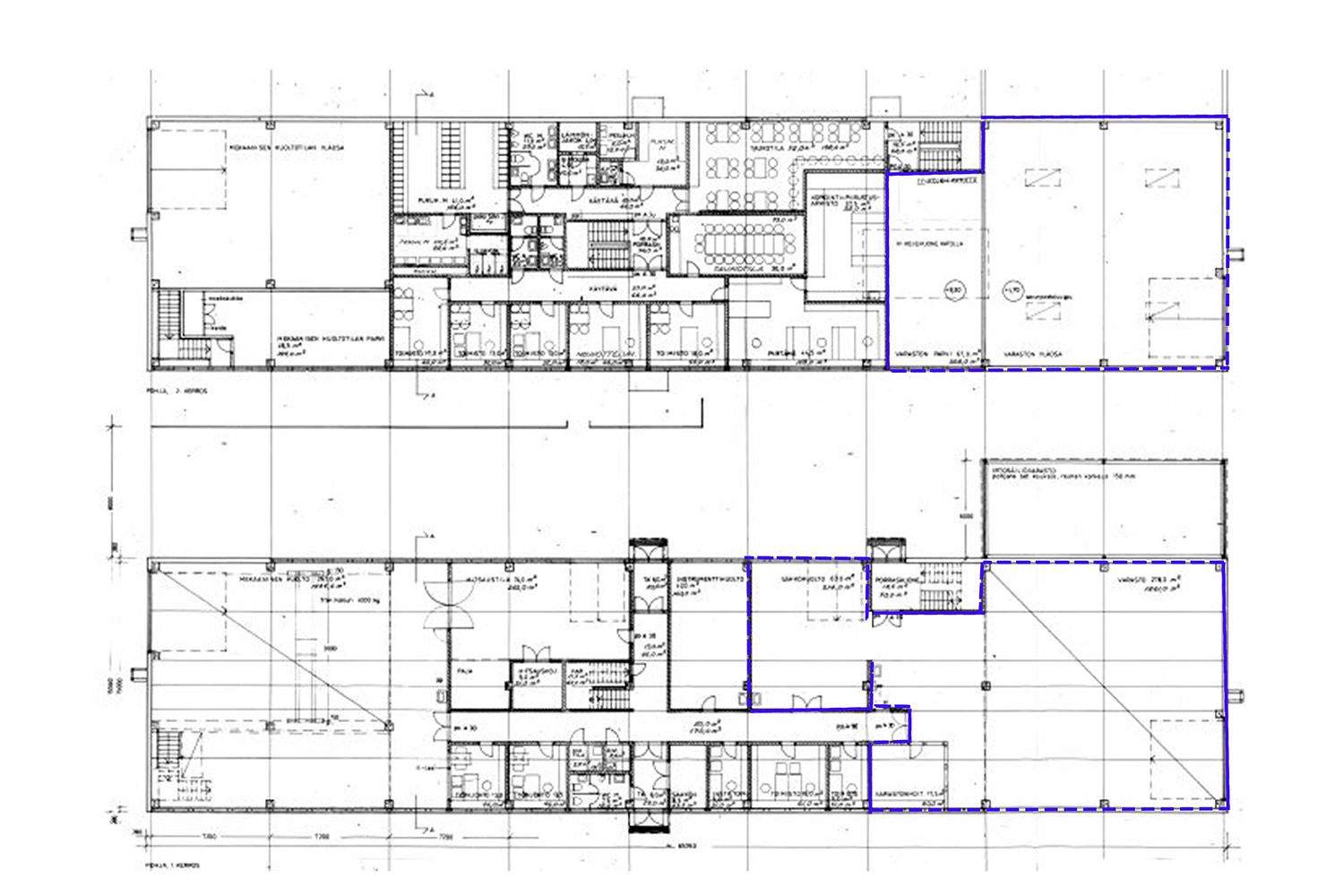
Tila muodostuu pääosin avonaisesta varasto- ja teollisuustilasta. Hallitilan yhteydessä on keittiö - ja taukotila. Tuotantohallitilan pinta-ala on noin 300 m² ja siinä on myös noin 100 m²:n parvi. Tila on merkitty pohjakuvaan sinisellä ääriviivalla. Hallin sisätilan korkeus on noin 6 metriä. Tilaan on käyntiovella varustettu nosto-ovi, jonka mitat 4,5 m x 4,5 m.
Tuotantohallitilan yhteydessä on matalampaa teollisuustilaa. Matalamman tilan vapaa korkeus on noin 3 metriä ja siellä on sähkökäyttöinen nosto-ovi (L3 m x K2,5m) sekä voimavirtapistokkeita. Tiloissa ei ole lattiakaivoja.
Kohde soveltuu moneen käyttöön, mutta erityisesti sellaiselle yritykselle, joka tarvitsee yhteyttä merelle. Tilassa on wc- ja sosiaalitilat sekä taukotila/keittiö.
Ilmoituksen kuvat ovat tilasta ennen nykyisen vuokralaisen käyttöä. Ne vastaavat kuitenkin varustelua tähän päivään.
Asfaltoidut ja aidatut piha-alueet. Rakennus ei ole ympäriajettavissa ja päädyssä isommalla yhdistelmällä ahdasta.
Samassa rakennuksessa on lisäksi tarjolla hyväkuntoista toimistotilaa toisesta kerroksesta, kysy tästä tarvittaessa lisää.
Kiinnostuitko - soita ja kysy lisää!
Kohdetiedot
Sijainti
Katuosoite: Tolkkistentie 773, 06750 Porvoo
Kaupunginosa: Tolkkinen
Ympäristö: Teollisuutta, meri ja satama
Rakennus/huoneisto
Pinta-alat: 300 m² + parvi 100 m²
Rakennustyyppi: Teollisuusvarastorakennus
Huoneistoselitelmä: Korkeaa ja matalaa varasto- ja teollisuustilaa, toimistotilaa ja sosiaalitilat
Kerros: 1 + parvi
Energiatodistus: Laki ei edellytä todistusta
Kunto, varusteet ja palvelut: Hyvä kunto. Nosto-ovia, toinen (parvi) kerros, keittiö, wc.
Vapautuu: Nopeasti
Pysäköinti: Pihassa
Pysäköinti: Pihassa
Vuokrahinta ja kulut
Kuukausivuokra: 3'300 €/kk + alv
Vesimaksu: Kulutuksen mukaan
Sähkö: Mittauksen mukaan
Lämmitys: Mittauksen mukaan (kaukolämpö)
Muut maksut: Piha-alueen hoito ja jätehuolto vuokralaisen kustannuksella
Muuta: Minimisopimuskausi 12 kk, vakuus 3kk:n vuokraa vastaava summa, luottotietojen oltava kunnossa
Tila muodostuu pääosin avonaisesta varasto- ja teollisuustilasta. Hallitilan yhteydessä on keittiö - ja taukotila. Tuotantohallitilan pinta-ala on noin 300 m² ja siinä on myös noin 100 m²:n parvi. Tila on merkitty pohjakuvaan sinisellä ääriviivalla. Hallin sisätilan korkeus on noin 6 metriä. Tilaan on käyntiovella varustettu nosto-ovi, jonka mitat 4,5 m x 4,5 m.
Tuotantohallitilan yhteydessä on matalampaa teollisuustilaa. Matalamman tilan vapaa korkeus on noin 3 metriä ja siellä on sähkökäyttöinen nosto-ovi (L3 m x K2,5m) sekä voimavirtapistokkeita. Tiloissa ei ole lattiakaivoja.
Kohde soveltuu moneen käyttöön, mutta erityisesti sellaiselle yritykselle, joka tarvitsee yhteyttä merelle. Tilassa on wc- ja sosiaalitilat sekä taukotila/keittiö.
Ilmoituksen kuvat ovat tilasta ennen nykyisen vuokralaisen käyttöä. Ne vastaavat kuitenkin varustelua tähän päivään.
Asfaltoidut ja aidatut piha-alueet. Rakennus ei ole ympäriajettavissa ja päädyssä isommalla yhdistelmällä ahdasta.
Samassa rakennuksessa on lisäksi tarjolla hyväkuntoista toimistotilaa toisesta kerroksesta, kysy tästä tarvittaessa lisää.
Kiinnostuitko - soita ja kysy lisää!
Kohdetiedot
Sijainti
Katuosoite: Tolkkistentie 773, 06750 Porvoo
Kaupunginosa: Tolkkinen
Ympäristö: Teollisuutta, meri ja satama
Rakennus/huoneisto
Pinta-alat: 300 m² + parvi 100 m²
Rakennustyyppi: Teollisuusvarastorakennus
Huoneistoselitelmä: Korkeaa ja matalaa varasto- ja teollisuustilaa, toimistotilaa ja sosiaalitilat
Kerros: 1 + parvi
Energiatodistus: Laki ei edellytä todistusta
Kunto, varusteet ja palvelut: Hyvä kunto. Nosto-ovia, toinen (parvi) kerros, keittiö, wc.
Vapautuu: Nopeasti
Pysäköinti: Pihassa
Pysäköinti: Pihassa
Vuokrahinta ja kulut
Kuukausivuokra: 3'300 €/kk + alv
Vesimaksu: Kulutuksen mukaan
Sähkö: Mittauksen mukaan
Lämmitys: Mittauksen mukaan (kaukolämpö)
Muut maksut: Piha-alueen hoito ja jätehuolto vuokralaisen kustannuksella
Muuta: Minimisopimuskausi 12 kk, vakuus 3kk:n vuokraa vastaava summa, luottotietojen oltava kunnossa
Vapautuu
Nopeasti
Kerros
1 / 2
Katutasossa
Ota yhteyttä
Tilat.fi
KTM, LKV Antti Soivio
Näytä puhelinnumero
0400 446 553
OTM, LKV Riikka Tuominen
Näytä puhelinnumero
0400 551 790
KTM, LKV Maria-Sofia Puhakka
Näytä puhelinnumero
0400-150330
HTM, LKV Aleksandra Riki
Näytä puhelinnumero
0400-211288
LKV Tilat.fi Oy on toimitilojen välitykseen erikoistunut yritys.
http://www.tilat.fiPyydä lisätietoa
