Vuokrataan toimistotilat, varastotilat - Helsinki
Turkhaudantie 5, Malmi, 00700 Helsinki #10847608
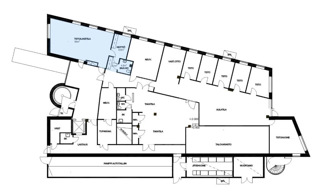
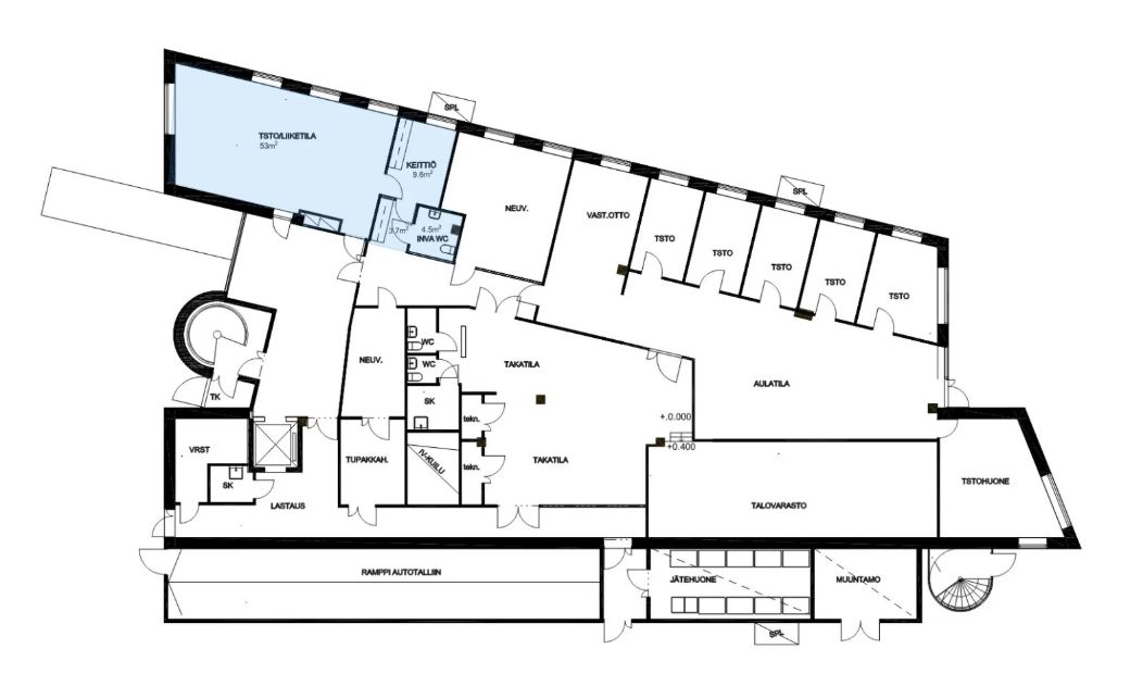
Malmin Kauppatie 12 - Toimisto 452 m² (jaettavissa 53 m²)
Osoite
Turkhaudantie 5, 00700 Helsinki
Tilatyyppi
Toimistotilaa
53 - 452 m2
Varastotilaa
57 m2
Yhteensä
53 - 452 m2
Pohjapiirros
Kiinteistö
Vuokrattavana ensimmäisestä kerroksesta joustavia toimistoratkaisuja, jotka voidaan räätälöidä yrityksesi tarpeisiin.
Koko kerros, 452 m², tarjoaa avaran ja monipuolisen tilakokonaisuuden, joka soveltuu 8–30 henkilön käyttöön. Tila on jaettavissa pienempiin osiin, mikä mahdollistaa joustavat vaihtoehdot.Esimerkiksi 53 m²:n tyylikäs mallitoimisto on juuri valmistunut ja huokuu modernia ilmettä. Tilassa on laadukkaat huonekalut, valaisimet, matot, verhot ja muut sisustustuotteet, jotka voidaan ostaa vuokrauksen yhteydessä – täydellinen ratkaisu, jos haluat muuttaa valmiiseen ja inspiroivaan työympäristöön.
Lisäksi tarjolla on 56,5 m²:n varastotila, jossa lastaus tapahtuu kätevästi maantasosta. Tilassa ei ole nosto-ovea, mutta se on siisti ja toimiva ratkaisu varastointiin.
Oheiset kuvat sisältävät myös virtuaalistailatun näkymän tilasta. Kaikki tilat ovat heti vapaita.
Kiinteistön on tarjolla ylempien kerrosten toimistotiloja, pienvarastotilaa sekä pientoimistotilaa, joka palvelee yrityksiä myös projektikäytössä. Kysy lisää!
Malmin Kauppatie 12 / Turkhaudantie 5 – Monipuoliset toimistotilat Malmin ytimessä
Sijainti
Kiinteistö sijaitsee Malmin keskustassa, vain lyhyen kävelymatkan päässä Malmin juna-asemalta ja alueen monipuolisista palveluista.
Sijainti on erinomainen: linja-autopysäkille on vain 170 metriä, juna-asemalle 230 metriä ja Helsinki-Vantaan lentoasemalle noin 9 kilometriä. Kehä I:lle on matkaa vain 1 km, Helsingin keskustaan autolla noin 12,5 km ja junalla vain 15 minuuttia. Tikkurilaan junamatka kestää 6 minuuttia. Kohteeseen on helppo saapua myös Tuusulanväylältä ja Lahdenväylältä, mikä tekee sijainnista logistisesti erinomaisen.
Palvelut
Kiinteistö tarjoaa yrityksille monipuoliset ja käytännölliset palvelut, jotka tukevat sujuvaa arkea ja viihtyisää työympäristöä. Pysäköinti on järjestetty joustavasti: omia paikkoja on vuokrattavissa sekä autohallista että radanvarresta, ja asiakkaille on varattu muutama kiekkopaikka sisäänkäynnin läheisyydestä.
Työntekijöiden hyvinvointia tukevat modernit sosiaalitilat, kuten pukuhuoneet ja suihkut, jotka sopivat erinomaisesti pyöräilijöille ja lenkkeilijöille. Rakennuksessa on koneellinen ilmanvaihto ja palkkijäähdytys huonekohtaisella säätömahdollisuudella, mikä takaa miellyttävät sisäolosuhteet ympäri vuoden.
Lisäksi kävelymatkan päässä sijaitsevat Kauppakeskus Malmin Nova ja Malmintori, sekä monipuoliset hyvinvointipalvelut ja ravintolat – täydellinen sijainti niin työntekijöille kuin asiakkaille.
Vastuullisuus
Vuonna 2023 kiinteistöön toteutettiin merkittävä energiatehokkuushanke. Ilmanvaihtokoneisiin vaihdettiin nykyaikaiset moottorit ja järjestelmään lisättiin vesi-ilmalämpöpumppu (VILP), mikä parantaa sisäilman tasaisuutta ja vähentää energiankulutusta.
Ota yhteyttä
Kiinnostuitko? Ota yhteyttä ja tule tutustumaan!
Toimitilavälityspalvelumme on tilanhakijalle maksuton.
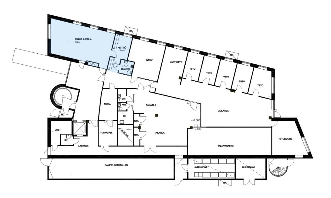
Koko kerros, 452 m², tarjoaa avaran ja monipuolisen tilakokonaisuuden, joka soveltuu 8–30 henkilön käyttöön. Tila on jaettavissa pienempiin osiin, mikä mahdollistaa joustavat vaihtoehdot.Esimerkiksi 53 m²:n tyylikäs mallitoimisto on juuri valmistunut ja huokuu modernia ilmettä. Tilassa on laadukkaat huonekalut, valaisimet, matot, verhot ja muut sisustustuotteet, jotka voidaan ostaa vuokrauksen yhteydessä – täydellinen ratkaisu, jos haluat muuttaa valmiiseen ja inspiroivaan työympäristöön.
Lisäksi tarjolla on 56,5 m²:n varastotila, jossa lastaus tapahtuu kätevästi maantasosta. Tilassa ei ole nosto-ovea, mutta se on siisti ja toimiva ratkaisu varastointiin.
Oheiset kuvat sisältävät myös virtuaalistailatun näkymän tilasta. Kaikki tilat ovat heti vapaita.
Kiinteistön on tarjolla ylempien kerrosten toimistotiloja, pienvarastotilaa sekä pientoimistotilaa, joka palvelee yrityksiä myös projektikäytössä. Kysy lisää!
Malmin Kauppatie 12 / Turkhaudantie 5 – Monipuoliset toimistotilat Malmin ytimessä
Sijainti
Kiinteistö sijaitsee Malmin keskustassa, vain lyhyen kävelymatkan päässä Malmin juna-asemalta ja alueen monipuolisista palveluista.
Sijainti on erinomainen: linja-autopysäkille on vain 170 metriä, juna-asemalle 230 metriä ja Helsinki-Vantaan lentoasemalle noin 9 kilometriä. Kehä I:lle on matkaa vain 1 km, Helsingin keskustaan autolla noin 12,5 km ja junalla vain 15 minuuttia. Tikkurilaan junamatka kestää 6 minuuttia. Kohteeseen on helppo saapua myös Tuusulanväylältä ja Lahdenväylältä, mikä tekee sijainnista logistisesti erinomaisen.
Palvelut
Kiinteistö tarjoaa yrityksille monipuoliset ja käytännölliset palvelut, jotka tukevat sujuvaa arkea ja viihtyisää työympäristöä. Pysäköinti on järjestetty joustavasti: omia paikkoja on vuokrattavissa sekä autohallista että radanvarresta, ja asiakkaille on varattu muutama kiekkopaikka sisäänkäynnin läheisyydestä.
Työntekijöiden hyvinvointia tukevat modernit sosiaalitilat, kuten pukuhuoneet ja suihkut, jotka sopivat erinomaisesti pyöräilijöille ja lenkkeilijöille. Rakennuksessa on koneellinen ilmanvaihto ja palkkijäähdytys huonekohtaisella säätömahdollisuudella, mikä takaa miellyttävät sisäolosuhteet ympäri vuoden.
Lisäksi kävelymatkan päässä sijaitsevat Kauppakeskus Malmin Nova ja Malmintori, sekä monipuoliset hyvinvointipalvelut ja ravintolat – täydellinen sijainti niin työntekijöille kuin asiakkaille.
Vastuullisuus
Vuonna 2023 kiinteistöön toteutettiin merkittävä energiatehokkuushanke. Ilmanvaihtokoneisiin vaihdettiin nykyaikaiset moottorit ja järjestelmään lisättiin vesi-ilmalämpöpumppu (VILP), mikä parantaa sisäilman tasaisuutta ja vähentää energiankulutusta.
Ota yhteyttä
Kiinnostuitko? Ota yhteyttä ja tule tutustumaan!
Toimitilavälityspalvelumme on tilanhakijalle maksuton.
Vapautuu
Kysy
Kerros
1
Ota yhteyttä
Logistila Oy
Kylätie 11-13, 00320 HELSINKI
Karoliina Turppo
Näytä puhelinnumero
050 345 3258
Pyydä lisätietoa
