Vuokrataan tuotantotilat, varastotilat - Espoo
Koskelonkuja 1, Koskelo, 02920 Espoo #10847591
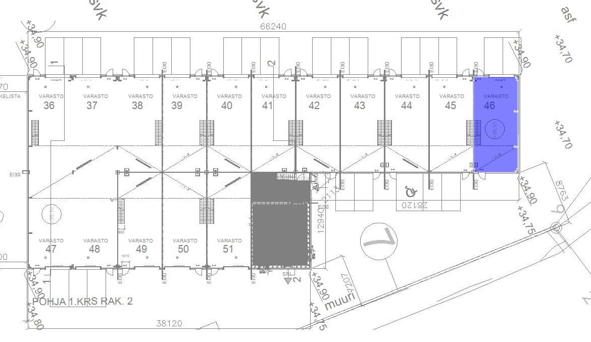
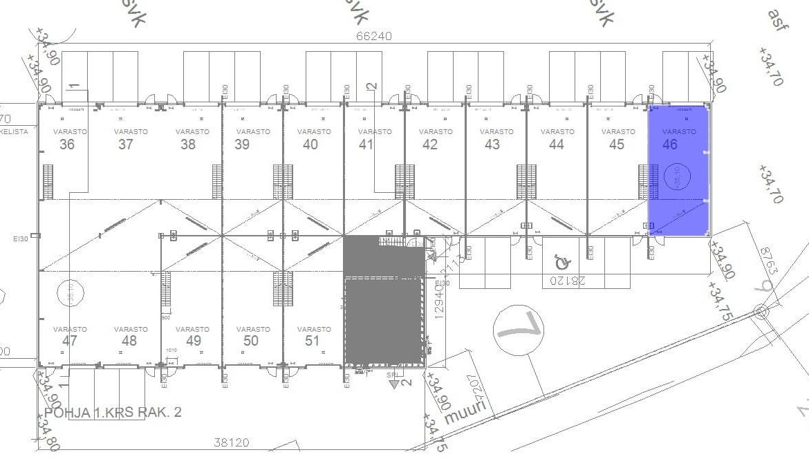
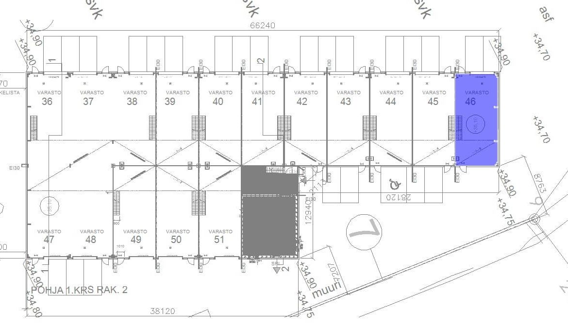
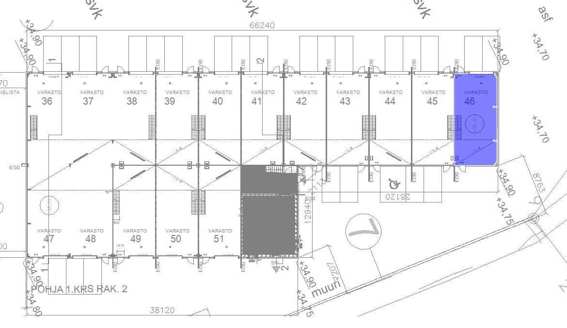
Koskelonkuja 1 B - Tuotanto- / varastotila 97,5 m²
Osoite
Koskelonkuja 1, 02920 Espoo
Tilatyyppi
Tuotantotilaa
98 m2
Varastotilaa
98 m2
Yhteensä
98 m2
Pohjapiirros
Kiinteistö
Vuokrattavana sisään ajettava ja monikäyttöinen tuotanto- / varasto- / työtila B-talossa, jonka kokonaispinta-ala on n. 97,5 m². Tilassa yhdistyvät käytännöllisyys ja toimivuus: avara tuotantotila (n. 77 m²) tarjoaa erinomaiset puitteet monenlaiseen käyttöön, ja sen yhteydessä sijaitsee kätevä toisen kerroksen toimistoparvi (n. 20 m²). Parvella on oma keittiö sekä suihku- ja wc-tila, mikä tekee tilasta täydellisen ratkaisun yrityksille, jotka arvostavat mukavuutta ja tehokkuutta samassa paketissa.
Huomioithan, että tila ei sovellu autokorjaamotoimintaan pihatilan rajallisuuden vuoksi.
Koskelonkuja 1 – Modernit ja muunneltavat tilat Espoossa
Vuonna 2017 valmistunut kiinteistö tarjoaa nykyaikaisia ja edustavia tiloja, jotka on suunniteltu joustavasti käyttäjän tarpeisiin. Tilat soveltuvat erinomaisesti tuotanto-, varasto-, myynti- tai näyttelykäyttöön. Yksittäisen lohkon koko: noin 97,5 m² (tuotantotila: n. 77 m² + toimistoparvi: n. 20 m²). Tiloja voi yhdistää suuremmiksi kokonaisuuksiksi, mikä mahdollistaa joustavat ratkaisut kasvavan liiketoiminnan tarpeisiin.
Jokaisessa tilassa on
nosto-ovi
erillinen käyntiovi
öljynerotuskaivo
voimavirta (16 A)
vesipiste
toimistoparvi/taukotila
keittiö
WC ja suihkunurkka
Kiinteistössä toimii useita eri alojen yrityksiä, mikä luo monipuolisen ja aktiivisen yritysyhteisön.
Sijainti
Kiinteistö sijaitsee Kehä III:n välittömässä läheisyydessä ja vilkkaan Koskelontien varrella, mikä takaa erinomaisen näkyvyyden ja helpon saavutettavuuden.
Julkinen liikenne toimii sujuvasti: Koskelontien bussipysäkit ovat aivan kiinteistön lähellä, vain lyhyen kävelymatkan päässä.
Etäisyydet keskeisiin kohteisiin:
Turunväylä: n. 7 km
Hämeenlinnanväylä: n. 9 km
Helsinki-Vantaan lentoasema: n. 18 km
Vastuullisuus
Kiinteistön lämmitysratkaisuna toimii energiatehokas maalämpö, joka vähentää hiilijalanjälkeä ja tuo säästöjä energiankulutuksessa. Lisäksi kiinteistössä on sähköautojen latauspisteet, mikä tukee ympäristöystävällisiä liikkumisratkaisuja.
Kiinteistöllä on BREEAM Very Good -sertifiointi.
Ota yhteyttä
Kiinnostuitko? Ota yhteyttä ja tule tutustumaan!
Toimitilavälityspalvelumme on tilanhakijalle maksuton.
Huomioithan, että tila ei sovellu autokorjaamotoimintaan pihatilan rajallisuuden vuoksi.
Koskelonkuja 1 – Modernit ja muunneltavat tilat Espoossa
Vuonna 2017 valmistunut kiinteistö tarjoaa nykyaikaisia ja edustavia tiloja, jotka on suunniteltu joustavasti käyttäjän tarpeisiin. Tilat soveltuvat erinomaisesti tuotanto-, varasto-, myynti- tai näyttelykäyttöön. Yksittäisen lohkon koko: noin 97,5 m² (tuotantotila: n. 77 m² + toimistoparvi: n. 20 m²). Tiloja voi yhdistää suuremmiksi kokonaisuuksiksi, mikä mahdollistaa joustavat ratkaisut kasvavan liiketoiminnan tarpeisiin.
Jokaisessa tilassa on
nosto-ovi
erillinen käyntiovi
öljynerotuskaivo
voimavirta (16 A)
vesipiste
toimistoparvi/taukotila
keittiö
WC ja suihkunurkka
Kiinteistössä toimii useita eri alojen yrityksiä, mikä luo monipuolisen ja aktiivisen yritysyhteisön.
Sijainti
Kiinteistö sijaitsee Kehä III:n välittömässä läheisyydessä ja vilkkaan Koskelontien varrella, mikä takaa erinomaisen näkyvyyden ja helpon saavutettavuuden.
Julkinen liikenne toimii sujuvasti: Koskelontien bussipysäkit ovat aivan kiinteistön lähellä, vain lyhyen kävelymatkan päässä.
Etäisyydet keskeisiin kohteisiin:
Turunväylä: n. 7 km
Hämeenlinnanväylä: n. 9 km
Helsinki-Vantaan lentoasema: n. 18 km
Vastuullisuus
Kiinteistön lämmitysratkaisuna toimii energiatehokas maalämpö, joka vähentää hiilijalanjälkeä ja tuo säästöjä energiankulutuksessa. Lisäksi kiinteistössä on sähköautojen latauspisteet, mikä tukee ympäristöystävällisiä liikkumisratkaisuja.
Kiinteistöllä on BREEAM Very Good -sertifiointi.
Ota yhteyttä
Kiinnostuitko? Ota yhteyttä ja tule tutustumaan!
Toimitilavälityspalvelumme on tilanhakijalle maksuton.
Vapautuu
Kysy
Kerros
1
Ota yhteyttä
LogisTila Oy
Kylätie 11-13, 00320 HELSINKI
Karoliina Turppo
Näytä puhelinnumero
050 345 3258
Pyydä lisätietoa
