Videoesittely
Myydään tuotantotilat, varastotilat, työtilat, autotalli/-hallitilat - Helsinki
Kivikonlaita 47, Kivikko, 00940 Helsinki #10847503
Myytävänä hyvä hallitila Kivikossa!
Osoite
Kivikonlaita 47, 00940 Helsinki
Tilatyyppi
Tuotantotilaa
89 m2
Varastotilaa
89 m2
Työtilaa
89 m2
Autotalli/-hallitilaa
89 m2
Yhteensä
89 m2
Virtuaaliesittely
Myyntihinta
159'800 € (velaton hinta)
Muuta
Helsingin Kivikossa on nyt myytävänä hallitila. Tila sijaitsee rakennuksen rauhallisessa takapäädyssä. Yhtiön piha-alue on asfaltoitu ja tilaan sisältyy 2 autopaikkaa.
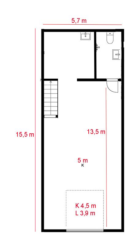
Rakennus valmistui vuonna 2015. Hyvin varustellussa, suorakaiteen mallisessa hallitilassa on käyntiovi, sähkökäyttöinen nosto-ovi (L3,9xK4,5), lattiakaivo hiekan ja öljyn erotuksella, ilmalämpöpumppu, vesipiste, hyvä valaistus, koneellinen poisto, wc ja suihku. Ylhäällä takaseinällä on ikkunat. Vapaa korkeus hallissa on noin 5,5 metriä. Hallin lattian mitat ovat noin 5,7×15,5 metriä ja parven mitat ovat noin 5,7×2,0 metriä.
Hallitilassa olevalle parvelle ei ole haettu rakennus- tai toimenpidelupaa. Yhtiöllä on käyttämätöntä rakennusoikeutta noin 8 m² per hallitila. Ostaja vastaa tarvittaessa luvan hakemisesta tai parven purkamisesta.
Lämmitysmuotona on suora sähkölämmitys pattereilla ja ilmalämpöpumpulla. Hallissa on tilakohtainen sähkö- ja vesimittaus.
Yhtiössä on 8 vastaavaa tilaa. Yhtiöllä ei ole yhtiölainaa.
Tila voidaan ottaa arvonlisäverolliseen yrityskäyttöön tai arvonlisäverottomaan yksityiskäyttöön.
Tila ei sovellu autopesulaksi tai autokorjaamoksi.
Loistavalla sijainnilla laadukas hallitila myytävänä!
Kohdetiedot
Sijainti
Katuosoite: Kivikonlaita 47 (Halli 8), 00940 Helsinki
Kaupunginosa: Kivikko
Ympäristö: Teollisuusalue
Tontti
Pinta-ala: 1654 m²
Omistusmuoto: Helsingin kaupungin vuokratontti (sopimus 31.7.2044 asti)
Kaava: Kaavamerkintä T ja e=0,5
Rakennus/huoneisto
Pinta-alat: Noin 89 m² (yhtiöjärjestyksen mukainen pinta-ala 95 m²)
Rakennusvuosi: 2015
Energiatodistus: Ei lain vaatimaa todistusta
Rakennustyyppi: Varastohallirakennus
Huoneistotyyppi/Käyttötarkoitus: Varastotila
Kunto, varusteet ja palvelut: Käyntiovi, nosto-ovi, lattiakaivo, ilmalämpöpumppu, vesipiste, wc ja suihku
Lämmitys: Suora sähkölämmitys (patterit ja ilmalämpöpumppu)
Pysäköinti: Pihassa (2 paikkaa)
Vapautuu: Heti vapaa
Myyntihinta ja kulut
Velaton hinta: 159’800 €
Hoitovastike: 250 €/kk + alv
Sähkö- ja vesimaksu: Mittauksen mukaan (sähkölle oma sähkösopimus)
Rakennus valmistui vuonna 2015. Hyvin varustellussa, suorakaiteen mallisessa hallitilassa on käyntiovi, sähkökäyttöinen nosto-ovi (L3,9xK4,5), lattiakaivo hiekan ja öljyn erotuksella, ilmalämpöpumppu, vesipiste, hyvä valaistus, koneellinen poisto, wc ja suihku. Ylhäällä takaseinällä on ikkunat. Vapaa korkeus hallissa on noin 5,5 metriä. Hallin lattian mitat ovat noin 5,7×15,5 metriä ja parven mitat ovat noin 5,7×2,0 metriä.
Hallitilassa olevalle parvelle ei ole haettu rakennus- tai toimenpidelupaa. Yhtiöllä on käyttämätöntä rakennusoikeutta noin 8 m² per hallitila. Ostaja vastaa tarvittaessa luvan hakemisesta tai parven purkamisesta.
Lämmitysmuotona on suora sähkölämmitys pattereilla ja ilmalämpöpumpulla. Hallissa on tilakohtainen sähkö- ja vesimittaus.
Yhtiössä on 8 vastaavaa tilaa. Yhtiöllä ei ole yhtiölainaa.
Tila voidaan ottaa arvonlisäverolliseen yrityskäyttöön tai arvonlisäverottomaan yksityiskäyttöön.
Tila ei sovellu autopesulaksi tai autokorjaamoksi.
Loistavalla sijainnilla laadukas hallitila myytävänä!
Kohdetiedot
Sijainti
Katuosoite: Kivikonlaita 47 (Halli 8), 00940 Helsinki
Kaupunginosa: Kivikko
Ympäristö: Teollisuusalue
Tontti
Pinta-ala: 1654 m²
Omistusmuoto: Helsingin kaupungin vuokratontti (sopimus 31.7.2044 asti)
Kaava: Kaavamerkintä T ja e=0,5
Rakennus/huoneisto
Pinta-alat: Noin 89 m² (yhtiöjärjestyksen mukainen pinta-ala 95 m²)
Rakennusvuosi: 2015
Energiatodistus: Ei lain vaatimaa todistusta
Rakennustyyppi: Varastohallirakennus
Huoneistotyyppi/Käyttötarkoitus: Varastotila
Kunto, varusteet ja palvelut: Käyntiovi, nosto-ovi, lattiakaivo, ilmalämpöpumppu, vesipiste, wc ja suihku
Lämmitys: Suora sähkölämmitys (patterit ja ilmalämpöpumppu)
Pysäköinti: Pihassa (2 paikkaa)
Vapautuu: Heti vapaa
Myyntihinta ja kulut
Velaton hinta: 159’800 €
Hoitovastike: 250 €/kk + alv
Sähkö- ja vesimaksu: Mittauksen mukaan (sähkölle oma sähkösopimus)
Vapautuu
Heti
Katutasossa
Näkyvällä paikalla
Ota yhteyttä
Tilat.fi
KTM, LKV Antti Soivio
Näytä puhelinnumero
0400 446 553
OTM, LKV Riikka Tuominen
Näytä puhelinnumero
0400 551 790
KTM, LKV Maria-Sofia Puhakka
Näytä puhelinnumero
0400-150330
MBA Susanne Wallenius
Näytä puhelinnumero
0400-128877
Yrityksen virallinen nimi: LKV Tilat.fi Oy.
Toimitilojen välitykseen erikoistunut yritys.
Pyydä lisätietoa
