Vuokrataan liiketilat, näyttelytilat, tuotantotilat, varastotilat, työtilat, autotalli/-hallitilat - Porvoo
Merituulentie 32, 06150 Porvoo #10847499
Hyvät toimitilat monenlaiseen käyttöön!
Osoite
Merituulentie 32, 06150 Porvoo
Tilatyyppi
Liiketilaa
360 - 1030 m2
Näyttelytilaa
360 - 1030 m2
Tuotantotilaa
360 - 1030 m2
Varastotilaa
360 - 1030 m2
Työtilaa
360 - 1030 m2
Autotalli/-hallitilaa
360 - 1030 m2
Yhteensä
360 - 1030 m2
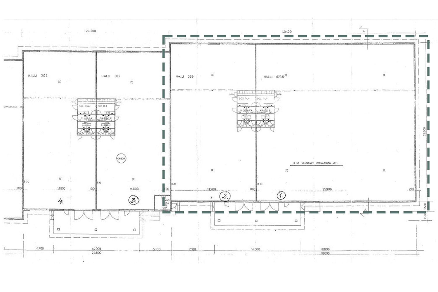
Pohjapiirros
Virtuaaliesittely
Vuokra
4 €/m²/kk + alv
Vuokraan sisältyy lämpö
Muuta
Porvoon Kevätkummun yritys- ja hallialueella vuokrattavana monipuolista toimitilaa isosta hallirakennuksesta. Tila sopii myymäläksi, varastoksi, työtilaksi, kevyeen tuotantoon…
Tila ei kuitenkaan sovellu autokorjaamoksi tai -pesulaksi.
Tilan kokonaispinta-ala on noin 1030 m² ja siitä on mahdollista vuokrata myös puolet tai kolmasosa. Tällä hetkellä tila on pääosin avointa tilaa, mutta helppo jakaa väliseinillä. Tilassa wc- ja sosiaalitilat valmiina. Sisätilan vapaa korkeus on 3,5 metriä. Nykyisten valaisimien alapintaan on lattiasta mitattuna 3,3 metriä. Tilaan on kulku käyntioven, parioven ja lastauslaiturin kautta. Lastauslaituri on pieni ja ja lastaus on lähes maantasolla. Rakennuksessa on useita lattiakaivoja ja vesipisteitä sekä useita wc-tiloja.
Rakennuksessa on hyvä koneellinen ilmanvaihto. Voidaan remontoida tarpeen mukaan, mutta remontin kustannukset lisätään vuokraan.
Piha-alue on asfaltoitu ja siinä on paljon paikoitustilaa. Isommalla yhdistelmällä mahtuu hyvin kääntymään ja purkamaan.
Nopeat yhteydet Porvoon moottoritielle ja Porvoon keskustaan.
Monipuoliset tilat myymäläksi, työ- tai varastotilaksi!
Kohdetiedot
Sijainti
Katuosoite: Merituulentie 32, 06150 Porvoo
Kaupunginosa: Kevätkumpu
Ympäristö: Teollisuusalue
Rakennus/huoneisto
Pinta-alat: Noin 360-1030 m²
Rakennusvuosi: 1990
Rakennustyyppi: Teollisuushallirakennus
Huoneistoselitelmä: Myymälä- /varastohallitila
Kunto, varusteet ja palvelut: Hyvässä kunnossa. Tilassa valmiina wc- ja sosiaalitilat
Vapautuu: Nopeasti
Vuokrahinta ja kulut
Kuukausivuokra: 4 €/m²/kk + alv
Vesimaksu: Mittauksen mukaan
Sähkö: Mittauksen mukaan
Jätehuolto ja auraus: Vuokralainen vastaa järjestelyistä ja kuluista
Lämmitys: Sisältyy vuokraan
Muuta: Vakuus 3kk vuokraa vastaava summa, minimisopimus 12kk ja luottotietojen on oltava kunnossa
Tila ei kuitenkaan sovellu autokorjaamoksi tai -pesulaksi.
Tilan kokonaispinta-ala on noin 1030 m² ja siitä on mahdollista vuokrata myös puolet tai kolmasosa. Tällä hetkellä tila on pääosin avointa tilaa, mutta helppo jakaa väliseinillä. Tilassa wc- ja sosiaalitilat valmiina. Sisätilan vapaa korkeus on 3,5 metriä. Nykyisten valaisimien alapintaan on lattiasta mitattuna 3,3 metriä. Tilaan on kulku käyntioven, parioven ja lastauslaiturin kautta. Lastauslaituri on pieni ja ja lastaus on lähes maantasolla. Rakennuksessa on useita lattiakaivoja ja vesipisteitä sekä useita wc-tiloja.
Rakennuksessa on hyvä koneellinen ilmanvaihto. Voidaan remontoida tarpeen mukaan, mutta remontin kustannukset lisätään vuokraan.
Piha-alue on asfaltoitu ja siinä on paljon paikoitustilaa. Isommalla yhdistelmällä mahtuu hyvin kääntymään ja purkamaan.
Nopeat yhteydet Porvoon moottoritielle ja Porvoon keskustaan.
Monipuoliset tilat myymäläksi, työ- tai varastotilaksi!
Kohdetiedot
Sijainti
Katuosoite: Merituulentie 32, 06150 Porvoo
Kaupunginosa: Kevätkumpu
Ympäristö: Teollisuusalue
Rakennus/huoneisto
Pinta-alat: Noin 360-1030 m²
Rakennusvuosi: 1990
Rakennustyyppi: Teollisuushallirakennus
Huoneistoselitelmä: Myymälä- /varastohallitila
Kunto, varusteet ja palvelut: Hyvässä kunnossa. Tilassa valmiina wc- ja sosiaalitilat
Vapautuu: Nopeasti
Vuokrahinta ja kulut
Kuukausivuokra: 4 €/m²/kk + alv
Vesimaksu: Mittauksen mukaan
Sähkö: Mittauksen mukaan
Jätehuolto ja auraus: Vuokralainen vastaa järjestelyistä ja kuluista
Lämmitys: Sisältyy vuokraan
Muuta: Vakuus 3kk vuokraa vastaava summa, minimisopimus 12kk ja luottotietojen on oltava kunnossa
Vapautuu
Heti
Rakennusvuosi
1990
Kerros
1 / 1
Katutasossa
Näkyvällä paikalla
Lastauslaituri
Ota yhteyttä
Tilat.fi
KTM, LKV Antti Soivio
Näytä puhelinnumero
0400 446 553
OTM, LKV Riikka Tuominen
Näytä puhelinnumero
0400 551 790
KTM, LKV Maria-Sofia Puhakka
Näytä puhelinnumero
0400-150330
HTM, LKV Aleksandra Riki
Näytä puhelinnumero
0400-211288
LKV Tilat.fi Oy on toimitilojen välitykseen erikoistunut yritys.
http://www.tilat.fiPyydä lisätietoa
