Uudiskohde
Vuokrataan toimistotilat, liiketilat, näyttelytilat, tuotantotilat, varastotilat, työtilat, autotalli/-hallitilat - Nokia
Juurakkotie 4, 37150 Nokia #10846938
Uutta, modernia ja energiatehokasta toimitilaa rakenteilla Nokian Kankaantaan teollisuusalueelle.
Tilat soveltuvat erinomaisesti yritysten, yrittäjien ja yksityisten käyttöön – varastointiin, työtilaksi, harrastekäyttöön tai pienimuotoiseen tuotantoon.
Valmistuminen: Helmikuussa 2026
Osoite
Juurakkotie 4, 37150 Nokia
Tilatyyppi
Toimistotilaa
52 m2
Liiketilaa
52 m2
Näyttelytilaa
52 m2
Tuotantotilaa
52 m2
Varastotilaa
52 m2
Työtilaa
52 m2
Autotalli/-hallitilaa
52 m2
Yhteensä
52 m2
Vuokra
430 €/kk + ALV (yritykset) tai 470 €/kk (yksityiset)
Vuokraan sisältyy lämpö
Kiinteistö
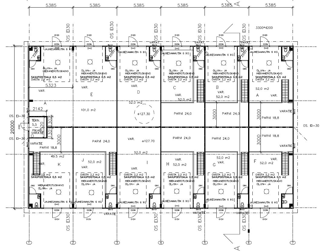
Monikäyttöiset ja muunneltavat tilat: 52,0m2 - 76,0m2
Kiinteistö tarjoaa tehokasta hallitilaa eri kokoisina kokonaisuuksina.
Tilat ovat räätälöitävissä käyttötarpeen mukaan, ja osassa on parvia.
Toimi ajoissa – vielä ehdit vaikuttamaan tilaratkaisuihin ja varustelutasoon!
Tilojen varustelu:
• Betonilattia, MasterTop-hiertopinta
• Maalämpö ja vesikiertoinen lattialämmitys (n. ±15 °C)
• Poistoilmanvaihto kanavapuhaltimella
• Lattiakaivo huoneistokohtaisella hiekan- ja öljynerotuksella
• WC-tila (wc-istuin, lavuaari, peili, 50 l lämminvesivaraaja)
• Vesipiste hallissa
• Hyvä LED-valaistus
• 25 A voimavirta- ja valovirtapistorasiat
• Oma sähkö- ja vesimittari
Hallin mitat ja ovet:
• Moottoroitu nosto-ovi n. 3,3 m (lev.) × 4,2 m (kork.), varustettu käyntiovella
• Hallin korkeus keskellä 6,5 m, reunoilla 4,8 m
• Autolla sisään ajettava tila
• Osa tiloista läpiajettavia!
• Asfaltoitu piha-alue
• Kiinteistössä kameravalvonta
Kiinteistö tarjoaa tehokasta hallitilaa eri kokoisina kokonaisuuksina.
Tilat ovat räätälöitävissä käyttötarpeen mukaan, ja osassa on parvia.
Toimi ajoissa – vielä ehdit vaikuttamaan tilaratkaisuihin ja varustelutasoon!
Tilojen varustelu:
• Betonilattia, MasterTop-hiertopinta
• Maalämpö ja vesikiertoinen lattialämmitys (n. ±15 °C)
• Poistoilmanvaihto kanavapuhaltimella
• Lattiakaivo huoneistokohtaisella hiekan- ja öljynerotuksella
• WC-tila (wc-istuin, lavuaari, peili, 50 l lämminvesivaraaja)
• Vesipiste hallissa
• Hyvä LED-valaistus
• 25 A voimavirta- ja valovirtapistorasiat
• Oma sähkö- ja vesimittari
Hallin mitat ja ovet:
• Moottoroitu nosto-ovi n. 3,3 m (lev.) × 4,2 m (kork.), varustettu käyntiovella
• Hallin korkeus keskellä 6,5 m, reunoilla 4,8 m
• Autolla sisään ajettava tila
• Osa tiloista läpiajettavia!
• Asfaltoitu piha-alue
• Kiinteistössä kameravalvonta
Sijainti
Avarat valoisat tilat Nokian kankaantaan teollisuus alueella!
Pysäköinti
Hyvä piha-alue, joka asfaltoidaan 2026 keväällä.
Muuta
Vuokraesimerkkejä:
52,0 m2 = 52,0 m2 ilman parvi, yritykset: 430 €/kk + ALV --> yksityiset: 470 €/kk
68,3 m2 = 49,5 m2 + 18,8 m2 parvi, yritykset: 460 €/kk + ALV --> yksityiset: 510 €/kk
70,8 m2 = 52,0 m2 + 18,8 m2 parvi, yritykset: 480 €/kk + ALV --> yksityiset: 530 €/kk
76,0 m2 = 52,0 m2 + 24,0 m2 parvi, yritykset: 495 €/kk + ALV --> yksityiset: 545 €/kk
Vuokra sisältää:
- Lämmityksen
- Pihan hoidon
Vuokravakuus 2 kk:n vuokraa vastaava vakuus, muut ehdot sopimuksen mukaan.
Vuokrasopimus yksi vuosi, jonka jälkeen toistaiseksi voimassa olevana.
Vuokran lisäksi veloitetaan vesiennakko 10 €/kk.
52,0 m2 = 52,0 m2 ilman parvi, yritykset: 430 €/kk + ALV --> yksityiset: 470 €/kk
68,3 m2 = 49,5 m2 + 18,8 m2 parvi, yritykset: 460 €/kk + ALV --> yksityiset: 510 €/kk
70,8 m2 = 52,0 m2 + 18,8 m2 parvi, yritykset: 480 €/kk + ALV --> yksityiset: 530 €/kk
76,0 m2 = 52,0 m2 + 24,0 m2 parvi, yritykset: 495 €/kk + ALV --> yksityiset: 545 €/kk
Vuokra sisältää:
- Lämmityksen
- Pihan hoidon
Vuokravakuus 2 kk:n vuokraa vastaava vakuus, muut ehdot sopimuksen mukaan.
Vuokrasopimus yksi vuosi, jonka jälkeen toistaiseksi voimassa olevana.
Vuokran lisäksi veloitetaan vesiennakko 10 €/kk.
Vapautuu
Kysy
Rakennusvuosi
2026 (uudiskohde)
Energiatehokkuusluokka
A2018
Uudiskohde
Katutasossa
Ota yhteyttä
Näytä puhelinnumero 0500222277
Kiinnostuitko?
Ota yhteyttä ja varaa oma tilasi jo nyt!
Lisätiedot ja varaukset:
[Azam Khan,
Näytä puhelinnumero
0500 222 277
, info@focusinteriors.fi]
Pyydä lisätietoa