Uudiskohde
Vuokrataan toimistotilat, liiketilat, näyttelytilat, tuotantotilat, varastotilat, työtilat, autotalli/-hallitilat, muut tilat - Nokia
Juurakkotie 4, 37150 Nokia #10846938
Vuokrattavana uutta, modernia ja energiatehokasta toimitilaa Nokian Kankaantaan teollisuusalueella!
Tilat soveltuvat erinomaisesti yritysten, yrittäjien ja yksityisten käyttöön – varastointiin, työtilaksi, harrastekäyttöön tai pienimuotoiseen tuotantoon.
Rakennus valmistuu 01.03.2026.
Osoite
Juurakkotie 4, 37150 Nokia
Tilatyyppi
Toimistotilaa
70 m2
Liiketilaa
70 m2
Näyttelytilaa
70 m2
Tuotantotilaa
70 m2
Varastotilaa
70 m2
Työtilaa
70 m2
Autotalli/-hallitilaa
70 m2
Muuta tilaa
70 m2
Yhteensä
70 m2
Vuokra
490 €/kk + ALV (yritykset) tai 590 €/kk (yksityiset)
Vuokraan sisältyy lämpö
Kiinteistö
Tilat ovat joustavasti räätälöitävissä eri käyttötarpeisiin, ja kaikissa tiloissa on käytännöllinen parvi.
Kiinteistö lämpenee ympäristöystävällisellä maalämmöllä, joka sisältyy vuokraan.
Toimi ajoissa – vielä ehdit vaikuttamaan tilaratkaisuihin ja varustelutasoon!
Tilat & vuokraesimerkki:
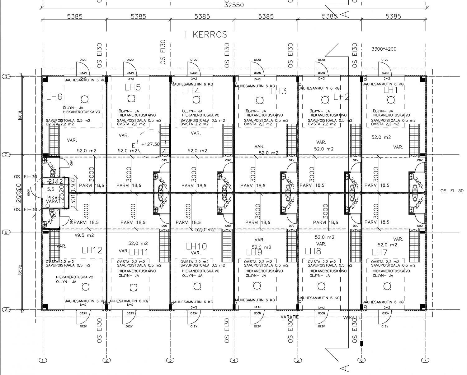
✔ 10 kpl varasto 70,5 m² (52,0 m² + 18,5 m² parvi)
✔ 2 kpl varasto 68,0 m² (49,5 m² + 18,5 m² parvi)
✔ Vapaana 3 kpl (15.01.2026)
💰 Vuokra:
• Yritykset 490 €/kk + ALV
• Yksityiset 590 €/kk
👉 Vuokraan sisältyy lämpö ja pihanhoito
Tilojen varustelu:
• Betonilattia, MasterTop-hiertopinta
• Maalämpö ja vesikiertoinen lattialämmitys (n. ±15 °C)
• Poistoilmanvaihto kanavapuhaltimella
• Lattiakaivo huoneistokohtaisella hiekan- ja öljynerotuksella
• WC-tila (wc-istuin, lavuaari, peili, 50 l lämminvesivaraaja)
• Vesipiste hallissa
• Hyvä LED-valaistus
• 25 A voimavirta- ja valovirtapistorasiat
• Oma sähkö- ja vesimittari
Hallin mitat ja ovet:
• Moottoroitu nosto-ovi n. 3,3 m (lev.) × 4,2 m (kork.), varustettu käyntiovella
• Hallin korkeus keskellä 6,5 m, reunoilla 4,8 m
• Autolla sisään ajettava tila
• Osa tiloista läpiajettavia!
• Asfaltoitu piha-alue
• Kiinteistössä kameravalvonta
Kiinteistö lämpenee ympäristöystävällisellä maalämmöllä, joka sisältyy vuokraan.
Toimi ajoissa – vielä ehdit vaikuttamaan tilaratkaisuihin ja varustelutasoon!
Tilat & vuokraesimerkki:
✔ 10 kpl varasto 70,5 m² (52,0 m² + 18,5 m² parvi)
✔ 2 kpl varasto 68,0 m² (49,5 m² + 18,5 m² parvi)
✔ Vapaana 3 kpl (15.01.2026)
💰 Vuokra:
• Yritykset 490 €/kk + ALV
• Yksityiset 590 €/kk
👉 Vuokraan sisältyy lämpö ja pihanhoito
Tilojen varustelu:
• Betonilattia, MasterTop-hiertopinta
• Maalämpö ja vesikiertoinen lattialämmitys (n. ±15 °C)
• Poistoilmanvaihto kanavapuhaltimella
• Lattiakaivo huoneistokohtaisella hiekan- ja öljynerotuksella
• WC-tila (wc-istuin, lavuaari, peili, 50 l lämminvesivaraaja)
• Vesipiste hallissa
• Hyvä LED-valaistus
• 25 A voimavirta- ja valovirtapistorasiat
• Oma sähkö- ja vesimittari
Hallin mitat ja ovet:
• Moottoroitu nosto-ovi n. 3,3 m (lev.) × 4,2 m (kork.), varustettu käyntiovella
• Hallin korkeus keskellä 6,5 m, reunoilla 4,8 m
• Autolla sisään ajettava tila
• Osa tiloista läpiajettavia!
• Asfaltoitu piha-alue
• Kiinteistössä kameravalvonta
Sijainti
Käytännölliset tilat Nokian Kankaantaan teollisuusalueella!
Halli on ulkopuolelta valmis. Tammikuussa rakennetaan väliseinät ja parvet, ja kohde valmistuu helmikuun lopussa.
Halli on ulkopuolelta valmis. Tammikuussa rakennetaan väliseinät ja parvet, ja kohde valmistuu helmikuun lopussa.
Pysäköinti
Hyvä piha-alue, joka asfaltoidaan 2026 keväällä.
Muuta
Vuokravakuus 2 kk:n vuokraa vastaava vakuus, muut ehdot sopimuksen mukaan.
Vuokrasopimus yksi vuosi, jonka jälkeen toistaiseksi voimassa olevana.
Vuokran lisäksi veloitetaan vesiennakko 10 €/kk.
Vuokrasopimus yksi vuosi, jonka jälkeen toistaiseksi voimassa olevana.
Vuokran lisäksi veloitetaan vesiennakko 10 €/kk.
Vapautuu
Kysy
Rakennusvuosi
2026 (uudiskohde)
Energiatehokkuusluokka
A2018
Uudiskohde
Katutasossa
Ota yhteyttä
FOCUS INTERIORS OY
Näytä puhelinnumero 0500222277
Ota yhteyttä ja varmista oma tilasi jo tänään!
Lisätiedot ja varaukset:
[Azam Khan,
Näytä puhelinnumero
0500 222 277
, info@focusinteriors.fi]
Pyydä lisätietoa