Myydään tuotantotilat - Järvenpää
Halkiantie 20, talli 2, Svengi, 04410 Järvenpää #10846754
Svengin yritysalueella tarjoalla uusia ja tasokkaita tallitiloja energiatehokkaasta rakennuksesta.
Rakennuksessa on juuri tehty käyttöönottotarkastus, joten tilat ovat heti valmiita käytettäväksi !
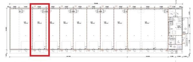
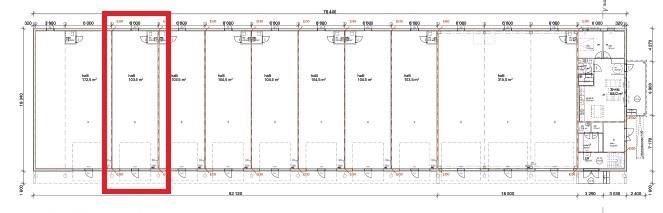
Tarjolla 103,5 m² lämmin tallitila uudesta, korkeatasoisesta rakennuksesta.
Tämä tila soveltuu erinomaisesti omaksi työtilaksi, varastoksi tai harrastetilaksi.
Energiatehokkuus huippuluokkaa:
Hoitovastike 1,5 € /m² !
Rakennus on varustettu maalämmöllä ja aurinkosähköllä, ja sen energialuokka on B.
Tiloissa on vesikiertoinen lattialämmitys, vesipiste ja wc jokaisessa hallissa.
Lisäksi jokaisessa tilassa on oma veden- ja sähkönmittaus.
Rakenteet ja varustelu:
Täysi betonirunko
Huonekorkeus 6 metriä
Sähköinen nosto-ovi 4 x 5 m
Kameravalvonta, aidattu ja asfaltoitu tontti
Sijainti:
Erinomainen logistinen sijainti - alle kilometrin päässä Lahden moottoritien rampista, ja sujuvat yhteydet sekä pääkaupunkiseudulle että Lahden suuntaan.
Laajennettavuus:
Yksittäiset hallit alkaen 103,5 m² - tiloja voidaan yhdistellä jopa 625 m² kokonaisuuksiksi.
Ota yhteyttä ja varmista paikkasi tässä modernissa yrityskohteessa!
Mika Nyman
0400347758
mika.nyman@op.fi
Talli 2, yhtiöjärjestyksen mukaan tila on Toimisto / työhuone / työtila nro 2
103,5 m²
Osakeryhmän tunnus: KRDSN2FP3SWFWX03
osakkeet: 174-277 / 104 kpl.
Yleistietoja yhtiöstä
Vuokratontti 3871 m².
Vuokranantaja Järvenpään kaupunki.
Vuokrasopimus voimassa 31.7.2072.
Vuokraoikeuteen ei kohdistu rasitteita eikä kiinnityksiä !
Teollisuus- ja pienteollisuustalot rakennus on valmistunut käyttöön otettavaksi.
Loppukatselmus keväällä 2026, kun pihat on asfaltoitu.
Kantava rakennen betoni. Julksivussa maali ja osin peltiverhous.
Uretaanieriste, yläpohjassa puhallusvilla.
Kuitubetonilattiat, MasterTop- pinnoite ja Fescon siroite pinnoite.
Harjakatto, peltikate
Rakennuksen huoneistoala 1404,5 m².
Kerrosala US250 1499 m².
Rakennuksessa 11 erillistä osakeryhmää, jotka ovat halli/talli tiloja, sekä toimisto ja asunto.
Maalämpö ja aurinkosähkö.
Kiinteistöautomaation etähallinta.
Tiloissa vesikieroinen lattialämmitys.
Halleissa poistoilma puhaltimet ja varaus koneelliselle ilmanvaihdolle.
Ison tallin nosto-ovi 5 x 5m. Muut tallit 4 x 5m.
Vapaakorkeus > 6 m.
Jokaisessa tallissa vesi- ja viemäri, sekä sähkö omalla mittauksella.
Öljyn- ja hiekan erotuskaivo.
Rakennuksessa kameravalvonta.
Tontti aidataan ja varustetaan sähköisellä portilla. Pihat asfaltoidaan
Asemakaava, Svengin yritysalue
KTY-5 e=0,50 II
Toimitilarakennusten korttelialue.
Myyjällä on kaupan kohteeseen kohdistuva sähköinen omistajamerkintä Huoneistotietojärjestelmässä. Ostajan tulee hakea omistusoikeutensa rekisteröintiä 2 kk:n kuluessa kauppakirjan allekirjoittamisesta. Ostaja vastaa rekisteröintikustannuksista.
Muut tilat:
Rakennuslupa asiakirjojen mukaan 103,5 m².
Jaettavissa
OP Koti Uusimaa Oy LKV
Toimitilapalvelut
Arkadiankatu 23
00100 HELSINKI
Mika Nyman
Toimitilavälittäjä, Kiinteistöarvioija, LKV, YKV, AKA/KHK
Näytä puhelinnumero
0400 347 758
