Vuokrataan/myydään toimistotilat, liiketilat, näyttelytilat, työtilat, muut tilat - Jyväskylä
Hjalmarinraitti / Rullakuja 3, Kankaanaukion Kulma, 40100 Jyväskylä #10846374
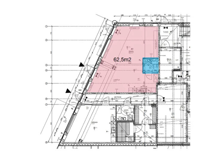
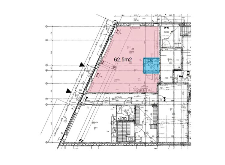
Nyt vuokrattavana ja myytävänä uusi A-Kruunun Jyväskylän Rullakuja 3-asuintalon kivijalassa sijaitseva monikäyttöinen, n. 62,5 m2 liiketila.
Liiketila valmistuu vuodenvaihteessa 2025-2026, ja vuokralaisella on mahdollisuus vaikuttaa vielä viimeistelyvaiheessa tilan sisustusratkaisuihin. Tila soveltuu esimerkiksi toimistoksi, myymälätilaksi tai palveluliiketoiminnan liiketilaksi. Tila soveltuu kahvilatilaksi, jossa on kevyttä annosten lämmittämistä. Tila ei sovellu ravintolaliiketoimintaan tai ruoanvalmistuskäyttöön. Tila sijaitsee Kankaanaukiolla, jossa mm. K-kauppa. Näkyvä ja hyvä sijainti asuin- ja toimistorakennusten keskellä.
Kysy kohteesta lisää ja löydä liiketoiminnallesi toiveidesi mukaan toteutettu liiketila näkyvältä paikalta!
Ensimmäisen kuukauden vuokra veloituksetta, kun vuokrasopimus tehdään vähintään vuoden pituiseksi!
Lisätiedot ja näytöt: Henri Kumpulainen, 040 864 3631, henri.kumpulainen@aveon.fi
Uudiskohde
Katutasossa
Näkyvällä paikalla
Aveon Real Estate Oy
Kauppakatu 18 C 26, 40100 Jyväskylä
Henri Kumpulainen
Puh.
Näytä puhelinnumero
040 864 3631
henri.kumpulainen@aveon.fi
Olemme kiinteistöliiketoiminnan asiantuntija, joka toimii yrittäjämäisesti neuvonantajana kiinteistökaupoissa, toimitilavälittämisessä sekä kiinteistökehityksessä.
Asiakkaitamme ovat kotimaiset ja ulkomaiset kiinteistönomistajat, -sijoittajat sekä tilojen käyttäjät kaikkialla Suomessa.
