Vuokrataan varastotilat - Tampere
Lempääläntie 4, Viinikka, 33100 Tampere #10846362
Erinomaista varastotilaa Tampereen keskustan läheisyydestä.
Osoite
Lempääläntie 4, Viinikka, 33100 Tampere
Tilatyyppi
Varastotilaa
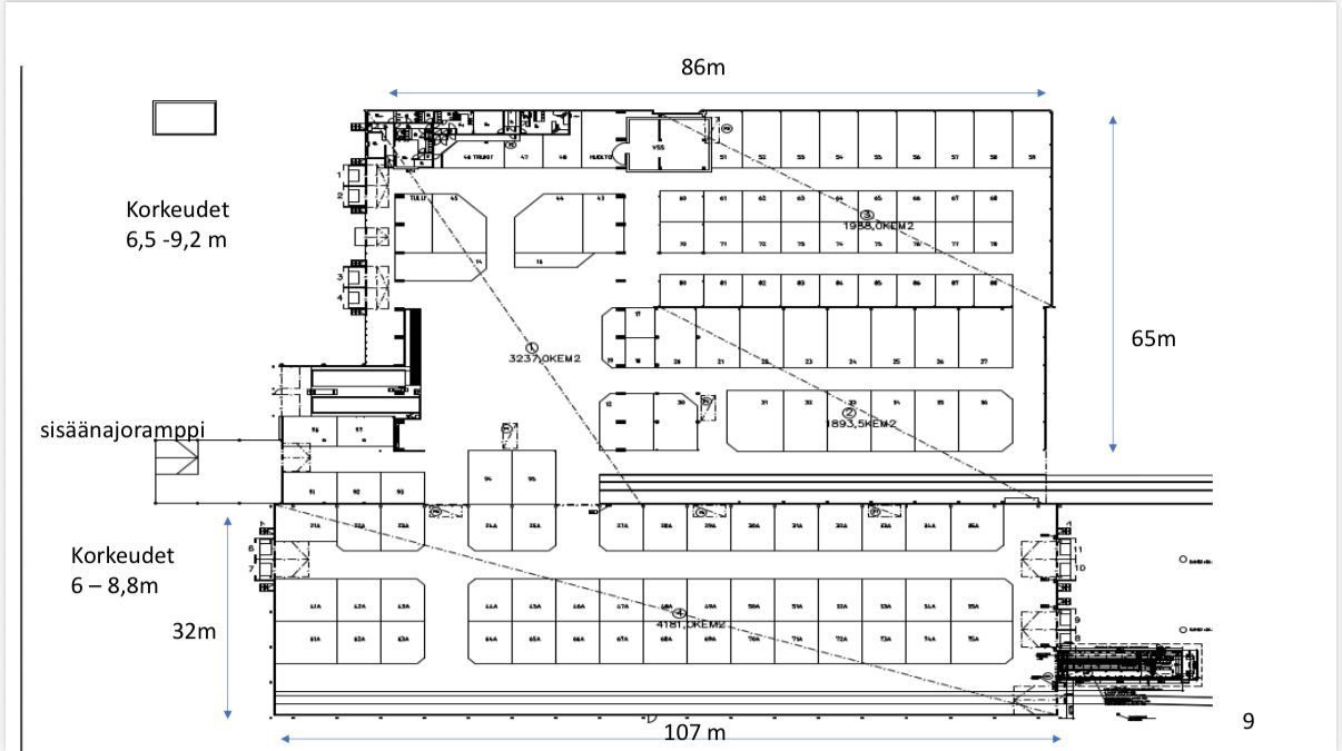
3000 - 10500 m2
Tilajako
Jaettavissa
Kiinteistö
Kylmää varasto- / terminaalitilaa, josta osa voidaan tarvittaessa eristää lämpimäksi. Hallissa on 11 lastauslaituria sekä kaksi junaraidetta, jotka tulevat sisälle terminaaliin. Tilaan on myös sisäänajoramppi. Korkeus vaihtelee 6,0–9,2 metrin välillä.
Toimisto- ja sosiaalitiloja noin 100 m².
Pysäköintipaikkoja 19 kpl, joista 5 on lämmitettäviä.
Tilat vapautuvat 1.1.2026.
Kysy lisää!
Toimisto- ja sosiaalitiloja noin 100 m².
Pysäköintipaikkoja 19 kpl, joista 5 on lämmitettäviä.
Tilat vapautuvat 1.1.2026.
Kysy lisää!
Vapautuu
Heti
Energiatehokkuusluokka
Ei lain edellyttämää energiatodistusta
Näkyvällä paikalla
Jaettavissa
Lastauslaituri
Ota yhteyttä
Comreal Oy LKV
Julius Kuismin
Näytä puhelinnumero
050 647 92
Etu-Hankkion katu 18, 33700 Tampere
Comreal on valtakunnallinen, asiantunteva ja aktiivinen kiinteistöalan kumppani, joka palvelee sekä kiinteistönomistajia että toimitilojen käyttäjiä. Toimintamme ydin on yksinkertainen: tarjota erinomaista palvelua kaikille.
Pyydä lisätietoa
