Vuokrataan toimistotilat, tuotantotilat - Kuopio
Leväsentie 29, Levänen, 70780 Kuopio #10846204
Halli- ja toimistotila
Osoite
Leväsentie 29, 70780 Kuopio
Tilatyyppi
Toimistotilaa
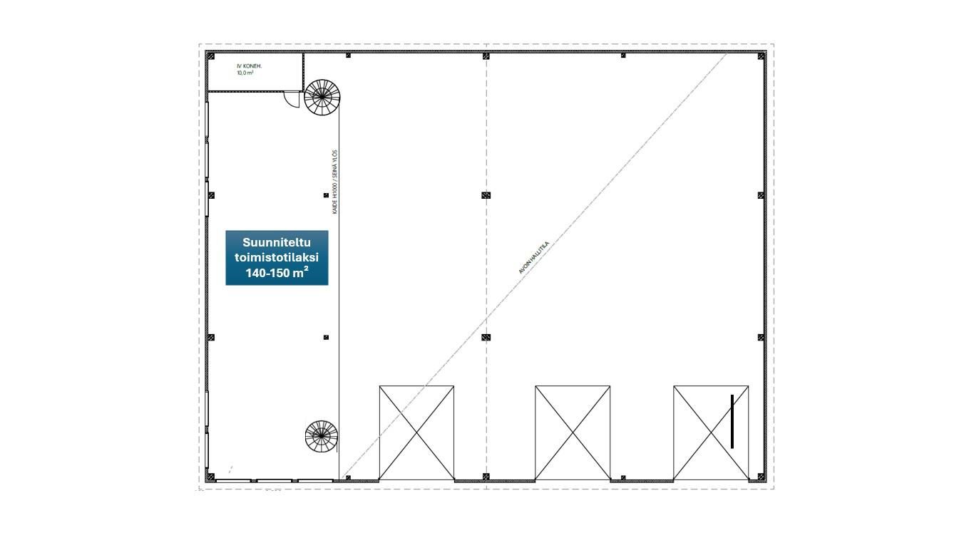
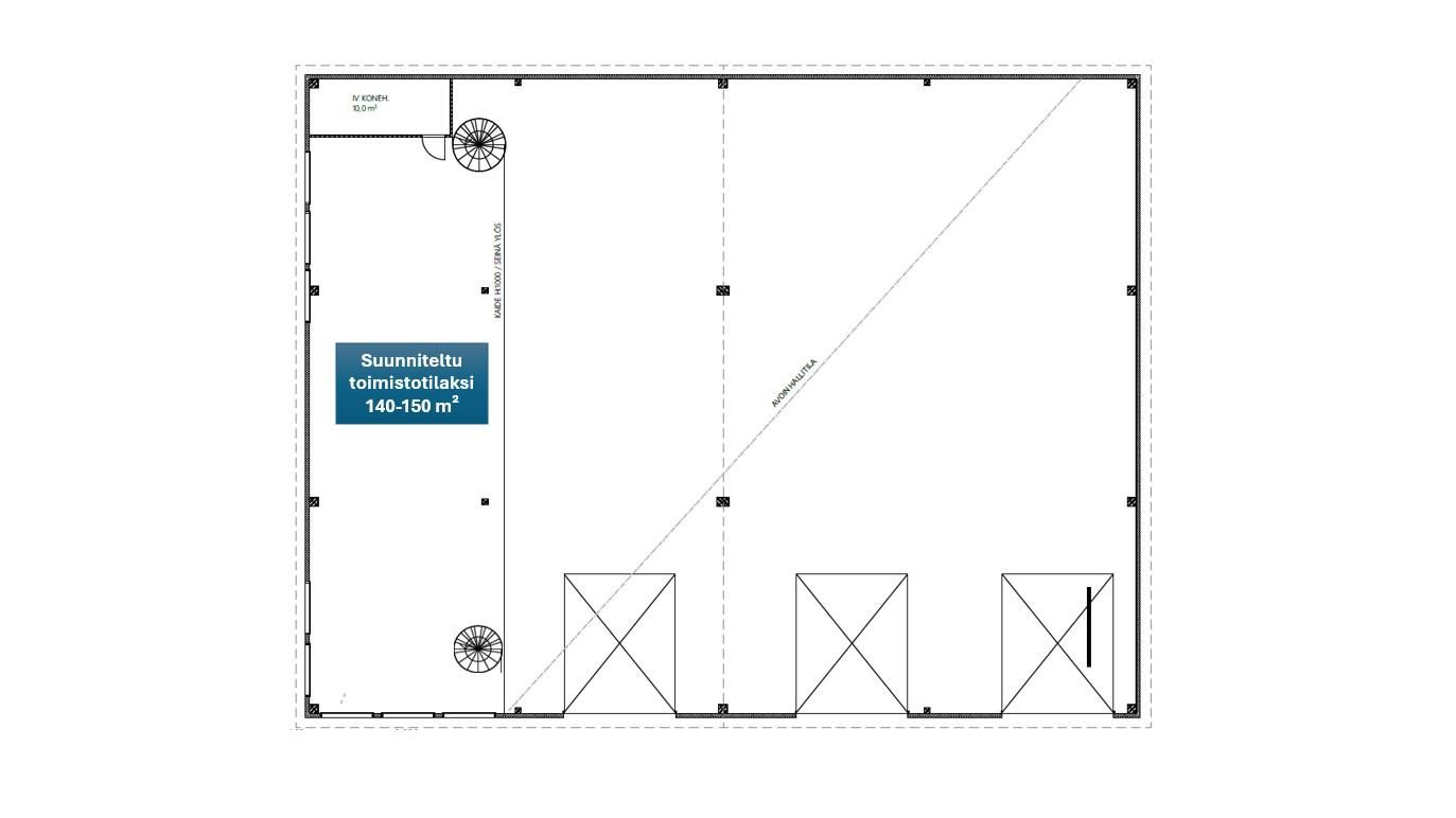
50 - 150 m2
Tuotantotilaa
300 - 560 m2
Yhteensä
300 - 860 m2
Kiinteistö
Uutta halli- ja toimistotilaa Leväsentieltä
Rakennus on runkotöiden osalta tehty ja nyt on sisätilojen fasiliteettien suunnittelemisen ja rakentamisen aika. Vuokralaisella on mahdollisuus päästä tähän vaiheeseen mukaan säätämään ja tuomaan omia tilatarpeitaan esille. Kiinteistö on muuttovalmiina Q3/2026.
Uudiskohteen suunnittelussa on perusajatuksena ollut se, että kokonaisuus on julkisivultaan tyylikäs ja sisäpuolella voidaan myös työskennellä hieman rouheamilla ja raskaammilla työkaluilla ja kalustoilla. Tilat on mahdollista jakaa kahdelle eri yritykselle, jolloin kokonaisuus saadaan hyvinkin natsaamaan.
Kiinteistö sopii erinomaisesti mm. tekniselle kaupalle, konekaupalle, huolto- ja konekorjaamolle, asennuspalveluihin, raskaammalle kalustolle eli sellaiselle toimijalle, joka osaa arvostaa seuraavia ominaisuuksia kiinteistöllä ja hallitiloissa:
aidattu, valaistu ja asfaltoitu iso piha-alue
sähköajoneuvojen latausvalmius ja perinteiset tolppapaikat
sähkökäyttöiset korkeat nosto-ovet L4,5 m x K5,5 m
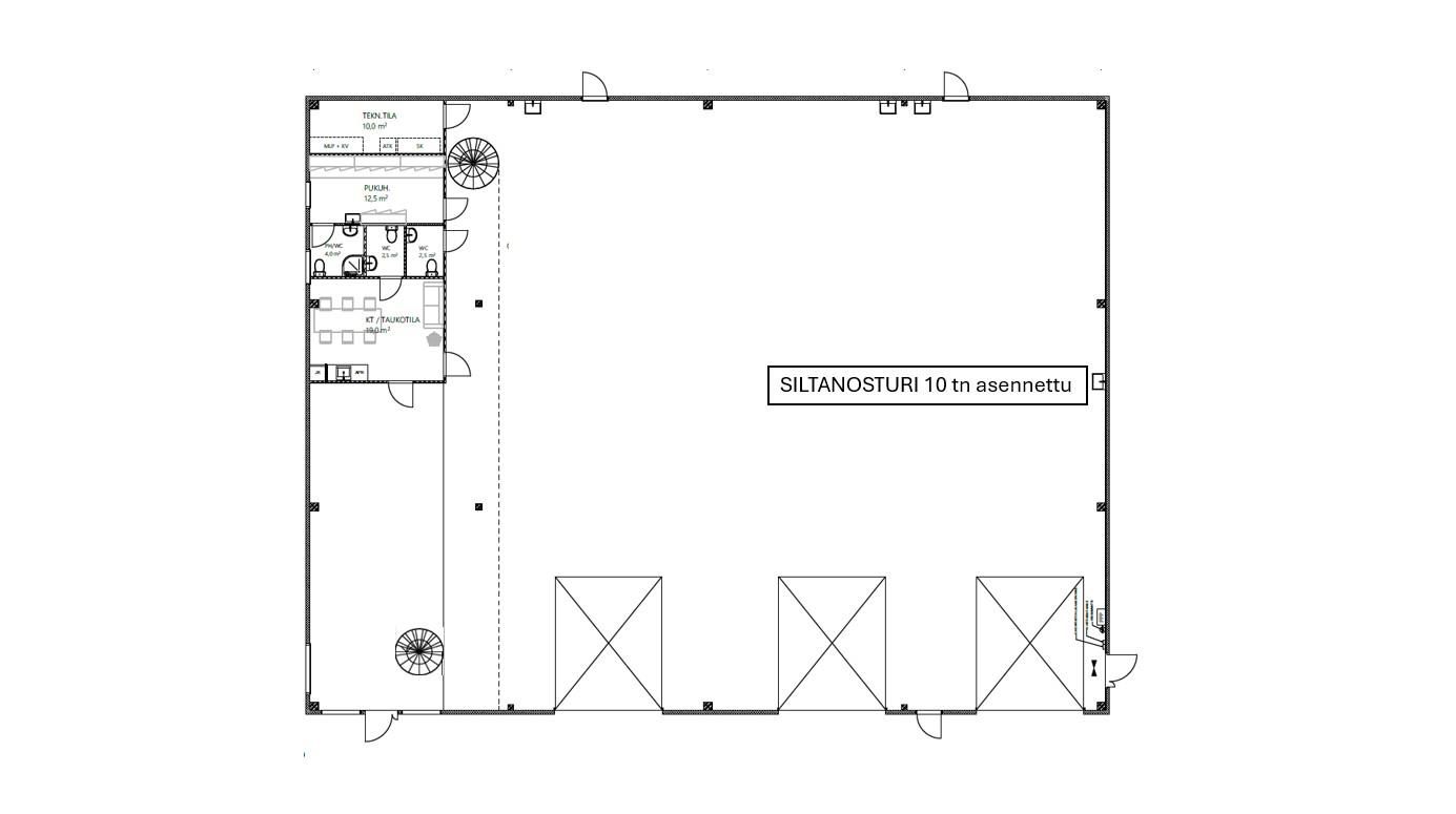
siltanosturi 10 tn
sisäkorkeus 7-8 metriä
koneellinen ilmanvaihto
maalämpölämmitys
LED-valaistus
voimavirta
paineilmajärjestelmä
lattia teräsbetonilaatta + pintakäsittely
öljyn- ja hiekanerotus kaivot
erillisiä varastotiloja
erilliset pukuhuonetilat ja sosiaalitilat
Toimistotilaa tarvittaessa 50-100 m² parvella eteläpäätyyn:
oma sisäänkäynti
ikkunat itä/etelä suunnassa
kuituyhteys kiinteistölle
siistit toimistohuoneet
LED-toimistovalaistus
akustinen alakatto
maalämpölämmitys
maalämpöviilennys
minikeittiö ja taukotilat
wc-tilat ja siivouskomerot
lukitusjärjestelmä
Kiinteistö ja sijainti
Keskeinen sijainti + hyvät kulkuyhteydet + nykyaikaiset tilat + toimiva piha-alue
Leväsentie 29 sijaitsee vitostien (E63) vieressä ja näkyy moottoritielle.
Kolmisopen rampilta alas ja oikealle liikennevaloista. Viereisellä tontilla K-Auto.
Kiinteistölle on helppo tulla kaikista suunnista.
Sovi kanssani katselmusaika ja puidaan kaikki tila- ja varustelutoiveet etupeltoon, mitä uusilta tiloiltasi odotat!
PS. Kuvat ovat havainnekuvia.
Rakennus on runkotöiden osalta tehty ja nyt on sisätilojen fasiliteettien suunnittelemisen ja rakentamisen aika. Vuokralaisella on mahdollisuus päästä tähän vaiheeseen mukaan säätämään ja tuomaan omia tilatarpeitaan esille. Kiinteistö on muuttovalmiina Q3/2026.
Uudiskohteen suunnittelussa on perusajatuksena ollut se, että kokonaisuus on julkisivultaan tyylikäs ja sisäpuolella voidaan myös työskennellä hieman rouheamilla ja raskaammilla työkaluilla ja kalustoilla. Tilat on mahdollista jakaa kahdelle eri yritykselle, jolloin kokonaisuus saadaan hyvinkin natsaamaan.
Kiinteistö sopii erinomaisesti mm. tekniselle kaupalle, konekaupalle, huolto- ja konekorjaamolle, asennuspalveluihin, raskaammalle kalustolle eli sellaiselle toimijalle, joka osaa arvostaa seuraavia ominaisuuksia kiinteistöllä ja hallitiloissa:
aidattu, valaistu ja asfaltoitu iso piha-alue
sähköajoneuvojen latausvalmius ja perinteiset tolppapaikat
sähkökäyttöiset korkeat nosto-ovet L4,5 m x K5,5 m
siltanosturi 10 tn
sisäkorkeus 7-8 metriä
koneellinen ilmanvaihto
maalämpölämmitys
LED-valaistus
voimavirta
paineilmajärjestelmä
lattia teräsbetonilaatta + pintakäsittely
öljyn- ja hiekanerotus kaivot
erillisiä varastotiloja
erilliset pukuhuonetilat ja sosiaalitilat
Toimistotilaa tarvittaessa 50-100 m² parvella eteläpäätyyn:
oma sisäänkäynti
ikkunat itä/etelä suunnassa
kuituyhteys kiinteistölle
siistit toimistohuoneet
LED-toimistovalaistus
akustinen alakatto
maalämpölämmitys
maalämpöviilennys
minikeittiö ja taukotilat
wc-tilat ja siivouskomerot
lukitusjärjestelmä
Kiinteistö ja sijainti
Keskeinen sijainti + hyvät kulkuyhteydet + nykyaikaiset tilat + toimiva piha-alue
Leväsentie 29 sijaitsee vitostien (E63) vieressä ja näkyy moottoritielle.
Kolmisopen rampilta alas ja oikealle liikennevaloista. Viereisellä tontilla K-Auto.
Kiinteistölle on helppo tulla kaikista suunnista.
Sovi kanssani katselmusaika ja puidaan kaikki tila- ja varustelutoiveet etupeltoon, mitä uusilta tiloiltasi odotat!
PS. Kuvat ovat havainnekuvia.
Vapautuu
Kysy
Siltanosturi
Ota yhteyttä
Logistila Oy
Ankkuritie 1, 70460 KUOPIO
Timo Puustinen
Näytä puhelinnumero
0400 33 00 30
Pyydä lisätietoa
