Vuokrataan - Kuopio
KOY Pitkälahden Talliosake tila 39 – parvi, keittiö, wc/pesuhuone suihkukaapilla, ilmalämpöpumppu, lisäpistorasiat, Kylmämäentie 9, 70800 Kuopio #10846199
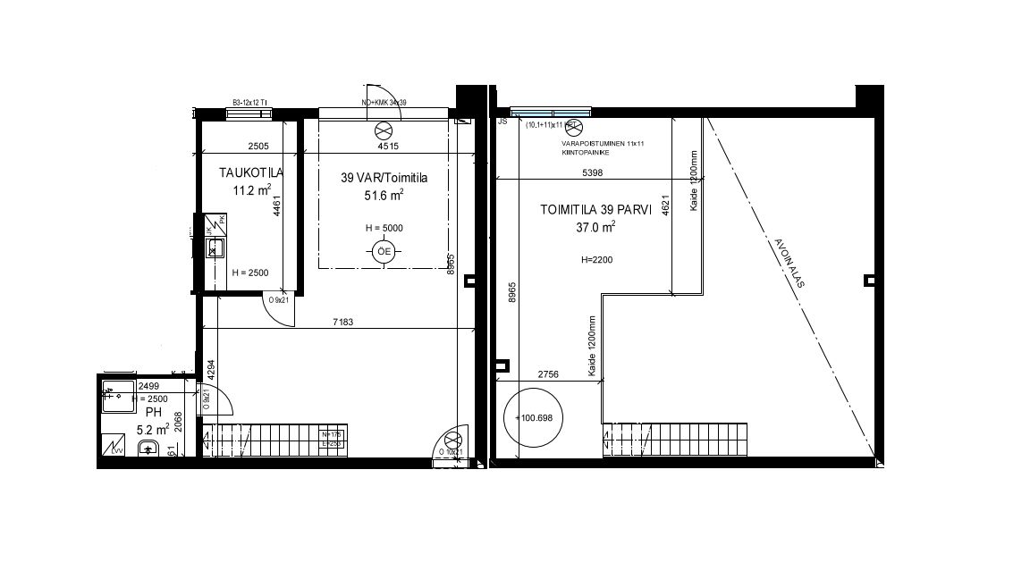
Suositulta Pitkälahden Talliosakkeelta Kuopiossa monipuoliset puitteet tarjoava hallin kulmassa sijaitseva yritystila 39.
Osoite
Kylmämäentie 9, 70800 Kuopio
Vuokra
1150 € / kk
Kiinteistö
KOY Pitkälahden Talliosake
Sijainti
Kohde on huippusijainnilla moottoritien varressa, Kuopion kasvualueiden vieressä. Moottoritien rampille 1 km (2 min). Pitkälahden ABC:lle 600 m (2 min). Matkuksen kauppakeskukseen 2 km (3 min). Keskustaan 10 km (10 min).
Muuta
Vuokrataan vain yritysasiakkaille – vuokraan lisätään ALV 25,5%.
Moottoroitu nosto-ovi erillisellä käyntiovella. Autolla sisään ajettava tila. Tilamitat: 8,90 (Pituus) 7,15 (Leveys) 5,00 (Korkeus). Ovimitat: 3,40 (Leveys) 3,90 (Korkeus).
Suositulta Pitkälahden Talliosakkeelta Kuopiossa monipuoliset puitteet tarjoava hallin kulmassa sijaitseva yritystila. Tilassa ikkunallinen tilava parvi, keittiö / toimistohuone ikkunalla, wc / pesuhuone suihkukaapilla, ilmalämpöpumppu ja lisäpistorasioita. Ilmanvaihto lämmön talteenotolla. Tilalle kuuluu kolme (3) pysäköintiruutua.
Talliosakkeet ovat laadukkaita sekä hyvin varusteltuja, soveltuen harraste-, varasto- ja yritystilakäyttöön. Tässä tilassa tilaa löytyy tarvittaessa niin työpisteelle kuin varastolle ja alakerran moottoroitu nosto-ovi helpottaa tavaroiden siirtämistä. Tila palvelee oivallisesti esim. päivittäisenä varastona tai pakkaustilana. Tilassa on vesitiivis epoksipinnoitettu lattia ja öljynerotuskaivo, joiden ansiosta voit esimerkiksi pestä tilassasi työvälineitä.
Tila on sähkölämmitteinen. Vuokralainen tekee tilaan oman sähkösopimuksen. Vesi- ja sähkömaksu kulutuksen mukaan. Vakuus on yhden alvillisen kuukausivuokran määrä. Haetaan pitkäaikaista vuokralaista. Luottotiedot tarkistetaan. Autopaikka á 15€ / kpl.
Käyttötarkoitusesimerkkejä: autotalli, toimitila, moottoripyörätalli, mönkijätalli, varastotila, harrastetila, kimppatalli, toimitila, yrityksen työtarvikevarasto / kalustovarasto.
Tila ei sovellu autokorjaamoksi eikä autopesulaksi.
Talliosake tuottaa joustavasti muunneltavia hallitiloja ympäri Suomen, joita yritykset ja yksityishenkilöt käyttävät tukikohtinaan erilaisille toiminnoille: yritys- ja liiketoimintaan, varastointiin sekä harrastuksiin.
Moottoroitu nosto-ovi erillisellä käyntiovella. Autolla sisään ajettava tila. Tilamitat: 8,90 (Pituus) 7,15 (Leveys) 5,00 (Korkeus). Ovimitat: 3,40 (Leveys) 3,90 (Korkeus).
Suositulta Pitkälahden Talliosakkeelta Kuopiossa monipuoliset puitteet tarjoava hallin kulmassa sijaitseva yritystila. Tilassa ikkunallinen tilava parvi, keittiö / toimistohuone ikkunalla, wc / pesuhuone suihkukaapilla, ilmalämpöpumppu ja lisäpistorasioita. Ilmanvaihto lämmön talteenotolla. Tilalle kuuluu kolme (3) pysäköintiruutua.
Talliosakkeet ovat laadukkaita sekä hyvin varusteltuja, soveltuen harraste-, varasto- ja yritystilakäyttöön. Tässä tilassa tilaa löytyy tarvittaessa niin työpisteelle kuin varastolle ja alakerran moottoroitu nosto-ovi helpottaa tavaroiden siirtämistä. Tila palvelee oivallisesti esim. päivittäisenä varastona tai pakkaustilana. Tilassa on vesitiivis epoksipinnoitettu lattia ja öljynerotuskaivo, joiden ansiosta voit esimerkiksi pestä tilassasi työvälineitä.
Tila on sähkölämmitteinen. Vuokralainen tekee tilaan oman sähkösopimuksen. Vesi- ja sähkömaksu kulutuksen mukaan. Vakuus on yhden alvillisen kuukausivuokran määrä. Haetaan pitkäaikaista vuokralaista. Luottotiedot tarkistetaan. Autopaikka á 15€ / kpl.
Käyttötarkoitusesimerkkejä: autotalli, toimitila, moottoripyörätalli, mönkijätalli, varastotila, harrastetila, kimppatalli, toimitila, yrityksen työtarvikevarasto / kalustovarasto.
Tila ei sovellu autokorjaamoksi eikä autopesulaksi.
Talliosake tuottaa joustavasti muunneltavia hallitiloja ympäri Suomen, joita yritykset ja yksityishenkilöt käyttävät tukikohtinaan erilaisille toiminnoille: yritys- ja liiketoimintaan, varastointiin sekä harrastuksiin.
Vapautuu
Heti vapaa
Katutasossa
Ota yhteyttä
Talliosake Oy
Jaakko Laitinen
Aluemyyntipäällikkö Itä- ja Keski – Suomi, Päijät-Häme
Näytä puhelinnumero
040 903 0706
Pyydä lisätietoa
