Vuokrataan toimistotilat - Helsinki
Rikhardinkatu 2, Keskusta, 00130 Helsinki #10846057
Tyylikäs 460 m² toimistotila Helsingin keskustassa Kaartinkaupungissa
Osoite
Rikhardinkatu 2, 00130 Helsinki
Tilatyyppi
Toimistotilaa
460 m2
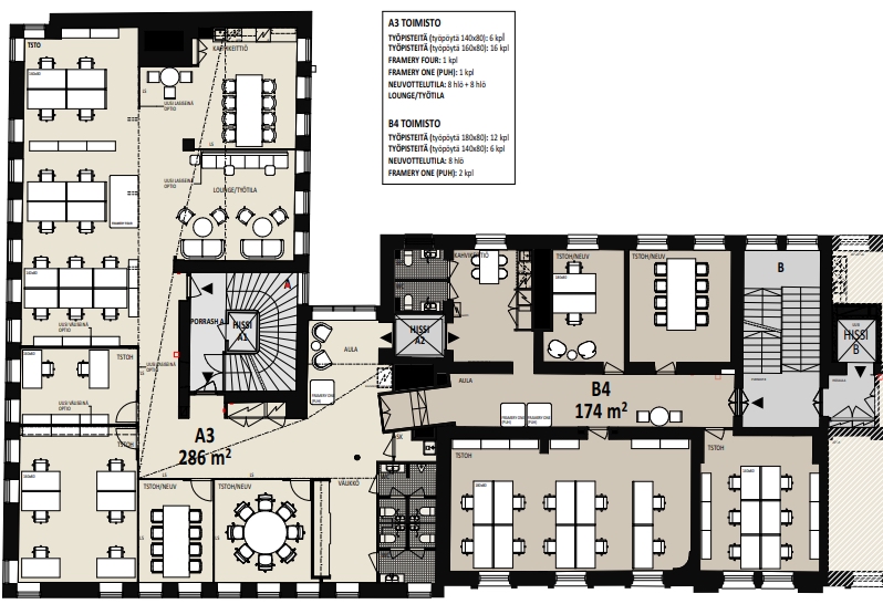
Pohjapiirros
Kiinteistö
Kahdesta toisiinsa esteettömästi yhdistetystä toimistohuoneistosta muodostuva näyttävä toimitila.
Valoisasta kulmatoimistosta on näkymät Kasarmikadulle ja Rikhardinkadulle.
Kasarmikadun ja Rikhardinkadun kulmaan sijoittuva osuus huoneistosta on täysin modernisoitua avotoimistoa. Rikhardinkadun puoleinen osa sisältää edustavia tiimityötiloja
Rikhardinkatu 2:n ylimmässä kerroksessa sijaitseva 138 m² toimistotila tarjoaa edustavat ja toimivat puitteet vaativankin yrityksen tarpeisiin. Tilassa on kaksi itsenäistä toimistohuonetta, avara neuvotteluhuone, hyvin varusteltu keittiö sekä kaksi WC:tä. Valoisat ja korkeakattoiset huoneet huokuvat arvokkuutta ja rauhallisuutta, ja ne soveltuvat erinomaisesti esimerkiksi luovaan, asiantuntija- tai hallintotyöhön.
Vuonna 1891 valmistunut rakennus on osa Helsingin arvostetuinta jugendmiljöötä. Vuosina 2018–2023 kohteessa toteutettiin laaja peruskorjaus, jossa historiallinen arkkitehtuuri ja modernit toimitilaratkaisut yhdistettiin tyylikkäästi. Rakennuksen tekniikka, ilmanvaihto ja pintamateriaalit on uudistettu nykypäivän vaatimuksia vastaaviksi, säilyttäen samalla kohteen alkuperäisen arvokkuuden ja tunnelman.
Toimistotilan sijainti on erinomainen, aivan Esplanadin tuntumassa, vain noin 10 minuutin kävelymatkan päässä Helsingin päärautatieasemalta. Alue tarjoaa kattavan valikoiman ravintoloita, kahviloita ja muita palveluita, jotka tekevät työpäivästä miellyttävän ja sujuvan. Julkisen liikenteen yhteydet ovat erinomaiset, ja myös pysäköintimahdollisuudet löytyvät lähialueelta.
Valoisasta kulmatoimistosta on näkymät Kasarmikadulle ja Rikhardinkadulle.
Kasarmikadun ja Rikhardinkadun kulmaan sijoittuva osuus huoneistosta on täysin modernisoitua avotoimistoa. Rikhardinkadun puoleinen osa sisältää edustavia tiimityötiloja
Rikhardinkatu 2:n ylimmässä kerroksessa sijaitseva 138 m² toimistotila tarjoaa edustavat ja toimivat puitteet vaativankin yrityksen tarpeisiin. Tilassa on kaksi itsenäistä toimistohuonetta, avara neuvotteluhuone, hyvin varusteltu keittiö sekä kaksi WC:tä. Valoisat ja korkeakattoiset huoneet huokuvat arvokkuutta ja rauhallisuutta, ja ne soveltuvat erinomaisesti esimerkiksi luovaan, asiantuntija- tai hallintotyöhön.
Vuonna 1891 valmistunut rakennus on osa Helsingin arvostetuinta jugendmiljöötä. Vuosina 2018–2023 kohteessa toteutettiin laaja peruskorjaus, jossa historiallinen arkkitehtuuri ja modernit toimitilaratkaisut yhdistettiin tyylikkäästi. Rakennuksen tekniikka, ilmanvaihto ja pintamateriaalit on uudistettu nykypäivän vaatimuksia vastaaviksi, säilyttäen samalla kohteen alkuperäisen arvokkuuden ja tunnelman.
Toimistotilan sijainti on erinomainen, aivan Esplanadin tuntumassa, vain noin 10 minuutin kävelymatkan päässä Helsingin päärautatieasemalta. Alue tarjoaa kattavan valikoiman ravintoloita, kahviloita ja muita palveluita, jotka tekevät työpäivästä miellyttävän ja sujuvan. Julkisen liikenteen yhteydet ovat erinomaiset, ja myös pysäköintimahdollisuudet löytyvät lähialueelta.
Vapautuu
Heti
Rakennusvuosi
1891
Saneerausvuosi
2023
Kerros
2 / 5
Energiatehokkuusluokka
Ei lain edellyttämää energiatodistusta
Näkyvällä paikalla
Hissi
Ota yhteyttä
ScanReal Oy LKV
Opus Business Park
Hitsaajankatu 24
00810 Helsinki
info@scanreal.fi
Puh:
Näytä puhelinnumero
020 730 8830
Sopivat toimitilat yhdellä otolla!
Kartoitamme toimitilatarpeesi ja etsimme yrityksellesi parhaiten sopivat vapaat toimitilat. Koska vuokranantajat maksavat palvelumme, on tämä yrityksellesi veloituksetonta.
Palvelumme on tilanhakijalle ilmainen
Pyydä lisätietoa
