Vuokrataan toimistotilat - Helsinki
Itämerenkatu 3, Ruoholahti, 00180 Helsinki #10845818
Modernia ja muuntojoustavaa toimistotilaa Ruoholahdessa.
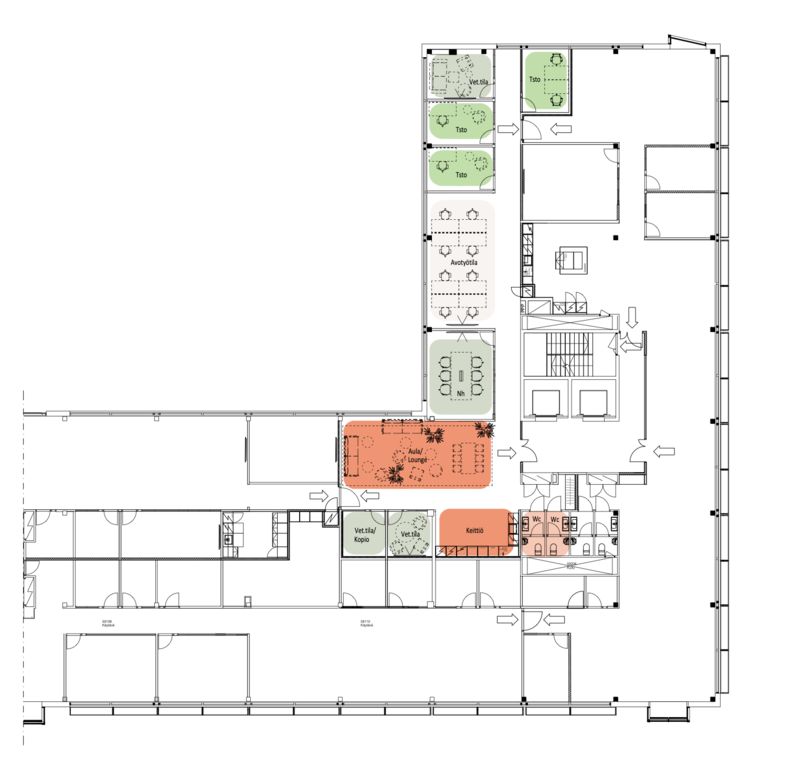
Tämä Aina Valmis-konseptiin kuuluva 233 m² toimisto sijaitsee kiinteistön 5. kerroksessa B-rapussa. Tilan ikkunat ovat vehreän sisäpihan suuntaan. Tila sisältää: keittiö-/sohvaloungen, neuvottelutilan, kaksi vetäytymistilaa, kolme toimistotilaa, varastotilan, kaksi wc:tä ja avotyöskentelytilan. Aina Valmis-toimistotilojen hiilijalanjälki on tehty mahdollisimman pieneksi ja remontit on toteutettu vastuullisesti laadukkaita ja kestäviä materiaaleja käyttäen.
Itämerenkatu 3 on toimisto- ja liiketilakiinteistö, joka on valmistunut vuonna 1998. Kiinteistö sijaitsee hyvien kulkuyhteyksien varrella, lähellä Ruoholahden metroasemaa. Toimitilat ovat suunniteltavissa ja muokattavissa täysin vuokralaisen tarpeiden mukaan. Kiinteistö saneerattiin vuoden 2019 aikana. Kiinteistössä on lounasravintola, kellarissa on kuntosali, pyöräparkki ja suihkutilat. Vuokrattavaa toimistotilaa löytyy yhteensä 6510m2. Tiloja on mahdollista vuokrata kerroksittain tai yhdistämällä kerroksia.
Kysy lisää numerosta 044 723 4700 tai info@bref.fi. Palvelumme on tilanhakijoille ilmainen.
Bureau Real Estate Finland Oy
Lars Sonckin kaari 16, 02600 Espoo
Näytä puhelinnumero
0447234700
Bureau Real Estate Finland Oy
https://www.bref.fi