Vuokrataan toimistotilat - Jyväskylä
Ahlman, Ahlmaninkatu 2 E, 40100 Jyväskylä #10845702
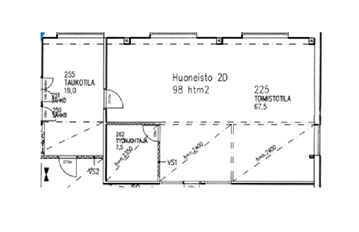
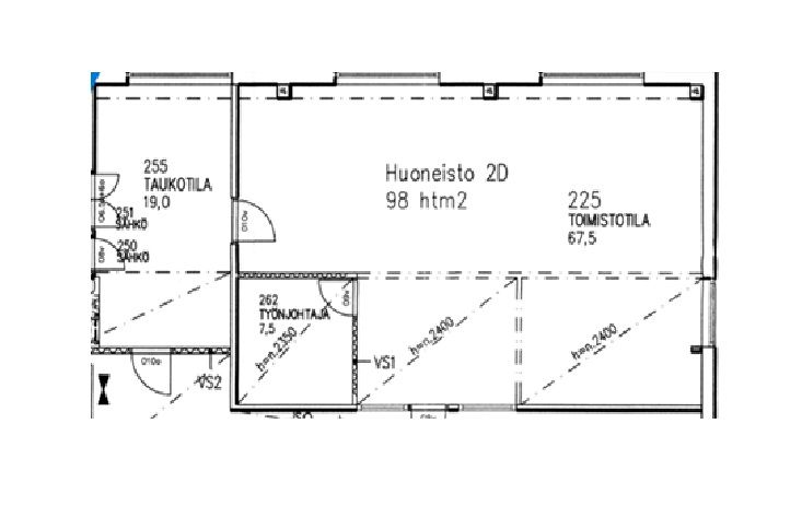
Vuokrataan valoisa, avara ja siisti 98 m2 toimistotila Jyväskylän Mattilanniemestä. Tilassa on avotoimistotilaa, erillinen neuvotteluhuone ja yksi toimistohuone, joka soveltuu esimerkiksi tietoturvahuoneeksi. Lisäksi tilassa on erillinen keittiö ja taukotila. Toisen kerroksen tila, kiinteistössä on hissi.
Kiinteistö on hyvällä sijainnilla lähellä Jyväsjärveä, jonne näkymä isoista ikkunoista. Nopea kulkuyhteys keskustaan ja ympäri kaupunkia. Yliopiston tiloja ympärillä. Alueella neljä lounaspaikkaa. Mattilanniemeen pääsee hyvin julkisilla, omalla autolla ja pyörällä.
Kiinteistössä on erikseen varattavissa oleva noin 18 henkilön neuvotteluhuone. Kiinteistöstä löytyy myös pukuhuone ja suihkutilat esim. pyörällä kulkeville. Mahdollisuus vuokrata lämpötolpallisia autopaikkoja. Kiinteistöllä on myös pysäköintipaikkoja asiakkaille.
Vuokraan sisältyy lämmitys, vesi ja sähkö sekä yleisten tilojen siivous. Kiinteistöön tulee 500/500 Mt vpn-suojattu verkkoyhteys.
Lisätiedot ja näytöt: Henri Kumpulainen, 040 864 3631, henri.kumpulainen@aveon.fi
Näkyvällä paikalla
Hissi
Aveon Real Estate Oy
Kauppakatu 18 C 26, 40100 Jyväskylä
Henri Kumpulainen
Puh.
Näytä puhelinnumero
040 864 3631
henri.kumpulainen@aveon.fi
Olemme kiinteistöliiketoiminnan asiantuntija, joka toimii yrittäjämäisesti neuvonantajana kiinteistökaupoissa, toimitilavälittämisessä sekä kiinteistökehityksessä.
Asiakkaitamme ovat kotimaiset ja ulkomaiset kiinteistönomistajat, -sijoittajat sekä tilojen käyttäjät kaikkialla Suomessa.
