Vuokrataan liiketilat - Helsinki
Eerikinkatu 4, Keskusta, 00100 Helsinki #10845272
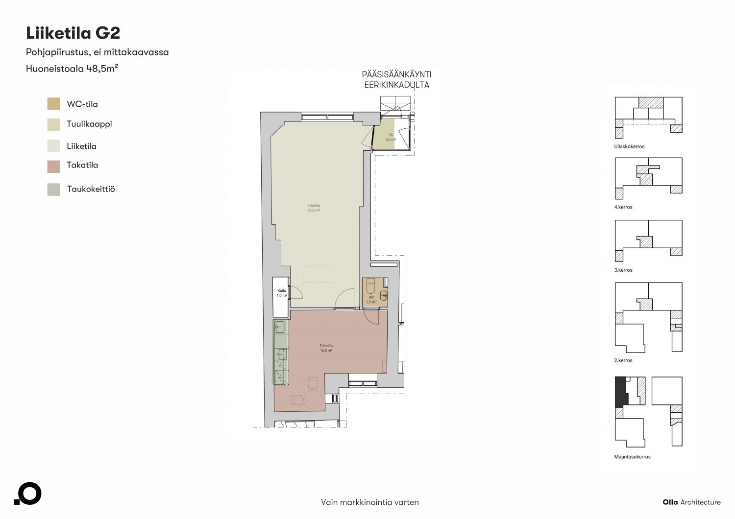
Tyylikäs 48,5 m² kivijalkaliiketila Kampissa – historiallisessa Höijerin arvokiinteistössä
Osoite
Eerikinkatu 4, 00100 Helsinki
Tilatyyppi
Liiketilaa
48,5 m2
Pohjapiirros
Tila soveltuu
Parturi- ja kampaamo
Vuokra
1940 € / kk + alv
Kiinteistö
Arkkitehti Th. Höijerin suunnittelema, vuonna 1896 valmistunut ja vuonna 2025 täysin peruskorjattu arvokiinteistö tarjoaa nyt ainutlaatuisen mahdollisuuden yritykselle, joka etsii edustavaa ja näkyvää liiketilaa Kampin sydämestä.
Liiketila (46,5 m²) sijaitsee katutasossa ja sopii erinomaisesti esimerkiksi showroomiksi, design- tai lifestyle-liikkeeksi, studioksi, toimistoksi tai palvelutilaksi.
Tila ei sovellu kahvila-, ravintola- tai baarikäyttöön, mutta sen selkeä pohjaratkaisu antaa erinomaiset puitteet muulle liiketoiminnalle.
Kaikki on täysin uusittu ja modernisoitu – vanhan arkkitehtuurin henki on säilytetty, mutta tekniikka on nykyaikaista. Tilassa on oma koneellinen tulo- ja poistoilmanvaihto sekä jäähdytys, jotka takaavat miellyttävän työ- ja asiointiympäristön ympäri vuoden.
Tämä tila sopii yritykselle, joka arvostaa historiaa, laatua ja Kampin keskeistä sijaintia, ja haluaa erottua arvokkaassa ympäristössä.
Liiketila (46,5 m²) sijaitsee katutasossa ja sopii erinomaisesti esimerkiksi showroomiksi, design- tai lifestyle-liikkeeksi, studioksi, toimistoksi tai palvelutilaksi.
Tila ei sovellu kahvila-, ravintola- tai baarikäyttöön, mutta sen selkeä pohjaratkaisu antaa erinomaiset puitteet muulle liiketoiminnalle.
Kaikki on täysin uusittu ja modernisoitu – vanhan arkkitehtuurin henki on säilytetty, mutta tekniikka on nykyaikaista. Tilassa on oma koneellinen tulo- ja poistoilmanvaihto sekä jäähdytys, jotka takaavat miellyttävän työ- ja asiointiympäristön ympäri vuoden.
Tämä tila sopii yritykselle, joka arvostaa historiaa, laatua ja Kampin keskeistä sijaintia, ja haluaa erottua arvokkaassa ympäristössä.
Vapautuu
Heti
Rakennusvuosi
1896
Saneerausvuosi
2025
Kerros
1 / 5
Energiatehokkuusluokka
Ei lain edellyttämää energiatodistusta
Katutasossa
Näkyvällä paikalla
Hissi
Ota yhteyttä
ScanReal Oy LKV
Opus Business Park
Hitsaajankatu 24
00810 Helsinki
info@scanreal.fi
Puh:
Näytä puhelinnumero
020 730 8830
Sopivat toimitilat yhdellä otolla!
Kartoitamme toimitilatarpeesi ja etsimme yrityksellesi parhaiten sopivat vapaat toimitilat. Koska vuokranantajat maksavat palvelumme, on tämä yrityksellesi veloituksetonta.
Palvelumme on tilanhakijalle ilmainen
Pyydä lisätietoa
