Vuokrataan varastotilat - Oulu
Oritkarintie 7, Äimärautio, 90400 Oulu #10845224
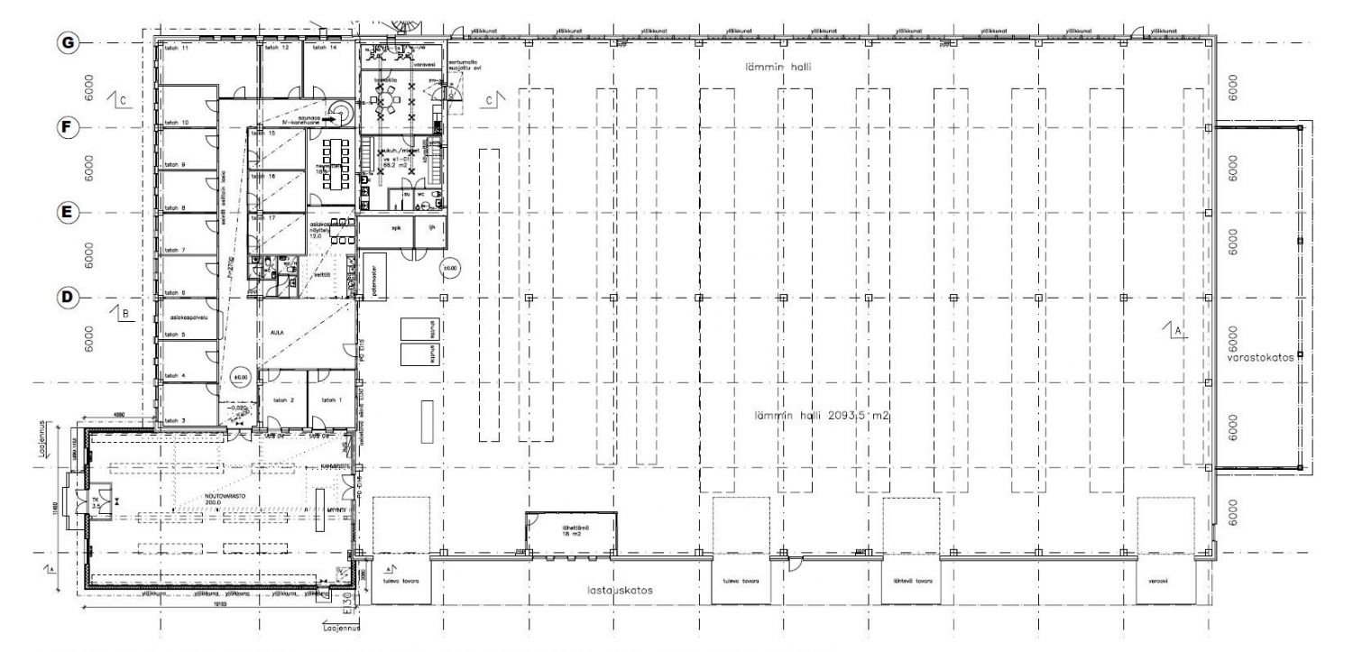
Vuokrataan laadukas toimitilakokonaisuus Oritkarintien päästä. Siistikuntoiset tilat koostuvat myymälästä, toimistosta sekä hyvän kokoisesta varastohallista.
Hallitiloihin on neljä suurta nosto-ovea. Hallin pinta-ala on noin: 2100m2. Tiloista löytyy myös saunaosasto sekä väestönsuoja. Kohde on valmistunut 2/2003 ja rakennusta on laajennettu 8/2019, jolloin tiloihin on lisätty myymälätila.
Tontin pinta-ala on 2 ha. Piha-alue on asfaltoitu ja rakennus on ympäriajettavissa. Tontilla on rakennusoikeutta jäljellä. Rakennuksen päädyssä on 2013 vuonna rakennettu varastokatos.
Vuokra 23 300€ / kk + alv 25,5%. Vuokralainen vastaa tilojen kunnossapidosta, sähköstä, lämmityksestä, vedestä.
Kohteen rakennustiedot ja historia hyvin tiedossa. Tästä loistavat tilat uudelle käyttäjälle!
Esittelyt ja lisätietoa Julia Hoikkala 050 411 8747 tai julia.hoikkala@op.fi.
Kohde valmistunut 2/2003, varastokatos rakennettu 9/2013 ja rakennusta laajennettu 8/2019.
Hallin vapaakorkeus: korkeimmillaan 6,77m, hallin takaosassa: 6m.
Hallin sisäkorkeus ulkoseinän kohdalla on 7 m ja keskellä n. 7,85m. Katon palkin korkeus on 1100mm.
Muut tilat:
Huoneistoala: 2716m2, kerrossala: 2916 k-m2, tilavuus: 21272 m3.
Jaettavissa
OP Koti Pohjoinen Oy LKV
Toimitila- ja vuokravälitys
Lekatie 6
90140 OULU
Julia Hoikkala
Myyntineuvottelija, Toimitilat, LVV, Trad.
Näytä puhelinnumero
050 411 8747
