Vuokrataan toimistotilat - Helsinki
Malminkatu 16, Kamppi, 00100 Helsinki #10845127
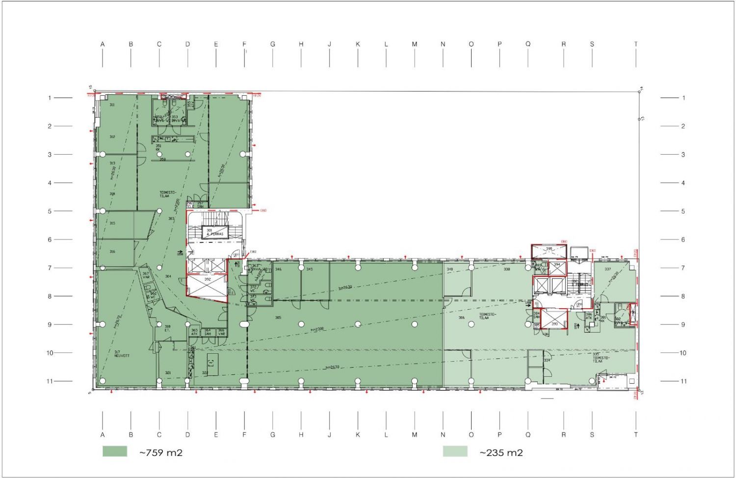
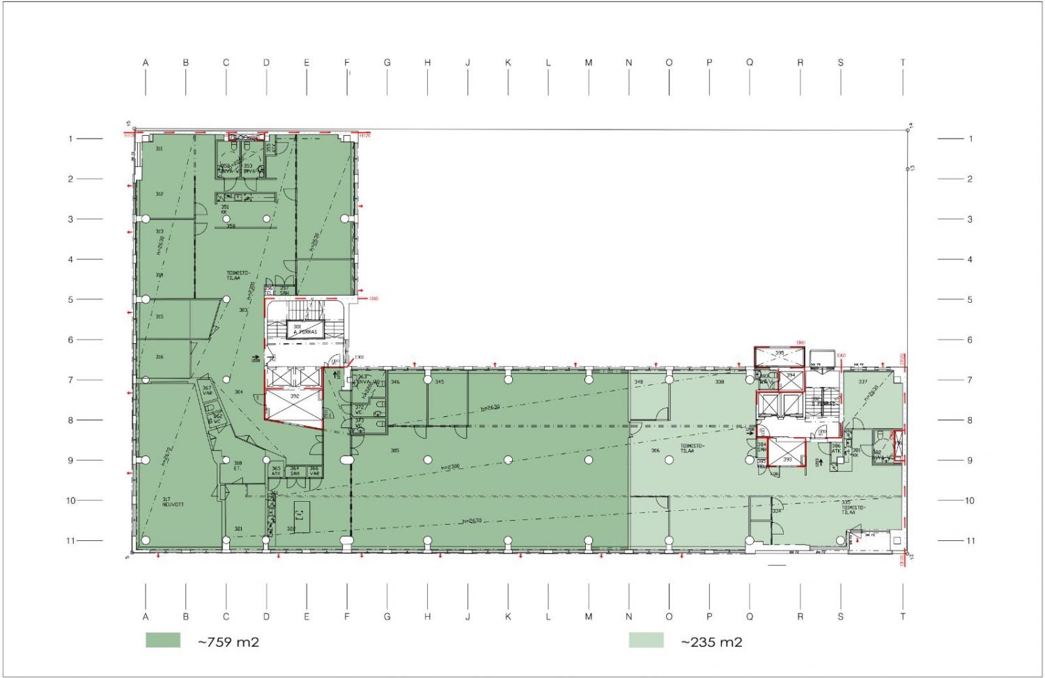
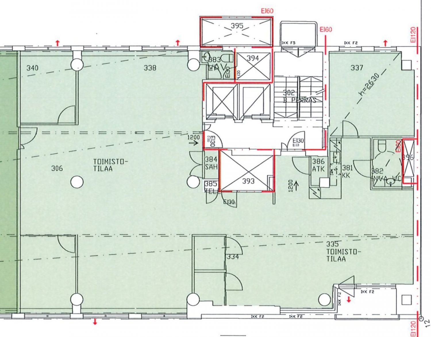
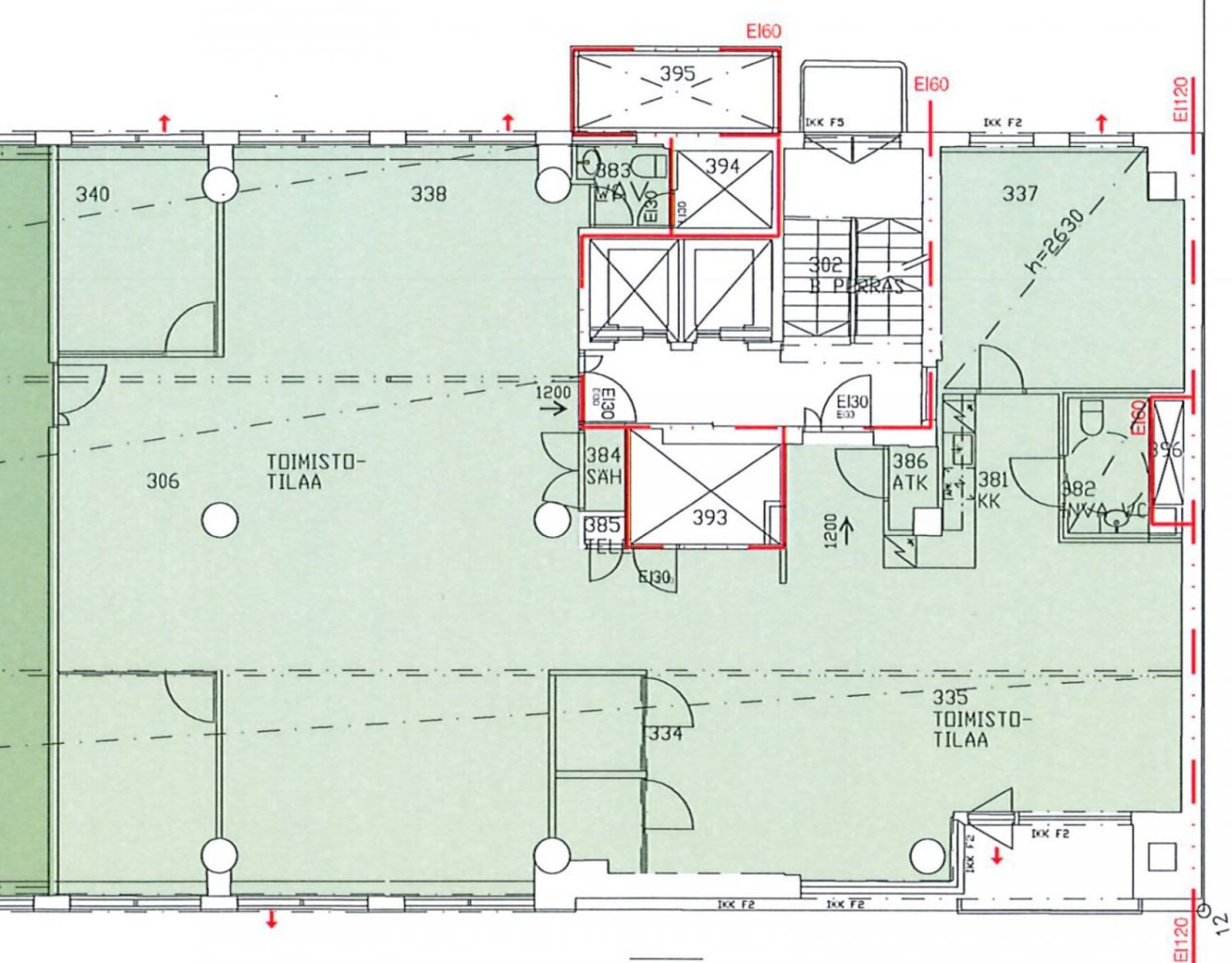
Vuokrataan Helsingin Kampista kolmannen kerroksen 235 m² toimistotila. Tila remontoidaan vastaamaan käyttäjän tarpeita ja muutostöihin varataan noin 9 kuukautta vuokrasopimuksen allekirjoituksesta.
Voimatalo sijaitsee Kampin palveluiden välittömässä läheisyydessä hyvien kulkuyhteyksien äärellä. Korttelissakin useita ravintoloita ja kahviloita. K-Market samassa talossa.
Kysy rohkeasti lisätietoja ja sovitaan käynti kohteella jo tänään!
Hausala Oy
Erkkilänkatu 11, 33100 Tampere
Näytä puhelinnumero
050 472 7077
Mika Savikko
Näytä puhelinnumero
050 472 7077
Mikko Ranta
Näytä puhelinnumero
050 360 6500
