Vuokrataan toimistotilat - Helsinki
Itälahdenkatu 23, Lauttasaari, 00210 Helsinki #10844990
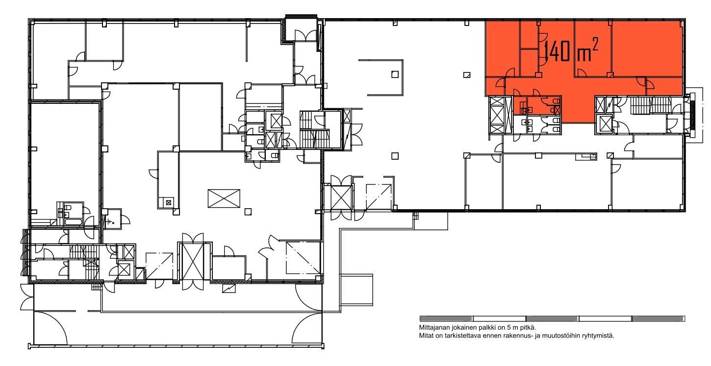
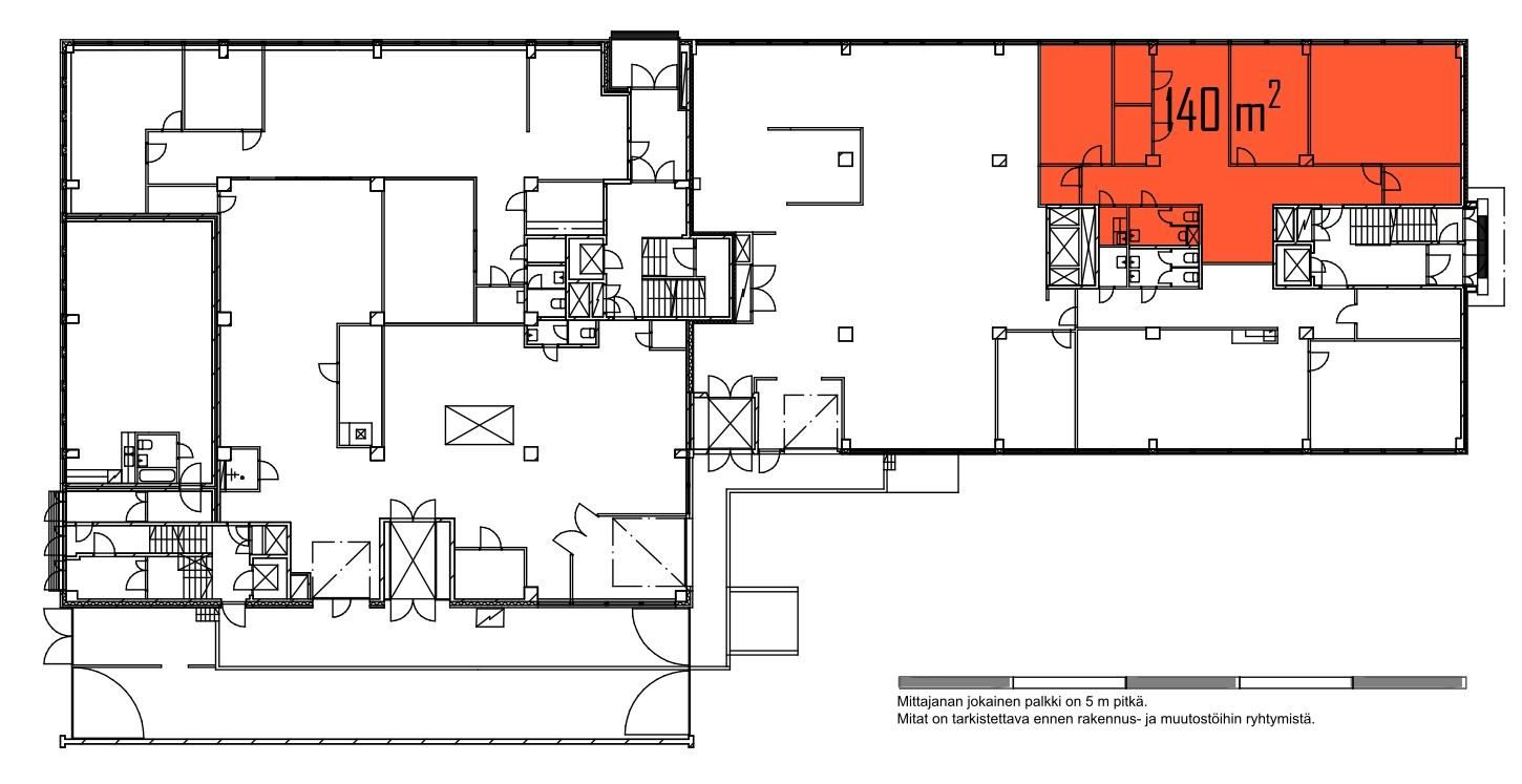
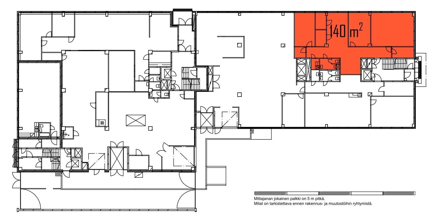
Vuokrataan Helsingin Lauttasaaresta ensimmäisen kerroksen 140 m² toimistotila.
Tila koostuu useasta työ-/neuvotteluhuoneesta, avoimesta tilasta ja keittokomerosta. Sisäänkäynti C-rappuun on Melkonkadun puolelta. Tila sijaitsee katutasossa lähellä pääsisäänkäyntiä.
Lähistöllä on useita lounasravintoloita. Kohteessa on omia parkkipaikkoja.
Kysy rohkeasti lisätietoja ja sovitaan käynti kohteella jo tänään!
Osoite
Itälahdenkatu 23, 00210 Helsinki
Tilatyyppi
Toimistotilaa
140 m2
Kiinteistö
Itälahdenkatu 23
Vapautuu
Kysy
Ota yhteyttä
Hausala Oy
Erkkilänkatu 11, 33100 Tampere
Näytä puhelinnumero
050 472 7077
Mikko Ranta
Näytä puhelinnumero
050 360 6500
Mika Savikko
Näytä puhelinnumero
050 472 7077
Pyydä lisätietoa
