Vuokrataan liiketilat - Oulu
Pakkahuoneenkatu 12, Keskusta, 90100 Oulu #10844861
Osoite
Pakkahuoneenkatu 12, 90100 Oulu
Tilatyyppi
Liiketilaa
91 m2
Muuta
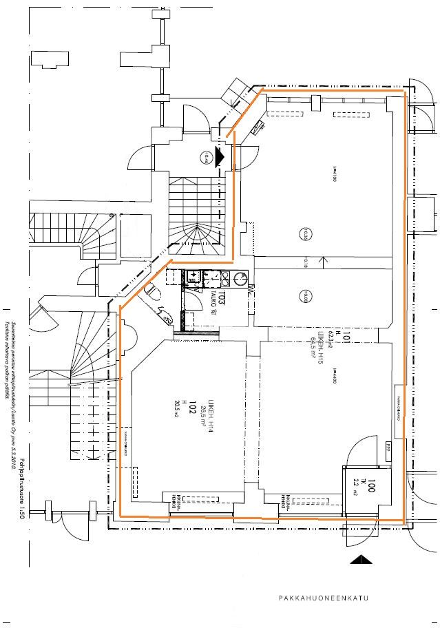
Vuokrataan Oulun ydinkeskustasta vanhasta arvotalosta katutason 91 m2 liiketila. Pohjakuva rajattu keltaisella värillä.
Tilan sisäkorkeus on näyttävä n. 4,2m ja on upea leveine holvikaareineen ja vanhanaikasine pattereineen.
Sisäänkäynti ja isot näyteikkunat ovat Pakkahuoneenkadun puolella.
Tilan takaosa on kaksi askelta korkeammalla. Huoneisto on remontoitu 2018.
Tilassa myös wc- ja taukotila.
Vuokra 3.162,00 eur/ kk ( alv ei lisätä).
Lisäksi käyttösähkö kulutuksen mukaan sekä vesimaksu taloyhtiön hinnoittelun mukaisesti.
Vuorka sidotaan indeksiin, minimikorotus 3% vuodessa.
Tila vapautuu 1.12.2025
Onko tämä sinun yrityksesi uusi toimitila. . .
Pyydä lisätietoja!
Tilan sisäkorkeus on näyttävä n. 4,2m ja on upea leveine holvikaareineen ja vanhanaikasine pattereineen.
Sisäänkäynti ja isot näyteikkunat ovat Pakkahuoneenkadun puolella.
Tilan takaosa on kaksi askelta korkeammalla. Huoneisto on remontoitu 2018.
Tilassa myös wc- ja taukotila.
Vuokra 3.162,00 eur/ kk ( alv ei lisätä).
Lisäksi käyttösähkö kulutuksen mukaan sekä vesimaksu taloyhtiön hinnoittelun mukaisesti.
Vuorka sidotaan indeksiin, minimikorotus 3% vuodessa.
Tila vapautuu 1.12.2025
Onko tämä sinun yrityksesi uusi toimitila. . .
Pyydä lisätietoja!
Vapautuu
1.12.2025
Kerros
1
Ota yhteyttä
Catella Property Oy
Kirkkokatu 6, 5. krs, 90100 OULU
Näytä puhelinnumero
010 5220 100
Pekka Laurila-Harju
Näytä puhelinnumero
010 5220 603
Pyydä lisätietoa
