Vuokrataan toimistotilat, tuotantotilat, varastotilat, työtilat, autotalli/-hallitilat - Porvoo
Yrittäjänkatu 12, 06150 Porvoo #10844848
Hyvä hallitila kahdella toimistohuoneella ja hyvällä varustelulla!
Osoite
Yrittäjänkatu 12, 06150 Porvoo
Tilatyyppi
Toimistotilaa
15 m2
Tuotantotilaa
150 m2
Varastotilaa
150 m2
Työtilaa
150 m2
Autotalli/-hallitilaa
150 m2
Yhteensä
150 m2
Virtuaaliesittely
Vuokra
Tarjous 3,30 €/m²/kk, alv-vapaa
Vuokraan sisältyy lämpö
Muuta
Tarmolan teollisuus- ja yritysalueella vuokrattavana hyvä hallitila hyvällä varustelulla. Tila sopii monenlaiseen käyttöön monenlaisille yrittäjille ja yrityksille.
Tilaa ei vuokrata korjaamo- eikä autopesulakäyttöön.
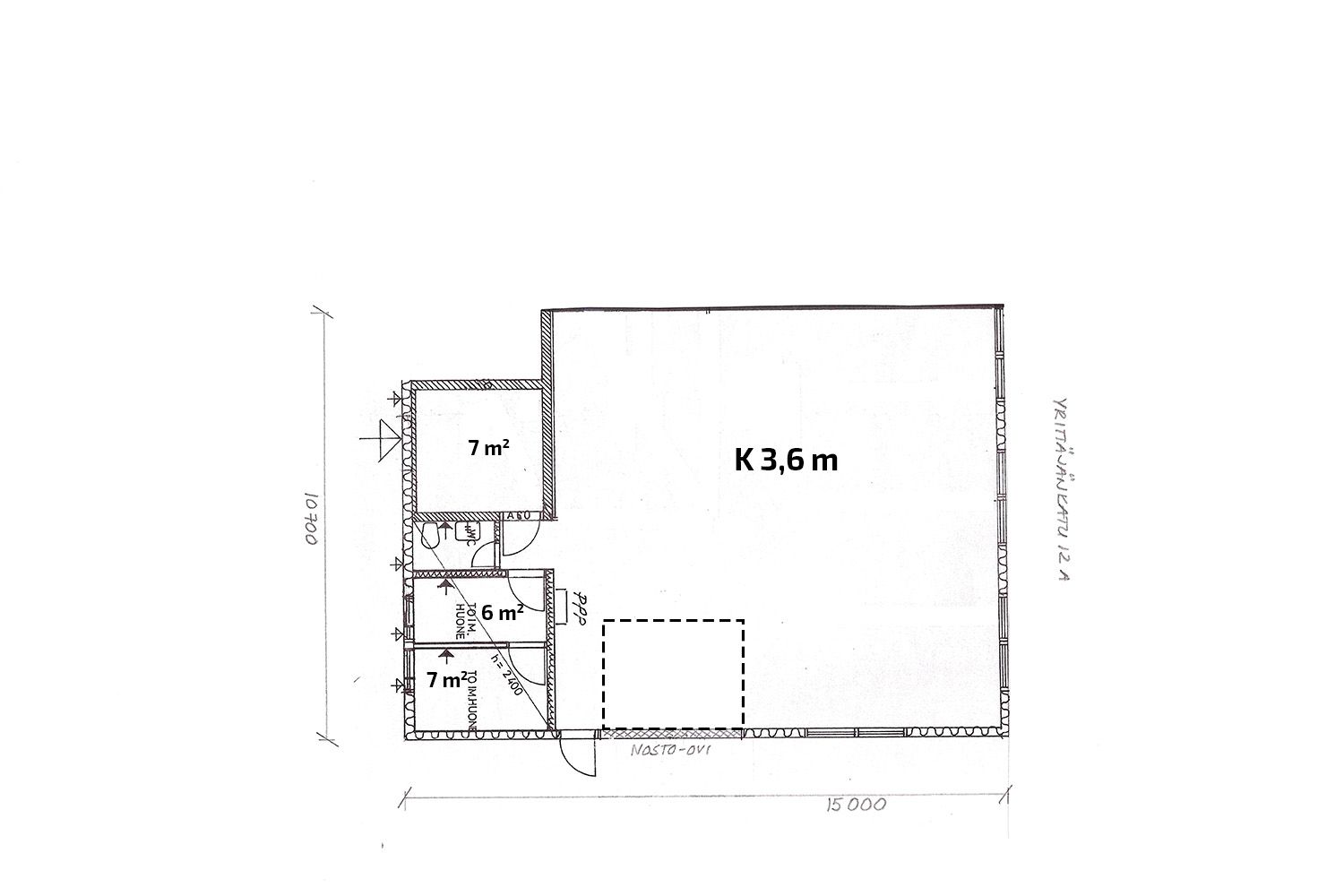
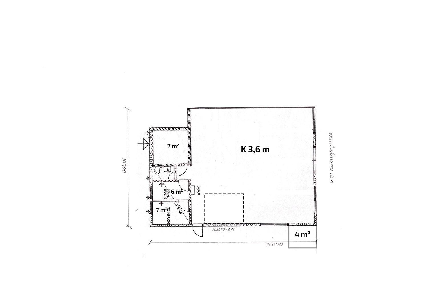
Tilan pinta-ala on noin 150 m² ja se on iso avoin tila, jonka sisäkorkeus on noin 3,6 metriä. Hallin toisessa laidassa on kaksi pientä toimistohuonetta, wc ja erillinen varastohuone. Hallin varusteluun kuuluu nosto-ovi (L 3,4 m x K 3,2 m) ja erillinen käyntiovi, hiekan- ja öljyn erotteleva lattiakaivo, vesipiste ja voimavirtapistokkeita. Lisäksi hallin ulkopuolella on pieni kylmävarasto pinta-alaltaan 4,2 m².
Halliin tarvittavat muutostyöt erikseen sovittavissa.
Tarjoushintaan ensimmäiset 3kk -50% kuukausivuokrasta (edellyttää 15 kk minimisopimusaikaa)!
Lämmitysmuotona on kaukolämpö ja lämmitys sisältyy vuokraan. Normaali vedenkäyttö sisältyy vuokraan ja sähkö laskutetaan mittauksen mukaan.
Asfaltoitu piha-alue ja siellä paikoitustilaa erikseen sovitusti tarpeen mukaan.
Rakennus sijaitsee hyvällä paikalla teollisuusalueella, josta on lyhyt matka moottoritielle. Tarmolan kaupanpalvelut sekä useat lounasravintolat ovat aivan nurkan takana.
Hyvä hallitila hyvällä varustelulla Tarmolassa vapaana – huomasithan tarjouksen!?
Kohdetiedot
Sijainti
Katuosoite: Yrittäjänkatu 12, 06150 Porvoo
Kaupunginosa: Tarmola
Ympäristö: Teollisuusalue
Rakennus/huoneisto
Pinta-alat: Noin 150 m²
Rakennustyyppi: Teollisuusvarastohalli
Rakennusvuosi: 2002
Huoneistoselitelmä/käyttötarkoitus: Tuotanto- ja varastohallitila
Energiatodistus: Laki ei edellytä energiatodistusta
Kunto, varusteet ja palvelut: Hyväkuntoinen halli. Nosto-ovi, toimistohuoneet, wc, vesipiste, lattiakaivo, voimavirtaa
Vapautuu: Heti vapaa
Pysäköinti: Pihalla erikseen sovitusti
Vuokrahinta ja kulut
Kuukausivuokra: 3,30 €/m²/kk, alv-vapaa (Tarjoushintaan ensimmäiset 3kk -50% kuukausivuokrasta (edellyttää 15 kk minimisopimusaikaa)! Normaalihinta 6,60 €/m²/kk, alv-vapaa
Vesimaksu: Normaalikäyttö sisältyy vuokraan
Sähkö: Kulutuksen/mittauksen mukaan
Lämmitys: Sisältyy vuokraan
Jätemaksut: Vuokralainen vastaa järjestelyistä ja kuluista
Muuta: Vakuus 3kk vuokraa vastaava summa, minimisopimus 12kk ja luottotietojen on oltava kunnossa
Tilaa ei vuokrata korjaamo- eikä autopesulakäyttöön.
Tilan pinta-ala on noin 150 m² ja se on iso avoin tila, jonka sisäkorkeus on noin 3,6 metriä. Hallin toisessa laidassa on kaksi pientä toimistohuonetta, wc ja erillinen varastohuone. Hallin varusteluun kuuluu nosto-ovi (L 3,4 m x K 3,2 m) ja erillinen käyntiovi, hiekan- ja öljyn erotteleva lattiakaivo, vesipiste ja voimavirtapistokkeita. Lisäksi hallin ulkopuolella on pieni kylmävarasto pinta-alaltaan 4,2 m².
Halliin tarvittavat muutostyöt erikseen sovittavissa.
Tarjoushintaan ensimmäiset 3kk -50% kuukausivuokrasta (edellyttää 15 kk minimisopimusaikaa)!
Lämmitysmuotona on kaukolämpö ja lämmitys sisältyy vuokraan. Normaali vedenkäyttö sisältyy vuokraan ja sähkö laskutetaan mittauksen mukaan.
Asfaltoitu piha-alue ja siellä paikoitustilaa erikseen sovitusti tarpeen mukaan.
Rakennus sijaitsee hyvällä paikalla teollisuusalueella, josta on lyhyt matka moottoritielle. Tarmolan kaupanpalvelut sekä useat lounasravintolat ovat aivan nurkan takana.
Hyvä hallitila hyvällä varustelulla Tarmolassa vapaana – huomasithan tarjouksen!?
Kohdetiedot
Sijainti
Katuosoite: Yrittäjänkatu 12, 06150 Porvoo
Kaupunginosa: Tarmola
Ympäristö: Teollisuusalue
Rakennus/huoneisto
Pinta-alat: Noin 150 m²
Rakennustyyppi: Teollisuusvarastohalli
Rakennusvuosi: 2002
Huoneistoselitelmä/käyttötarkoitus: Tuotanto- ja varastohallitila
Energiatodistus: Laki ei edellytä energiatodistusta
Kunto, varusteet ja palvelut: Hyväkuntoinen halli. Nosto-ovi, toimistohuoneet, wc, vesipiste, lattiakaivo, voimavirtaa
Vapautuu: Heti vapaa
Pysäköinti: Pihalla erikseen sovitusti
Vuokrahinta ja kulut
Kuukausivuokra: 3,30 €/m²/kk, alv-vapaa (Tarjoushintaan ensimmäiset 3kk -50% kuukausivuokrasta (edellyttää 15 kk minimisopimusaikaa)! Normaalihinta 6,60 €/m²/kk, alv-vapaa
Vesimaksu: Normaalikäyttö sisältyy vuokraan
Sähkö: Kulutuksen/mittauksen mukaan
Lämmitys: Sisältyy vuokraan
Jätemaksut: Vuokralainen vastaa järjestelyistä ja kuluista
Muuta: Vakuus 3kk vuokraa vastaava summa, minimisopimus 12kk ja luottotietojen on oltava kunnossa
Vapautuu
Heti
Rakennusvuosi
2002
Kerros
1 / 1
Katutasossa
Näkyvällä paikalla
Ota yhteyttä
Tilat.fi
KTM, LKV Antti Soivio
Näytä puhelinnumero
0400 446 553
OTM, LKV Riikka Tuominen
Näytä puhelinnumero
0400 551 790
KTM, LKV Maria-Sofia Puhakka
Näytä puhelinnumero
0400-150330
HTM, LKV Aleksandra Riki
Näytä puhelinnumero
0400-211288
LKV Tilat.fi Oy on toimitilojen välitykseen erikoistunut yritys.
http://www.tilat.fiPyydä lisätietoa
