Vuokrataan liiketilat - Helsinki
Aleksanterinkatu 9, Keskusta (Helsinki), 00100 Helsinki #10844844
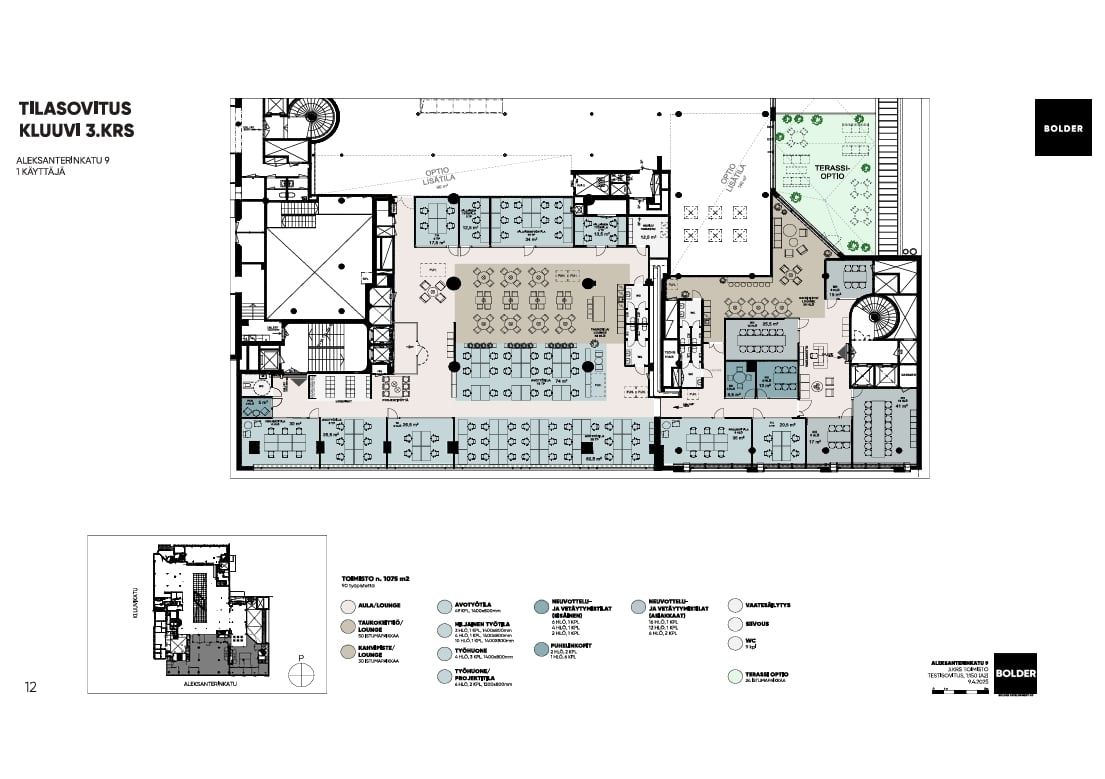
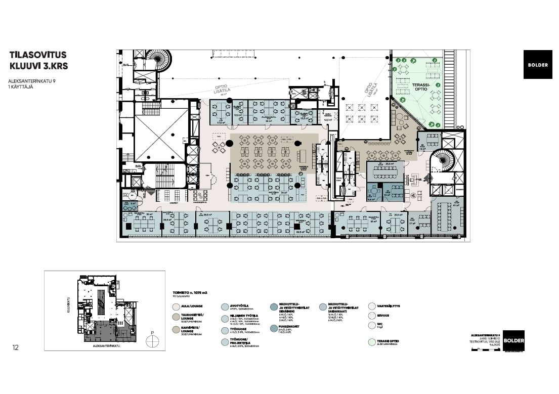
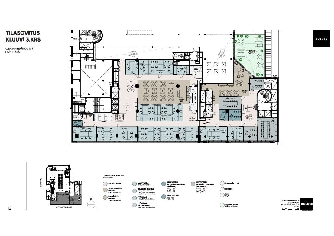
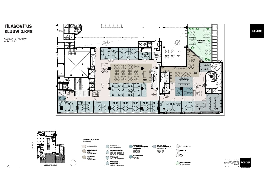
Tilakokonaisuus on vuokrattavissa joko yhtenä suurena kokonaisuutena tai joustavasti jaettuna – joten tältä paraatipaikalta löytyy varmasti sopiva ratkaisu yrityksellenne. Tilaan on mahdollista toteuttaa hyvin erilaisia kokonaisuuksia: esimerkiksi toimistossa voi olla laajasti erikokoisia neuvottelu- ja työhuoneita, avotilaa, lounge-alueita sekä jopa oma terassi.
Tila koostuu osin valmiista ja osin täysin uudistettavasta alueesta – pohjaratkaisut ja tilajako voidaan suunnitella joustavasti tukemaan juuri teidän työskentelytapojanne. Kokonaisuus on myös helposti jaettavissa esimerkiksi asiakas- ja henkilöstötiloihin omilla kulkureiteillään.
Kiinteistö sijaitsee Aleksanterinkadulla metron, raitiovaunujen ja bussireittien äärellä, aivan Helsingin ydinkeskustassa. Kluuvin kauppakeskus liikkeineen ja palveluineen on heti vieressä, ja suora kulku kauppakeskuksesta tiloihin on mahdollista. Autoilijoita palvelee Kluuvin parkkihalli, ja kiinteistössä on laadukkaat sosiaalitilat sekä hyvät olosuhteet pyöräilijöille. Tilojen pinnat ja talotekniikka uusitaan kokonaisvaltaisesti remontin yhteydessä, ja kiinteistölle ei ole suunnitteilla merkittäviä PTS-töitä lähivuosina.
Tila on nähtävissä kokonaisuudessaan purettuna marraskuun lopussa. Vuokralaiselle tilat voidaan luovuttaa arviolta 9–12 kuukauden kuluttua sopimuksen allekirjoituksesta, tilan laajuudesta ja toteutusratkaisusta riippuen. Vapautuminen 1.12.2025 alkaen. Vuokrataso ja mahdolliset kannustimet määräytyvät tilakoon, muutostöiden ja sopimuskauden perusteella.
Me Croisettella autamme teitä löytämään teille parhaat tilat! Olemme puolueettomia asiantuntijoita ja tunnemme toimitilamarkkinat, talot sekä tilat vankalla kokemuksella. Meillä on välityksessä kaikki toimitilat ja tiedämme niiden alustavat vuokratasot.
Tehtävämme on tehdä toimitilahaustanne onnistunutta ja helppoa. Saamme palkkiomme kiinteistönomistajalta, joten sinulle palvelumme on täysin maksuton. Jos kiinnostuit, ota yhteyttä sähköpostitse osoitteeseen vuokraus@croisette.fi tai soita numeroon +358 4 00585857.
Croisette Real Estate Partner
Erottajankatu 5 A 6, 00130 Helsinki
Näytä puhelinnumero
+358 400 585 857
Croisette Vuokraus
Näytä puhelinnumero
+358400585857
