Vuokrataan toimistotilat, liiketilat, näyttelytilat, tuotantotilat, varastotilat, työtilat, tontti, autotalli/-hallitilat - Masku
Ruskontie 2 C, 21250 Masku #10844673
Uudehko halli 1402 m2 *Näkyvä paikka *Kysy lisää Stevi puh. 0400 999 900
Osoite
Ruskontie 2 C, 21250 Masku
Tilatyyppi
Toimistotilaa
94 m2
Liiketilaa
221 m2
Näyttelytilaa
1006 m2
Tuotantotilaa
1006 m2
Varastotilaa
1006 m2
Työtilaa
1006 m2
Tontti
10000 m2
Autotalli/-hallitilaa
1006 m2
Yhteensä
1402 m2
Tilajako
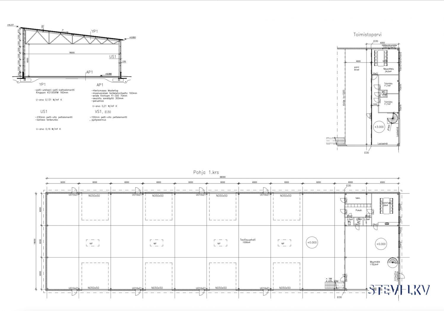
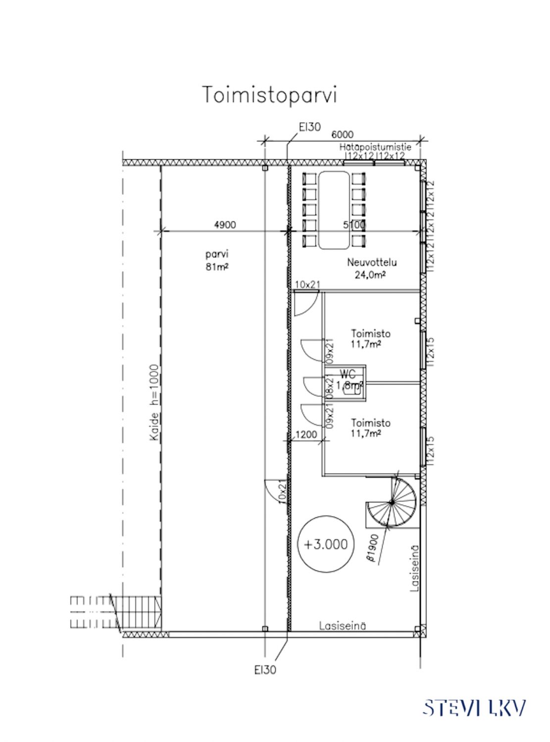
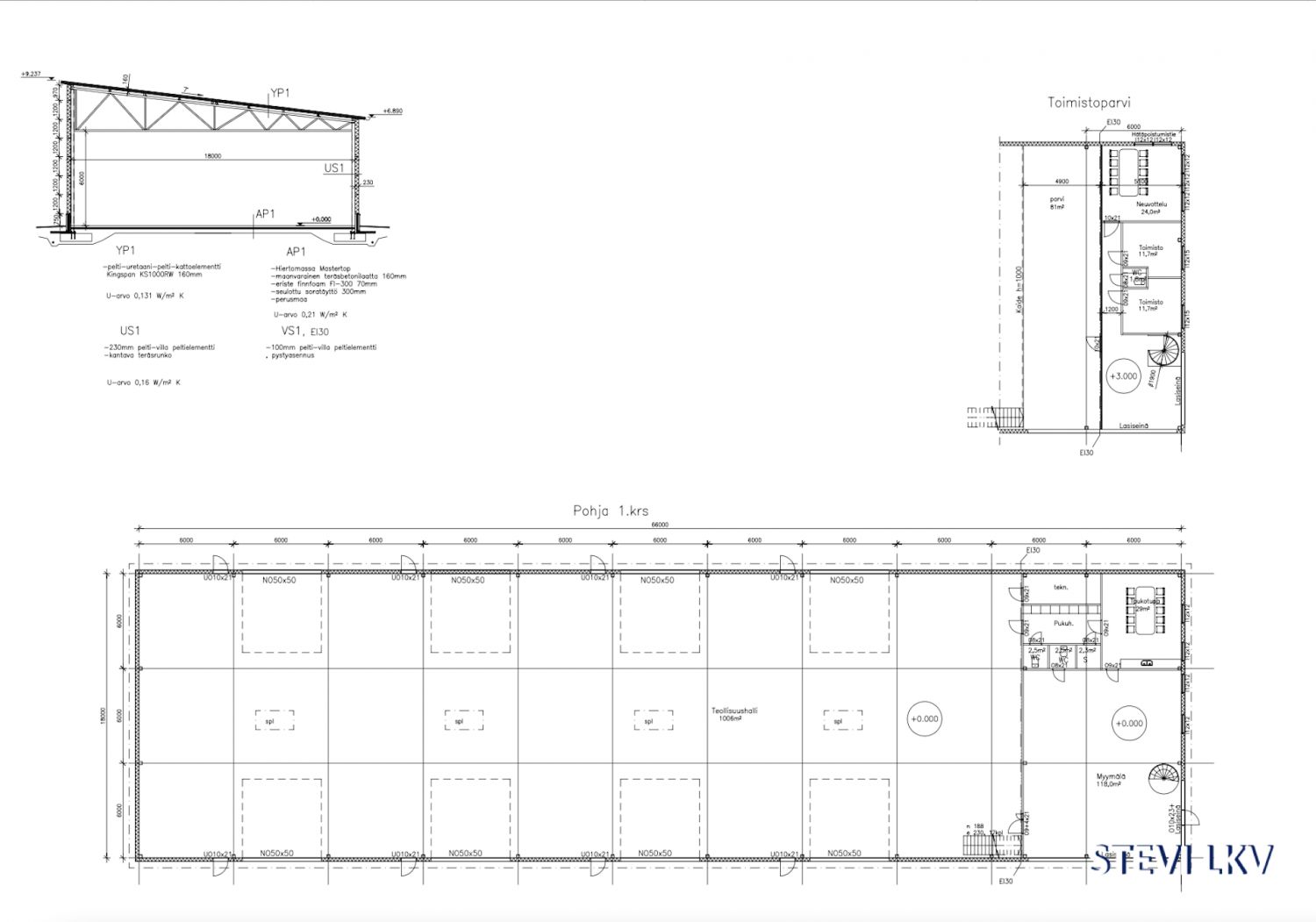
Halli 1006m2 + myymälä 221m2 + 2krs 94m2 toimisto + parvi 81m2 = 1402m2. Määräalan pinta-ala: 10 000 m². Lisätietoja määräalasta: Kaupan kohteena on karttakuvan mukainen määräala 10 000m2 & sillä oleva hallirakennus.
Myyntihinta
1840000
Kiinteistö
Tämä erinomainen liiketila Maskun Humikkalassa tarjoaa monipuoliset mahdollisuudet liiketoiminnalle. Vuonna 2022 valmistunut halli on uutta vastaavassa kunnossa ja sijaitsee näkyvällä paikalla moottoritien varressa, mikä takaa erinomaiset kulkuyhteydet Turkuun, Helsinkiin ja muihin suuriin kaupunkeihin.
Kampanjahinta 1 840 000€ voimassa 2026 toukokuun loppuun.
Tilava halli, myymälä, toimistotilat ja sosiaalitilat muodostavat yhteensä 1402 neliömetriä, ja suuri, asfaltoitu piha-alue tarjoaa runsaasti pysäköintitilaa. Aidattu & valaistu piha sähköportteineen lisää turvallisuutta ja käytännöllisyyttä. Kameravalvonta.
Halli 1006m2 + myymälä 221m2 + 2krs 94m2 toimisto + parvi 81m2 = 1402m2. Määräalan pinta-ala: 10 000 m². Lisätietoja määräalasta: Kaupan kohteena on karttakuvan mukainen määräala 10 000m2 & sillä oleva hallirakennus.
Lämmitysjärjestelmänä toimii energiatehokas maalämpö, ja tiloissa on mahdollisuus nopeisiin verkkoyhteyksiin. Nykyinen vuokralainen voi jäädä osaan tilaa, tai voit ottaa koko tilan omaan käyttöön tarpeidesi mukaan.
Hallin vapaa korkeus on noin 6 metriä.
Kaikki nosto-ovet (korkeus 5 metriä ja leveys 5 metriä) ovat sähköiset, nosto-ovia on 8 kappaletta ja halli on 4:stä kohtaa läpiajettava.
Hallissa on pesukatu (pressut + painepesuri + pesuainejärjestelmä).
Paineilmalinjasto kompuralla.
Tämä kohde tarjoaa loistavat puitteet monenlaiselle liiketoiminnalle, ja sen sijainti sekä tilaratkaisut tekevät siitä houkuttelevan vaihtoehdon. Tartu tilaisuuteen ja tule tutustumaan paikan päälle!
Ole yhteydessä, niin mennään porukassa katsomaan.
Toimitila terveisin,
Stefan Virtanen
Kiinteistönvälittäjä | LKV | KTM | Yrittäjä
stefan@stevilkv.com | 0400 999 900
www.stevilkv.com
Kampanjahinta 1 840 000€ voimassa 2026 toukokuun loppuun.
Tilava halli, myymälä, toimistotilat ja sosiaalitilat muodostavat yhteensä 1402 neliömetriä, ja suuri, asfaltoitu piha-alue tarjoaa runsaasti pysäköintitilaa. Aidattu & valaistu piha sähköportteineen lisää turvallisuutta ja käytännöllisyyttä. Kameravalvonta.
Halli 1006m2 + myymälä 221m2 + 2krs 94m2 toimisto + parvi 81m2 = 1402m2. Määräalan pinta-ala: 10 000 m². Lisätietoja määräalasta: Kaupan kohteena on karttakuvan mukainen määräala 10 000m2 & sillä oleva hallirakennus.
Lämmitysjärjestelmänä toimii energiatehokas maalämpö, ja tiloissa on mahdollisuus nopeisiin verkkoyhteyksiin. Nykyinen vuokralainen voi jäädä osaan tilaa, tai voit ottaa koko tilan omaan käyttöön tarpeidesi mukaan.
Hallin vapaa korkeus on noin 6 metriä.
Kaikki nosto-ovet (korkeus 5 metriä ja leveys 5 metriä) ovat sähköiset, nosto-ovia on 8 kappaletta ja halli on 4:stä kohtaa läpiajettava.
Hallissa on pesukatu (pressut + painepesuri + pesuainejärjestelmä).
Paineilmalinjasto kompuralla.
Tämä kohde tarjoaa loistavat puitteet monenlaiselle liiketoiminnalle, ja sen sijainti sekä tilaratkaisut tekevät siitä houkuttelevan vaihtoehdon. Tartu tilaisuuteen ja tule tutustumaan paikan päälle!
Ole yhteydessä, niin mennään porukassa katsomaan.
Toimitila terveisin,
Stefan Virtanen
Kiinteistönvälittäjä | LKV | KTM | Yrittäjä
stefan@stevilkv.com | 0400 999 900
www.stevilkv.com
Sijainti
Näkyvä paikka moottoritien vieressä
Ympäristö
Liiketoimintaa
Pysäköinti
Pihalla paljon tilaa
Palvelut
Alueen palvelut
Kulkuyhteydet
Hyvät
Muuta
Kysy lisää Stevi puh. 0400 999 900
Vapautuu
Sopimuksen mukaan. Nykyinen toimija (Turun Trailertukku Oy) voi jäädä osaan halliin vuokralle ja heti saa osan hallista omaan käyttöön. Tai sitten koko hallin saa omaan käyttöön (kerro millainen tila terve on).
Rakennusvuosi
2022
Kerros
1 / 2
Näkyvällä paikalla
Ota yhteyttä
Stevi LKV | Kiinteistönvälitys & Vuokravälitys
Stefan Virtanen
LKV, KTM, Yrittäjä
Näytä puhelinnumero
0400 999 900
stefan@stevilkv.com
Reipasta palvelua ja hyvää konsultointia.
Soita tai laita spostia ja kerro tila tarpeesi; tämä on ilmainen palvelu tilaa etsivälle (vuokranantaja maksaa palkkion).
Toimitilojen myynti & vuokraus.
Pyydä lisätietoa
