Myydään liiketilat, tuotantotilat, varastotilat - Tampere
Messukylänkatu 50, Messukylä, 33700 Tampere #10844611
Osoite
Messukylänkatu 50, 33700 Tampere
Tilatyyppi
Liiketilaa
440 m2
Tuotantotilaa
440 m2
Varastotilaa
407 m2
Yhteensä
407 - 1287 m2
Tilajako
Jaettavissa
Muuta
Erittäin vilkkaassa risteyksessä, Messukylän kirkkoa vastapäätä sijaitseva liikekiinteistö myytävänä.
Tämä punatiilinen, 3-kerroksinen rakennus on valmistunut v. 1981. Se on ollut valmistumisestaan saakka samalla omistajalla käytössä.
Tontti on omaomisteinen ja kooltaan 1621 m2. Piha on aidattu ja ympäri ajettava. Pihassa on hyvin pysäköintitilaa.
Rakennus koostuu kolmesta kerroksesta.
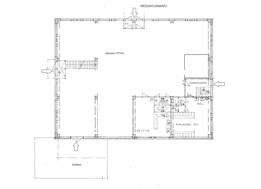
-Katutason n.440 m2 tila koostuu avarasta tilasta, keittiö- ja wc tiloista sekä erillisestä toimistohuoneesta. Lisäksi erillisen rapun yhteydessä on pukuhuonetilat.
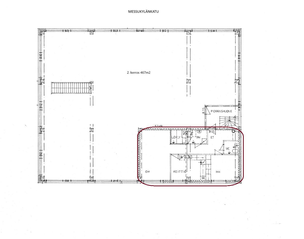
-2. kerroksen n. 440 m2 tila koostuu avarasta tilasta, kevyin väliseinin eritetuista työ-/toimistotiloista. Erillisen rapun kautta on kulku asuinhuoneistoon, joka on ollut toimistokäytössä. Sen yhteydessä sijaitsevat tämän kerroksen sosiaalitilat.
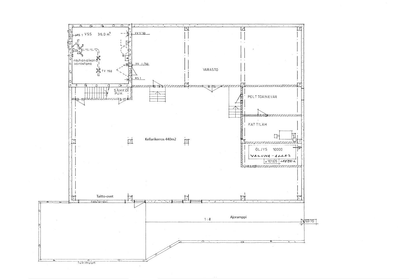
-Kellarikerroksen n. 407 m2 tila on korkeampaa tuotanto-/verstas-/varastointitilaa. Lisäksi siellä on matalampia varastointitiloja sekä väestönsuoja. Kellarikerrokseen pääsee ajoluiskaa pitkin Messukylän kirkon puolelta.
Katutason kerrokseen on useampia mahdollisia käyntiovia, lisäksi takaovi erilliseen rappuun. Lastauslaituri rakennuksen takapuolella, josta lastausovi sisälle.
Kellarikerrokseen on käynti sisältä rappusia pitkin sekä ajoluiskaa pitkin. Ajoluiskan alapäässä on pieni varastokatos.
Kiinteistössä on öljylämmitys ja lisäksi 5 kpl ilmalämpöpumppuja.
Rakennukseen on tehty v. 2018 ilmanvaihto- ja automaatiosaneeraus mm. IV-kanavamuutokset, IV-koneen vaihto, automaatiojärjestelmän asennus, palopellit. Saranaportti on uusittu v. 2022.
Myös vuokraus on mahdollista.
Ole yhteydessä, mennään tutustumaan tähän kiinteistöön paikan päälle:
Annina Niemi
Myyntipäällikkö, LKV
annina.niemi@catella.com
p. 0404812220
Tilanhakijalle palvelumme ovat maksuttomia.
Catella Property Oy on valtakunnallinen toimitilojen vuokraukseen ja myyntiin keskittynyt kiinteistönvälitysyritys.
Kysy paikallisilta ammattitaitoisilta välittäjiltämme myös muita välityksessämme olevia toimitilakohteita.
Välittäjiemme yhteystiedot ja lisää välitettäviä tilakohteita verkkosivuillamme: www.toimitilat.catella.fi.
Ota yhteyttä!
Tämä punatiilinen, 3-kerroksinen rakennus on valmistunut v. 1981. Se on ollut valmistumisestaan saakka samalla omistajalla käytössä.
Tontti on omaomisteinen ja kooltaan 1621 m2. Piha on aidattu ja ympäri ajettava. Pihassa on hyvin pysäköintitilaa.
Rakennus koostuu kolmesta kerroksesta.
-Katutason n.440 m2 tila koostuu avarasta tilasta, keittiö- ja wc tiloista sekä erillisestä toimistohuoneesta. Lisäksi erillisen rapun yhteydessä on pukuhuonetilat.
-2. kerroksen n. 440 m2 tila koostuu avarasta tilasta, kevyin väliseinin eritetuista työ-/toimistotiloista. Erillisen rapun kautta on kulku asuinhuoneistoon, joka on ollut toimistokäytössä. Sen yhteydessä sijaitsevat tämän kerroksen sosiaalitilat.
-Kellarikerroksen n. 407 m2 tila on korkeampaa tuotanto-/verstas-/varastointitilaa. Lisäksi siellä on matalampia varastointitiloja sekä väestönsuoja. Kellarikerrokseen pääsee ajoluiskaa pitkin Messukylän kirkon puolelta.
Katutason kerrokseen on useampia mahdollisia käyntiovia, lisäksi takaovi erilliseen rappuun. Lastauslaituri rakennuksen takapuolella, josta lastausovi sisälle.
Kellarikerrokseen on käynti sisältä rappusia pitkin sekä ajoluiskaa pitkin. Ajoluiskan alapäässä on pieni varastokatos.
Kiinteistössä on öljylämmitys ja lisäksi 5 kpl ilmalämpöpumppuja.
Rakennukseen on tehty v. 2018 ilmanvaihto- ja automaatiosaneeraus mm. IV-kanavamuutokset, IV-koneen vaihto, automaatiojärjestelmän asennus, palopellit. Saranaportti on uusittu v. 2022.
Myös vuokraus on mahdollista.
Ole yhteydessä, mennään tutustumaan tähän kiinteistöön paikan päälle:
Annina Niemi
Myyntipäällikkö, LKV
annina.niemi@catella.com
p. 0404812220
Tilanhakijalle palvelumme ovat maksuttomia.
Catella Property Oy on valtakunnallinen toimitilojen vuokraukseen ja myyntiin keskittynyt kiinteistönvälitysyritys.
Kysy paikallisilta ammattitaitoisilta välittäjiltämme myös muita välityksessämme olevia toimitilakohteita.
Välittäjiemme yhteystiedot ja lisää välitettäviä tilakohteita verkkosivuillamme: www.toimitilat.catella.fi.
Ota yhteyttä!
Vapautuu
Heti vapaa
Jaettavissa
Lastauslaituri
Ota yhteyttä
Catella Property Oy
Hämeenkatu 13b A, 33100 Tampere
Näytä puhelinnumero
010 5220 100
Annina Niemi
Näytä puhelinnumero
040 4812 220
Pyydä lisätietoa
