Vuokrataan toimistotilat, liiketilat - Raisio
Monikäyttöistä katutason toimitilaa 68 m², Varastokatu 4, 21200 Raisio #10844516
Etsitkö uutta toimitilaa tai rivintalonomaista työsuhdeasuntoa pidemmäksi aikaa? Tämä vuonna 2020 täysin remontoitu 68 m²:n tila sijaitsee hallirakennuksen toisessa päädyssä, oma sisäänkäynti on lähes esteetön. Tila soveltuu monikäyttöiseksi toimitilaksi ja asumiseen.
Osoite
Varastokatu 4, 21200 Raisio
Tilatyyppi
Toimistotilaa
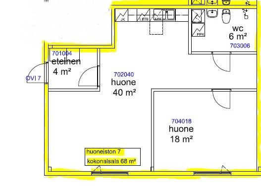
68 m2
Liiketilaa
68 m2
Yhteensä
68 m2
Tila soveltuu
Studio/ateljé, popup, coworking
Vuokra
10 €/m² + alv 25,5 %
Vuokraan sisältyy lämpö
Kiinteistö
Katutasossa sijaitsevat tilat on saneerattu kattavasti sisä- ja ulkopuolelta v. 2020, ja ne ovat hyvässä kunnossa. Kaikki tilat ovat lämmitettyjä ja niissä on koneellinen ilmanvaihto lämmön talteenotolla, vesijohto ja viemäröinti.
Hyödykkeiden kulutusta voi seurata huoneistokohtaisilla vesi- ja sähkömittareilla. Lämmitys sisältyy vuokraan. Kiinteistössä on 1000 Mb/s valokuituyhteys.
Hyödykkeiden kulutusta voi seurata huoneistokohtaisilla vesi- ja sähkömittareilla. Lämmitys sisältyy vuokraan. Kiinteistössä on 1000 Mb/s valokuituyhteys.
Kiinteistön palvelut
Asiakaspysäköinti, Kiinteistöpalvelut, Piha
Sijainti
Kohde sijaitsee Raision Varppeenseudun toimitila-alueella. Alueelle on erittäin hyvät liikenneyhteydet Nesteentieltä ja esim. Meyer Oy:n Turun telakalle on matkaa vain n. 4 km. Etäisyys Raision keskustaan on n. 1 km.
Ympäristö
Alueella on pientuotanto-, varasto- ja kauppaliiketoimintaa sekä kasvava asuinalue. 400 metrin säteellä sijaitsee mm. Lidl, aikuiskoulutuskeskus Raseko, Vettori sekä suurempi toimitilakokonaisuus Purocenter.
Pysäköinti
1000 m²:n asfaltoitu piha on käytettävissä asiakaspaikoitukseen muiden vuokralaisten kanssa. Huoneistoon kuuluu autopaikka sähköpistokkeella (lämmitys/Mode 2 -lataus).
Lue lisää: https://toimitilat-varastokatu-4-raisio.webnode.fi/
Lue lisää: https://toimitilat-varastokatu-4-raisio.webnode.fi/
Palvelut
Keskustaan on kävelymatka ja 400 metrin säteellä on runsaasti mm. yrityksiä, koulutuskeskus, uimahalli ja kasvava asuinalue. Bussipysäkki on noin 70 metrin päässä.
Kulkuyhteydet
Toimitila sijaitsee Raision Varastokadulla hyvien julkisten liikenneyhteyksien varrella. Autolla on myös helppo tulla, pysäköidä voi kiinteistön asiakaspaikoitusalueelle ja toimitilan henkilökunnalla on oma pysäköintiruutu.
Vuokralaisia
Kiinteistössä toimii erilaisia yrityksiä; mm.urheiluharrastehalli, verkkokauppa, trimmaamo sekä kampaamo.
Muuta
68 m² suuruinen huoneisto toimistoksi, vastaanottotilaksi, myymälätilaksi ... mahdollisuuksia on! Tila sijaitsee hallirakennuksen julkisivun oikeassa päädyssä. Lähes esteetön, oma sisäänkäynti.
Huoneistossa on tilava tuulikaappi kiintokomeroilla, kaksi suurella ikkunalla varustettua tilaa, jotka saa tarvittaessa jaettua esim. työpisteiksi, keittiö (jääkaappi-pakastin, keraaminen liesi uunilla, liesituuletin) sekä kylpyhuone (pyykinpesukoneliitäntä, tilaa pesutornille). Tilassa oleva vesikiertoinen patterilämmitys sisältyy vuokraan, kylpyhuoneessa on mukavuuslattialämmitys sähköllä. Vesi- ja sähkömaksu veloitetaan taannehtivasti oman kulutuksen mukaan. Huoneistossa on oma ilmanvaihtokone.
Vuokraamme tiloja yrityksille, joten liitäthän mukaan tiedusteluun y-tunnuksen ja kerrot hieman toiminnastasi.
Lue lisää: https://toimitilat-varastokatu-4-raisio.webnode.fi/huoneisto-7-68-m2/
Huoneistossa on tilava tuulikaappi kiintokomeroilla, kaksi suurella ikkunalla varustettua tilaa, jotka saa tarvittaessa jaettua esim. työpisteiksi, keittiö (jääkaappi-pakastin, keraaminen liesi uunilla, liesituuletin) sekä kylpyhuone (pyykinpesukoneliitäntä, tilaa pesutornille). Tilassa oleva vesikiertoinen patterilämmitys sisältyy vuokraan, kylpyhuoneessa on mukavuuslattialämmitys sähköllä. Vesi- ja sähkömaksu veloitetaan taannehtivasti oman kulutuksen mukaan. Huoneistossa on oma ilmanvaihtokone.
Vuokraamme tiloja yrityksille, joten liitäthän mukaan tiedusteluun y-tunnuksen ja kerrot hieman toiminnastasi.
Lue lisää: https://toimitilat-varastokatu-4-raisio.webnode.fi/huoneisto-7-68-m2/
Vapautuu
heti
Katutasossa
Ota yhteyttä
Kiinteistö Oy Amarantti
Pyydä lisätietoa