Myydään tuotantotilat - Järvenpää
Halkiantie 20, Pietilä, 04410 Järvenpää #10844464
Svengin yritysalueella tarjoalla uusia tasokkaita tallitiloja pian valmistuvasta energiatehokkaasta rakennuksesta
Arvioitu hoitovastike vain 1,5 € /m² !
Siijainti on erinomainen, vain alle kilometrin päässä Lahden moottoritien rampista, ja yhteydet pääkaupunkiseudulle sekä Lahden suuntaan ovat sujuvat.
Tarjolla yhden kahde tai kolmen tallin kokonaisuus !
Sijoittajalle tilat ovat vuorattavuudeltaan hyviä ja vuokralaiskysyntää on jo ollut !
Rakennus on korkeatasoisesti varusteltu.
Siinä on täysi betonirunko, talleissa 6 metriä huonekorkeutta.
Sähköiset nosto-ovet kooltaan 4x5 m.
Energiatehokas maalämpö ja aurinkosähkö.
Tiloissa vesikiertoinen lattialämmitys, sekä vesipiste ja wc jokaisessa hallissa.
Jokaisessa hallissa myös oma veden- ja sähkönmittaus.
Tontti on aidataan, asfaltoidaan ja rakennus on varustettu kameravalvonnalla.
Lisätietoja ja esittelyt:
Mika Nyman
0400347758
mika.nyman@op.fi
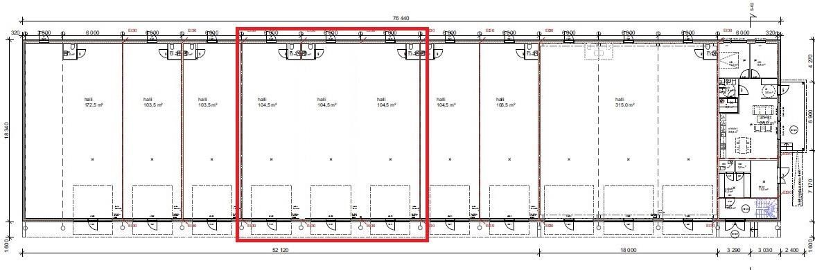
Kolmen tallin kokonaisuus, Talli 4, 5, ja 6 yht. 313,5 m² (yksittäinen talli 104,5 m²)
Talleissa nosto-ovi 4 x 5m.
Vapaakorkeus > 6 m.
Jokaisessa tallissa vesi- ja viemäri, sekä sähkö omalla mittauksella.
Öljyn- ja hiekan erotuskaivo.
Halleissa poistoilma puhaltimet ja varaus koneelliselle ilmanvaihdolle.
Yleistietoja yhtiöstä
Vuokratontti 3871 m².
Vuokranantaja Järvenpään kaupunki.
Vuokrasopimus voimassa 31.7.2072.
Vuokraoikeuteen ei kohdistu rasitteita eikä kiinnityksiä !
Teollisuus- ja pienteollisuustalot rakennus, arvioitu valmistuminen viikolla 48.
Kantava rakennen betoni. Julksivussa maali ja osin peltiverhous.
Uretaanieriste, yläpohjassa puhallusvilla.
Kuitubetonilattiat, MasterTop- pinnoite ja Fescon siroite pinnoite.
Harjakatto, peltikate
Rakennuksen huoneistoala 1404,5 m².
Kerrosala US250 1499 m².
Rakennuksessa 11 erillistä osakeryhmää, jotka ovat halli/talli tiloja, sekä toimisto ja asunto.
Maalämpö ja aurinkosähkö.
Kiinteistöautomaation etähallinta.
Tiloissa vesikieroinen lattialämmitys.
Rakennuksessa kameravalvonta.
Tontti aidataan ja varustetaan sähköisellä portilla. Pihat asfaltoidaan
Asemakaava, Svengin yritysalue
KTY-5 e=0,50 II
Toimitilarakennusten korttelialue.
Tarkemmat kaavamääräyksen asemakaavaotteella.
Muut tilat:
Tallit 4,5 ja 6.
Yksittäinen talli 104,5 m² pohjapiirroksen ja yhtiöjärjestyksen mukaan.
Jaettavissa
OP Koti Uusimaa Oy LKV
Toimitilapalvelut
Arkadiankatu 23
00100 HELSINKI
Mika Nyman
Toimitilavälittäjä, Kiinteistöarvioija, LKV, YKV, AKA/KHK
Näytä puhelinnumero
0400 347 758
