Myydään liiketilat - Karvia
Hietaluomantie 272, Karvia, 39930 Karvia #10843749
Mahdollisuuksien paikka Karviassa!
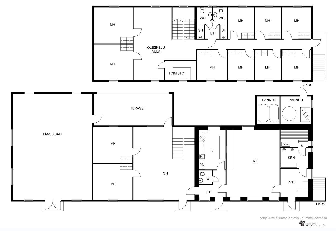
Yhdistä asuminen ja yrittäminen tässä uniikissa kohteessa, joka on palvellut yli 25 vuoden ajan maatilamatkailuyrityksenä. Lähes 6000 neliön tontilla, vuonna 1998 nykyiseen käyttötarkoitukseensa valmistunut, entinen navettarakennus. Lähes 500 neliön rakennus pitää sisällään 10 majoitushuonetta, oleskelutiloja, suuren juhlasalin, keittiön ruokailusalilla sekä saunaosaston. Kaikki tilat ovat siistissä kunnossa ja valmiina jatkamaan samaa käyttöä – tai mukautumaan uuden yrittäjän ideoihin.
Pihapiiriä täydentää vuonna 2001 valmistunut tunnelmallinen holvisauna kirkasvetisen lammen rannalla, sekä 1940-luvun lopun asuinrakennus ja varastorakennus. Täällä on järjestetty vuosien varrella kaikkea häistä tansseihin, pikkujouluista linturetkiin – ja mahdollisuudet ovat rajattomat myös tulevaisuudessa.
Tämä on tilaisuutesi – tule katsomaan ja ideoimaan, mitä kaikkea voisit täällä toteuttaa!
Myös vuokrausmahdollisuus.
Myyjä ei vastaa kiinteistöllä sijaitsevissa rakennuksissa kaupan jälkeen havaittavista virheellisyyksistä tai puutteellisuuksista tai lisäpurkukustannuksia aiheuttavista rakenteista tai materiaaleista, liittyvätpä puutteellisuudet, virheellisyydet tai lisäkustannukset sitten rakenteellisiin seikkoihin, rakennustavan asianmukaisuuteen, rakennuksen käyttömahdollisuuksiin, ilmoitettuihin pinta-aloihin, kosteus-, home-, sieni- tai lahovaurioihin tai muihin laatuvirheisiin tai puutteellisuuksiin esimerkiksi rakennuksen perustuksissa, salaojituksissa, viemäröinneissä, veden- tai kosteuden eristyksissä, muissa eristyksissä, rungossa, ala-, ylä- tai välipohjassa, julkisivuissa, vesikatteessa, seinissä, pinnoitteissa, ikkunoissa, ovissa, rakennuksen muissa varusteissa tai kalusteissa, vesi, sähkö,- tai viemäri- tai muissa johdoissa/-laitteistoissa, hormeissa/ilmastointikanavissa, sähkö- tai lämmitysjärjestelmässä tai muissa kojeissa tai laitteissa havaittaviin puutteellisuuksiin tai virheellisyyksiin.
Keittiön vieressä ruokasali
Kylpyhuoneen varusteet:
suihku
Keittiön pintamateriaalit:
Lattia: laatta
Seinä: maalattu
WC:n pintamateriaalit:
Lattia: laatta
Seinä: kaakeli, maalattu

Kankaanpään Laki ja Kiinteistö Oy
Keskuskatu 61
38700 KANKAANPÄÄ
Näytä puhelinnumero
+35825788991
Tuori Juhani
kiinteistönvälittäjä, kaupanvahvistaja
Näytä puhelinnumero
044-553 0215