Vuokrataan toimistotilat - Helsinki
Valimo Center, Valimotie 13 A, Pitäjänmäki, 00380 Helsinki #10843652
Siisti 145,5 m² toimistotila tunnelmallisessa rakennuksessa.
Osoite
Valimotie 13 A, 00380 Helsinki
Tilatyyppi
Toimistotilaa
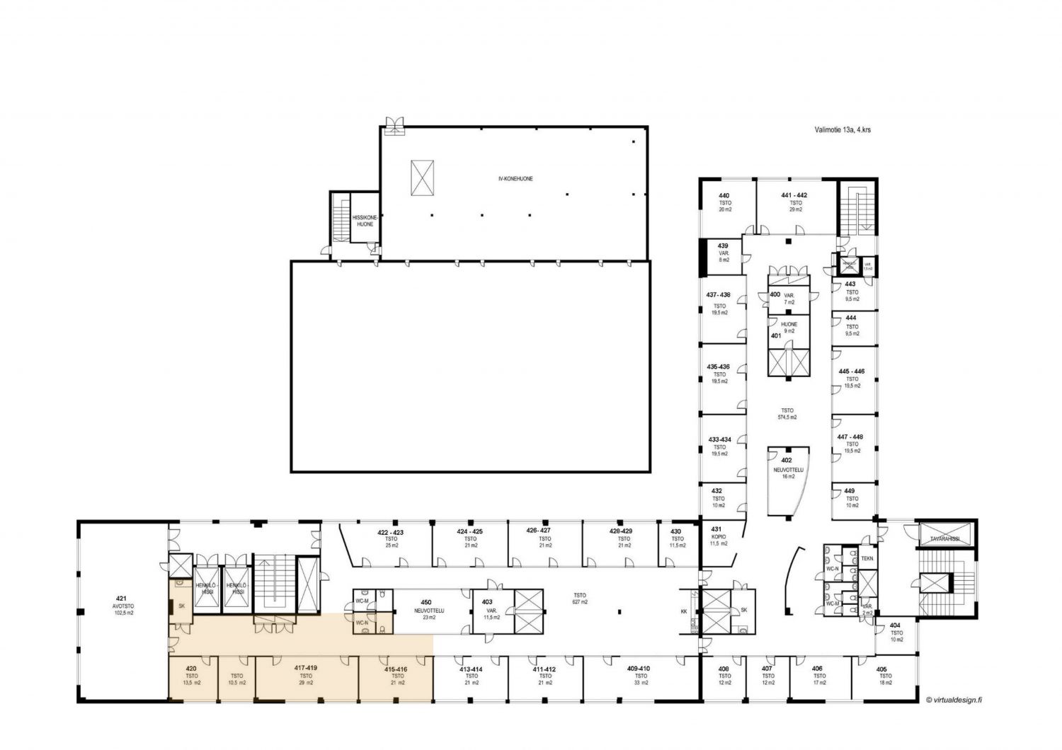
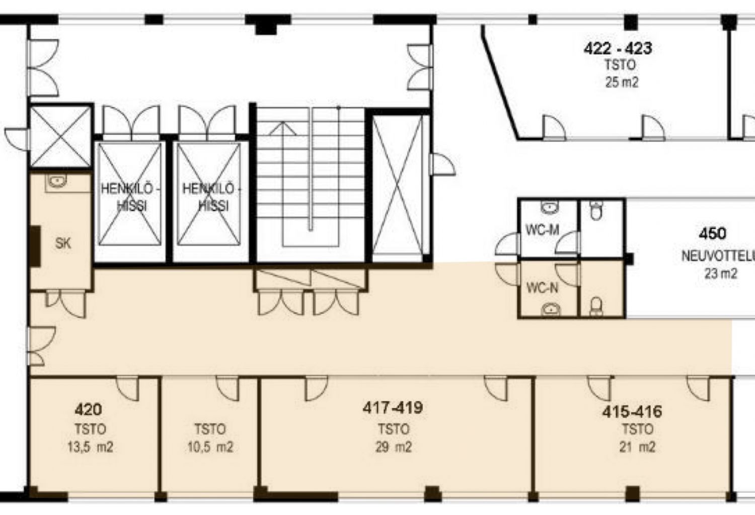
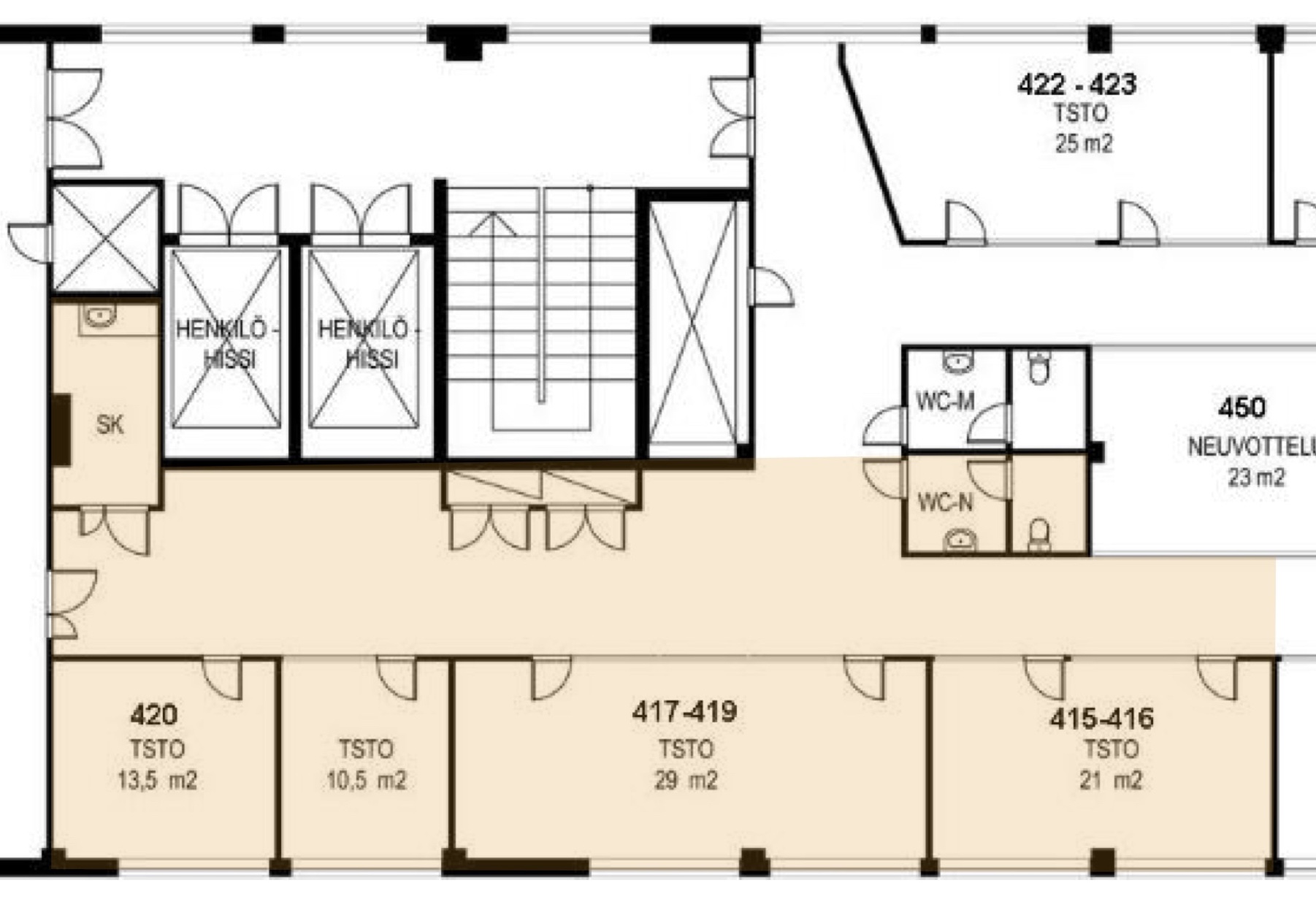
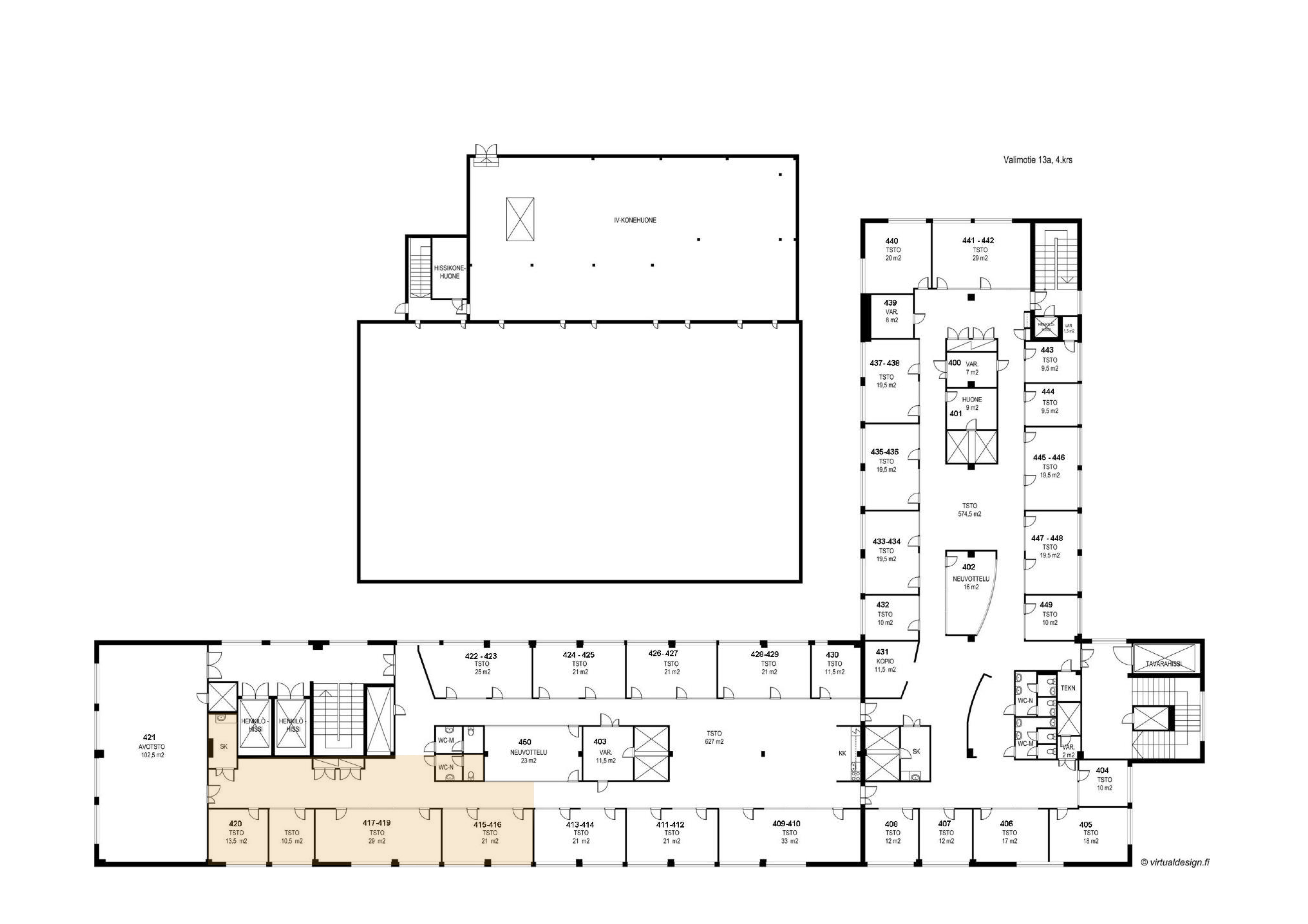
145,5 m2
Kiinteistö
Jäähdytetty toimistotila Valimotie 13 a:n rakenuksessa omalla sisäänkäynnillä rakennuksen neljännessä kerroksessa. Tila koostuu useammasta toimistohuoneesta ja tilajakoa on muokattavissa tarpeen mukaan.
Tilan muokkaus onnistuu joustavasti ja suurinta osaa seinistä pystyy siirtämään, jolloin mahdollisuus on isoihinkin pohjamuutoksiin. Vuokrantaja suunnittelee mahdolliset remontit ja muutostyöt aina asiakaskohtaisesti vuokraneuvottelujen yhteydessä.
Ilmoituksen sisäkuvat ovat yleiskuvia kiinteistön eri tiloista.
Valimotien loivassa kaarteessa kohoaa kuusikerroksinen punatiilinen Valimotie 13a:n rakennus. Se tarjoaa monipuolista, modernia toimistotilaa sekä viihtyisän miljöön. Tilaa löytyy pienistä toimistohotellihuoneista isompiin, omalla sisäänkäynnillä, taukokeittiöillä ja wc-tiloilla varustettuihin kokonaisuuksiin. Rakennuksen yhteyteen kuuluu lämmin autohalli sekä sen päälle sijoittuva pihakansi, josta löytyy lisää vuokralaisten paikoitustilaa. Rakennuksessa on jäähdytetty ilmanvaihto sekä huonekohtainen erillisjäähdytys.
Pääovesta sisään astuessa saavut rakennuksen aulaan, jossa aulapalvelun henkilökunta toivottaa sinut tervetulleeksi ja opastaa tarvittaessa oikean yrityksen kerrokseen. Aulapalvelun kautta kulkee kirje- ja pakettipostit, sekä sen kautta on varattavissa esimerkiksi kokoustilat eri kokoisille porukoille.
Valimotie 13a:n katutasossa, heti aulan jälkeen, upeassa korkeassa tilassa valokatetussa tilassa sijaitsee suosittu Factory Pitäjänmäki -lounasravintola, jossa on mukava hengähtää työnteon lomassa. Talon kellarikerroksessa (0. krs) sijaitsee talon oma kuntosali, joka on vuokralaisten käytettävissä vuokraan sisältyvänä palveluna. Samasta kerroksesta löytyy myös pukuhuone, suihku ja saunatilat.
Kiinteistö sijaitsee keskeisellä paikalla pääkaupunkiseudulla. Juna, Jokerilinja sekä bussiyhteydet ovat talon vieressä. Valimon asemalle kävelee viidessä minuutissa ja keskustaan sekä lentokentälle on alle 20 minuutin ajomatka.
Tilan muokkaus onnistuu joustavasti ja suurinta osaa seinistä pystyy siirtämään, jolloin mahdollisuus on isoihinkin pohjamuutoksiin. Vuokrantaja suunnittelee mahdolliset remontit ja muutostyöt aina asiakaskohtaisesti vuokraneuvottelujen yhteydessä.
Ilmoituksen sisäkuvat ovat yleiskuvia kiinteistön eri tiloista.
Valimotien loivassa kaarteessa kohoaa kuusikerroksinen punatiilinen Valimotie 13a:n rakennus. Se tarjoaa monipuolista, modernia toimistotilaa sekä viihtyisän miljöön. Tilaa löytyy pienistä toimistohotellihuoneista isompiin, omalla sisäänkäynnillä, taukokeittiöillä ja wc-tiloilla varustettuihin kokonaisuuksiin. Rakennuksen yhteyteen kuuluu lämmin autohalli sekä sen päälle sijoittuva pihakansi, josta löytyy lisää vuokralaisten paikoitustilaa. Rakennuksessa on jäähdytetty ilmanvaihto sekä huonekohtainen erillisjäähdytys.
Pääovesta sisään astuessa saavut rakennuksen aulaan, jossa aulapalvelun henkilökunta toivottaa sinut tervetulleeksi ja opastaa tarvittaessa oikean yrityksen kerrokseen. Aulapalvelun kautta kulkee kirje- ja pakettipostit, sekä sen kautta on varattavissa esimerkiksi kokoustilat eri kokoisille porukoille.
Valimotie 13a:n katutasossa, heti aulan jälkeen, upeassa korkeassa tilassa valokatetussa tilassa sijaitsee suosittu Factory Pitäjänmäki -lounasravintola, jossa on mukava hengähtää työnteon lomassa. Talon kellarikerroksessa (0. krs) sijaitsee talon oma kuntosali, joka on vuokralaisten käytettävissä vuokraan sisältyvänä palveluna. Samasta kerroksesta löytyy myös pukuhuone, suihku ja saunatilat.
Kiinteistö sijaitsee keskeisellä paikalla pääkaupunkiseudulla. Juna, Jokerilinja sekä bussiyhteydet ovat talon vieressä. Valimon asemalle kävelee viidessä minuutissa ja keskustaan sekä lentokentälle on alle 20 minuutin ajomatka.
Vapautuu
Heti
Rakennusvuosi
1974
Saneerausvuosi
1996
Kerros
4 / 6
Energiatehokkuusluokka
Ei lain edellyttämää energiatodistusta
Hissi
Ota yhteyttä
ScanReal Oy LKV
Opus Business Park
Hitsaajankatu 24
00810 Helsinki
info@scanreal.fi
Puh:
Näytä puhelinnumero
020 730 8830
Sopivat toimitilat yhdellä otolla!
Kartoitamme toimitilatarpeesi ja etsimme yrityksellesi parhaiten sopivat vapaat toimitilat. Koska vuokranantajat maksavat palvelumme, on tämä yrityksellesi veloituksetonta.
OTA YHTEYTTÄ - SOVI NÄYTTÖ!
Kaikki kohteemme eivät ole netissä, kerro tilatarpeesi niin kartoitamme vaihtoehdot.
Palvelumme on tilanhakijalle ilmainen
Pyydä lisätietoa
