Vuokrataan toimistotilat, tuotantotilat, varastotilat, muut tilat - Tuusula
Jusslansuora 10, 04360 Tuusula #10842821
Näppärää hallitilaa oman talon eduilla Tuusulassa
Osoite
Jusslansuora 10, 04360 Tuusula
Tilatyyppi
Toimistotilaa
197 m2
Tuotantotilaa
484 m2
Varastotilaa
175 m2
Muuta tilaa
223 m2
Yhteensä
1079 m2
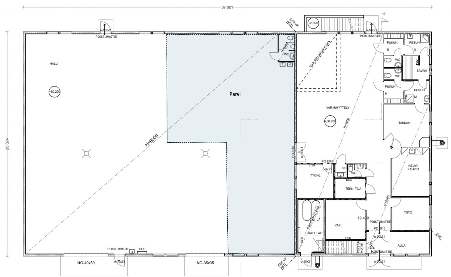
Tilajako
"Muuta tilaa" sisältää esim. showroom- tai toimistokäyttöön soveltuvaa tilaa, sekä kohteen saunalliset sosiaalitilat ensimmäisessä kerroksessa.
Pohjapiirros
Kiinteistö
Kohteen omistaja vuokraa!
Tuusulan Jusslassa kymppisijainnilla Tuusulantien varressa vapautumassa oma talo pihoineen.
Jusslansuora 10 tarjoaa monipuoliset tilat, jotka taipuvat moneen tarpeeseen:
- n. 485 m2 pilaritonta hallitilaa, vapaa korkeus pääosin n. 6 metriä
- n. 175 m2 parvivarasto, joka palvelee hallia
- n. 210 m2 1. krs toimisto-/showroom tilaa sekä sosiaalitilat
- n. 200 m2 2. krs toimistotilaa
Valoisaan hallitilan kaksi sisäänajettavaa nosto-ovea mahdollistaa toimivan lastauksen ja logistiikan. Toimistopäätyyn oma pääsisäänkäynti ja tilojen yhteyteen tehtävissä tarvittaessa showroom- tai asiakastilaa. Sosiaalitilat on varustettu saunalla.
TIlat on siitissä kunnossa, mutta omistajalla valmius remontoida tilat yrityksenne tarpeita vastaavaksi.
Tilava aidattu piha tarjoaa runsaasti (n. 20) autopaikkoja.
Ota yhteyttä ja kerro toimitilatarpeistanne lisää.
Tervetuloa Jusslaan!
Simo Hännikäinen
040 528 1055
simo.hannikainen@aktiivitilat.fi
Tuusulan Jusslassa kymppisijainnilla Tuusulantien varressa vapautumassa oma talo pihoineen.
Jusslansuora 10 tarjoaa monipuoliset tilat, jotka taipuvat moneen tarpeeseen:
- n. 485 m2 pilaritonta hallitilaa, vapaa korkeus pääosin n. 6 metriä
- n. 175 m2 parvivarasto, joka palvelee hallia
- n. 210 m2 1. krs toimisto-/showroom tilaa sekä sosiaalitilat
- n. 200 m2 2. krs toimistotilaa
Valoisaan hallitilan kaksi sisäänajettavaa nosto-ovea mahdollistaa toimivan lastauksen ja logistiikan. Toimistopäätyyn oma pääsisäänkäynti ja tilojen yhteyteen tehtävissä tarvittaessa showroom- tai asiakastilaa. Sosiaalitilat on varustettu saunalla.
TIlat on siitissä kunnossa, mutta omistajalla valmius remontoida tilat yrityksenne tarpeita vastaavaksi.
Tilava aidattu piha tarjoaa runsaasti (n. 20) autopaikkoja.
Ota yhteyttä ja kerro toimitilatarpeistanne lisää.
Tervetuloa Jusslaan!
Simo Hännikäinen
040 528 1055
simo.hannikainen@aktiivitilat.fi
Sijainti
Erinomainen sijainti aivan Tuusulanväylän kupeessa. Lentokentälle ja Kehä III:lle hurauttaa alle 10 minuutissa.
Pysäköinti
Omalla aidatulla pihalla runsaasti autopaikkoja (n. 20 kpl)
Vapautuu
01.01.2026
Rakennusvuosi
2002
Kerros
1-2 / 2
Energiatehokkuusluokka
C2018
E-luku
169 kWhE/m²/vuosi
Katutasossa
Ota yhteyttä
Aktiivitilat AM Oy
Simo Hännikäinen
p.
Näytä puhelinnumero
040 528 1055
Aktiivitilat on kotimainen pääosin pienteollisuus- ja varastokiinteistöihin keskittyvä kiinteistönomistaja. Maantieteellisesti toimimme pääkaupunkiseudulla ja Tampereen seudulla. Tunnemme kohteemme ja ollessasi meihin yhteydessä saat aina ripeää, suoraviivaista ja asiantuntevaa palvelua.
https://www.aktiivitilat.fi/Pyydä lisätietoa
