Vuokrataan toimistotilat - Helsinki
Itämerenkatu 1, Ruoholahti, 00180 Helsinki #10842639
Viehättävä pientoimistotila Ruoholahden sykkeessä!
Osoite
Itämerenkatu 1, 00180 Helsinki
Tilatyyppi
Toimistotilaa
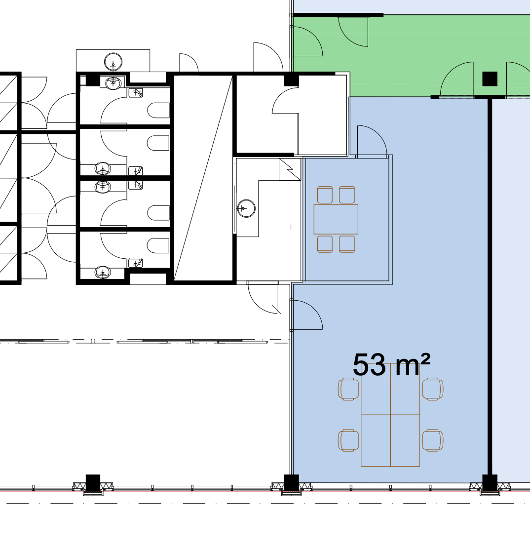
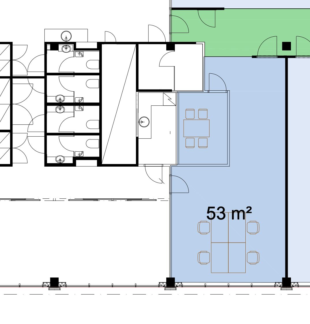
53 m2
Pohjapiirros
Virtuaaliesittely
Kiinteistö
Toimistotilassa on nykyjaolla:
- avotoimistotila
- työ/neuvotteluhuone
Juuri remontoidut yhteiset tilat, keittiö ja wc-tilat löytyvät toimistotilan ulkopuolelta hissiaulasta. Ikkunoista suora näkyvyys kadulle.
- avotoimistotila
- työ/neuvotteluhuone
Juuri remontoidut yhteiset tilat, keittiö ja wc-tilat löytyvät toimistotilan ulkopuolelta hissiaulasta. Ikkunoista suora näkyvyys kadulle.
Sijainti
Kiinteistö sijaitsee vilkkaan Länsisataman vieressä joten kulkuyhteydet maalle sekä merelle ovat erinomaiset. Tallinna vain kahden tunnin päässä. Kiinteistöön on helppo saapua julkisilla kulkuneuvoilla, autolla tai Baanaa pitkin pyörällä.
Pysäköinti
Kiinteistössa on oma pysäköintihalli sekä vuokralaisilla on käytössä pysäköintitilaa viereisestä Ruohoparkista, josta on lämmin kulkuyhteys suoraan kiinteistöön sisälle.
Palvelut
Kaikki kattavat business parkin palvelut;
- Aulapalvelut
- Edustustilat
- Kuntosali
- Lounasravintola
- Sauna
- Vuokrattavat neuvottelutilat
- 20 hengen studio, joka taipuu vaikkapa hybriditapahtumien kisakatsomoksi tai kokoustilaksi
- Aulapalvelut
- Edustustilat
- Kuntosali
- Lounasravintola
- Sauna
- Vuokrattavat neuvottelutilat
- 20 hengen studio, joka taipuu vaikkapa hybriditapahtumien kisakatsomoksi tai kokoustilaksi
Kulkuyhteydet
Raitiovaunu suoraan kiinteistön edessä
Bussipysäkki suoraan kiinteistön edessä
Länsiterminaali 1,7 km
Metro 550 m
Bussipysäkki suoraan kiinteistön edessä
Länsiterminaali 1,7 km
Metro 550 m
Muuta
Tutustu tiloihin kätevästi 3D virtual kierroksen avulla ja pääset kiertämään tilat kätevästi ennen varsinaista esittelyä ja pääset tutustumaan pohjakuvaan helposti.
Vapautuu
Heti
Rakennusvuosi
1998
Energiatehokkuusluokka
Ei lain edellyttämää energiatodistusta
Näkyvällä paikalla
Ota yhteyttä
Comreal Oy LKV
Joonas Nilsson
Näytä puhelinnumero
044 328 3425
Läkkisepänkuja 6, 00620 Helsinki
Comreal on valtakunnallinen, asiantunteva ja aktiivinen kiinteistöalan kumppani, joka palvelee sekä kiinteistönomistajia että toimitilojen käyttäjiä. Toimintamme ydin on yksinkertainen: tarjota erinomaista palvelua kaikille.
Pyydä lisätietoa
