Vuokrataan toimistotilat - Helsinki
Kalevankatu 30, Kamppi, 00100 Helsinki #10842261
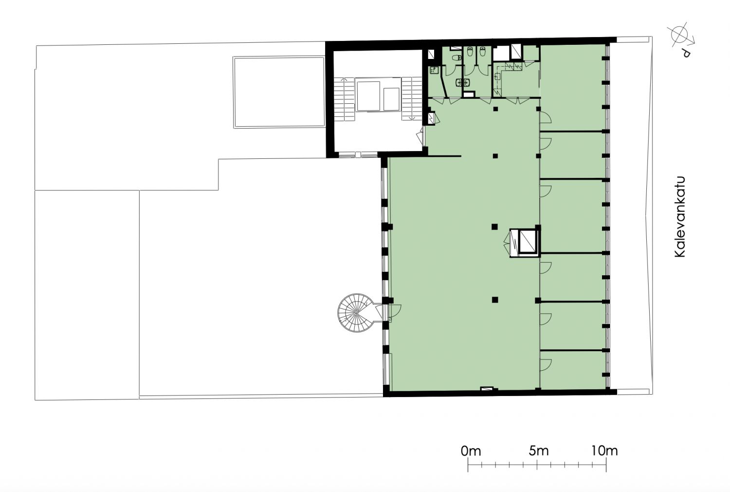
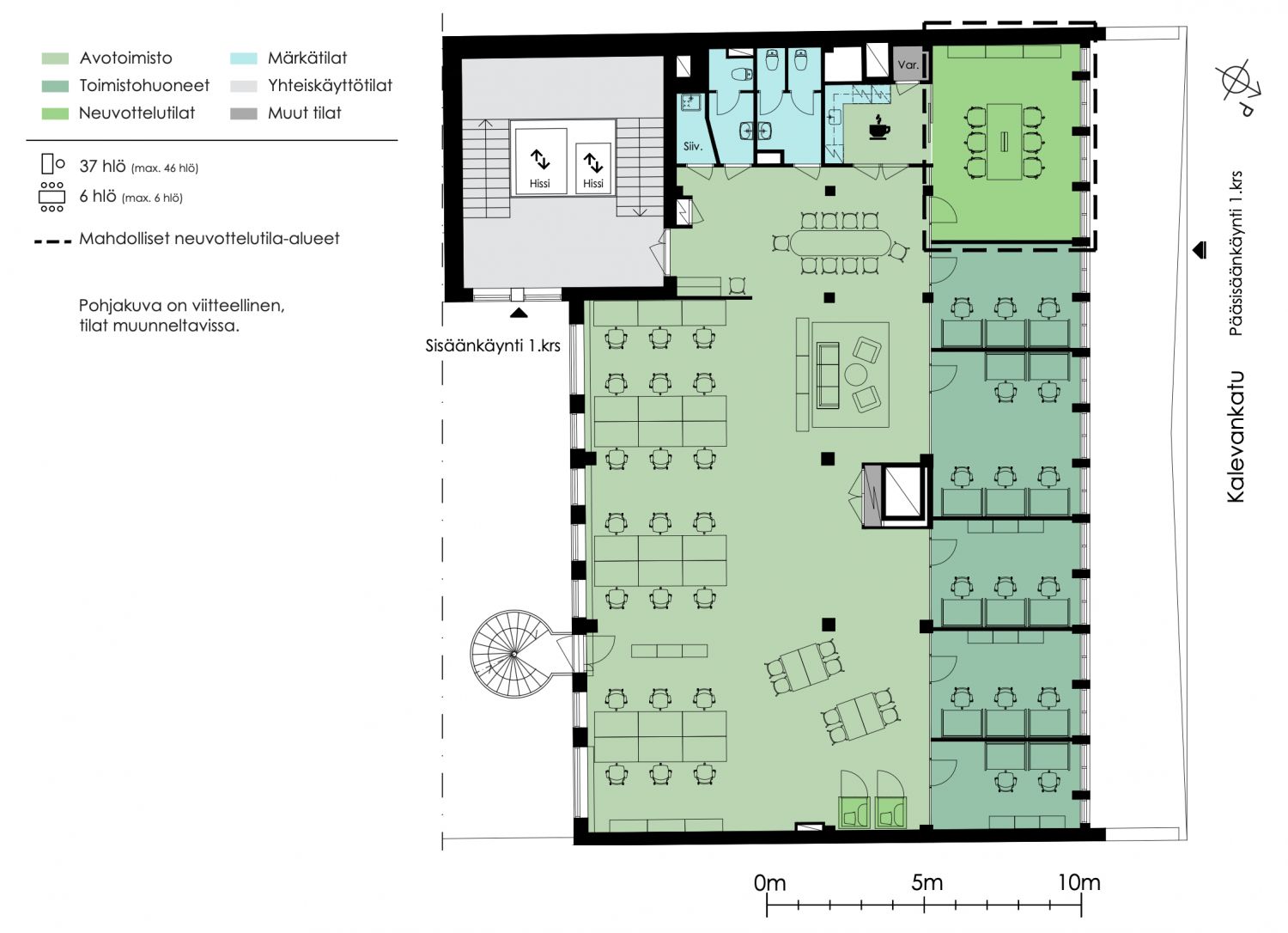
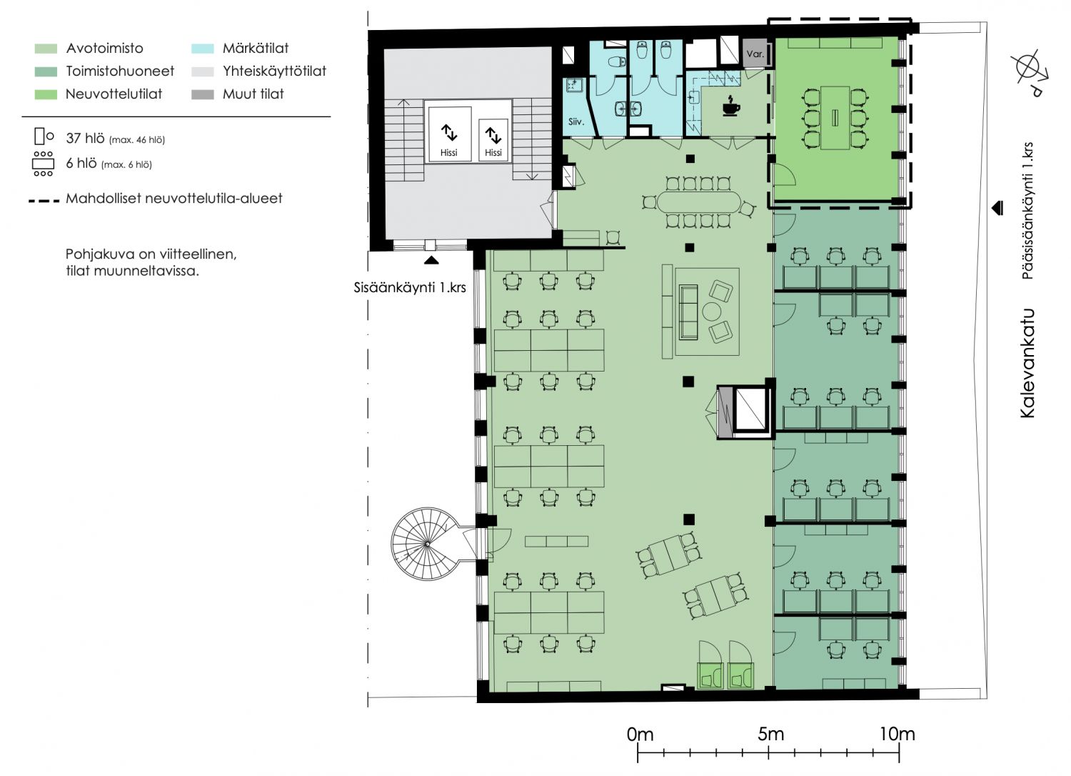
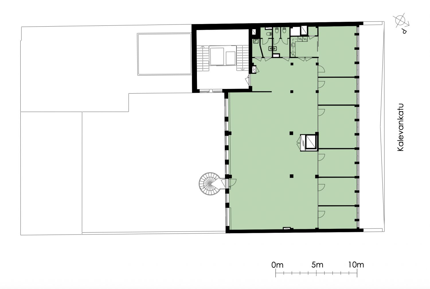
Yläkerran valoisa, korkea, avara ja hyväkuntoinen toimitila loistavilla näkymillä etelään.
Osoite
Kalevankatu 30, 00100 Helsinki
Tilatyyppi
Toimistotilaa
361 m2
Pohjapiirros
Kiinteistö
Vanhassa ja luonteikkaassa tehdasrakennuksessa sijaitsevia nykyaikaisia toimistotiloja vain kivenheiton päässä kauppakeskus Kampista.
Tämä toimistokiinteistö on vuonna 1928 rakennettu vanha tehdasrakennus, joka on peruskorjattu vuonna 1999. Vanhan tehdasmiljöön henkeä edelleen huokuvat tilat tarjoavat nykyaikaiset ja luonteikkaat puitteet monenlaisille toimijoille. Talossa on monimuotoisia, erikorkuisia tiloja, mikä luo ulottuvuuksia myös erikoisemmille ja vähän särmikkäämmillekin tilaratkaisuille.Tässä ainutlaatuisessa kiinteistössä on vuokrattavana toimisto- ja liiketilaa seitsemässä kerroksessa. Avarat tilat ovat tarpeen tullen muunneltavissa yrityskohtaisesti. Kellarikerroksesta on vuokrattavissa myös varastotiloja.
Kiinteistölle on myönnetty BREEAM In-Use Excellent -tason ympäristösertifikaatti. BREEAM (Building Research Establishment Environmental Assessment Method) on kansainvälinen rakennusten ympäristöluokitusjärjestelmä, joka tähtää rakennuksen käytön ympäristövaikutusten vähentämiseen sekä terveellisempien työympäristöjen kehittämiseen.
Tämä toimistokiinteistö on vuonna 1928 rakennettu vanha tehdasrakennus, joka on peruskorjattu vuonna 1999. Vanhan tehdasmiljöön henkeä edelleen huokuvat tilat tarjoavat nykyaikaiset ja luonteikkaat puitteet monenlaisille toimijoille. Talossa on monimuotoisia, erikorkuisia tiloja, mikä luo ulottuvuuksia myös erikoisemmille ja vähän särmikkäämmillekin tilaratkaisuille.Tässä ainutlaatuisessa kiinteistössä on vuokrattavana toimisto- ja liiketilaa seitsemässä kerroksessa. Avarat tilat ovat tarpeen tullen muunneltavissa yrityskohtaisesti. Kellarikerroksesta on vuokrattavissa myös varastotiloja.
Kiinteistölle on myönnetty BREEAM In-Use Excellent -tason ympäristösertifikaatti. BREEAM (Building Research Establishment Environmental Assessment Method) on kansainvälinen rakennusten ympäristöluokitusjärjestelmä, joka tähtää rakennuksen käytön ympäristövaikutusten vähentämiseen sekä terveellisempien työympäristöjen kehittämiseen.
Sijainti
Kulkuyhteydet ovat loistavat, sillä Kampin metroasema on vain viiden minuutin kävelymatkan päässä. Lisäksi monet bussi- ja raitiovaunulinjat kulkevat aivan läheltä.
Pysäköinti
Autopaikat sisäpihalla sekä kadunvarressa
Palvelut
Lähialueella on runsaasti ravintoloita, kauppoja, hotelleja. Kauppakeskus Kamppi monipuolisine palveluineen on vain kivenheiton päässä.
Kulkuyhteydet
Lähimmälle bussipysäkille 150 m
Lähimmälle juna-asemalle 850 m
Lähimmälle metroasemalle 600 m
Lähimmälle raitiovaunupysäkille 350 m
Lentokentälle 30 min
Lähimmälle juna-asemalle 850 m
Lähimmälle metroasemalle 600 m
Lähimmälle raitiovaunupysäkille 350 m
Lentokentälle 30 min
Vapautuu
Kysy
Rakennusvuosi
1928
Kerros
6
Energiatehokkuusluokka
C2018
Ympäristöluokitus
BREEAM In-Use Excellent,GRESB Global Sector Leader 2025
Ota yhteyttä
Sponda Oy
Yrjönkatu 29C, 00100 Helsinki
Näytä puhelinnumero
020 43131
Joni Rajaniemi
Senior Leasing Manager
Näytä puhelinnumero
+358 50 505 7504
Sponda Oy
https://www.sponda.fiPyydä lisätietoa
