Vuokrataan toimistotilat - Helsinki
Meritullinkatu 1, Keskusta, 00170 Helsinki #10842055
Upea 494 m² toimisto Helsingin merellisessä ydinkeskustassa Aleksanterinkadun päässä.
Osoite
Meritullinkatu 1, 00170 Helsinki
Tilatyyppi
Toimistotilaa
494 m2
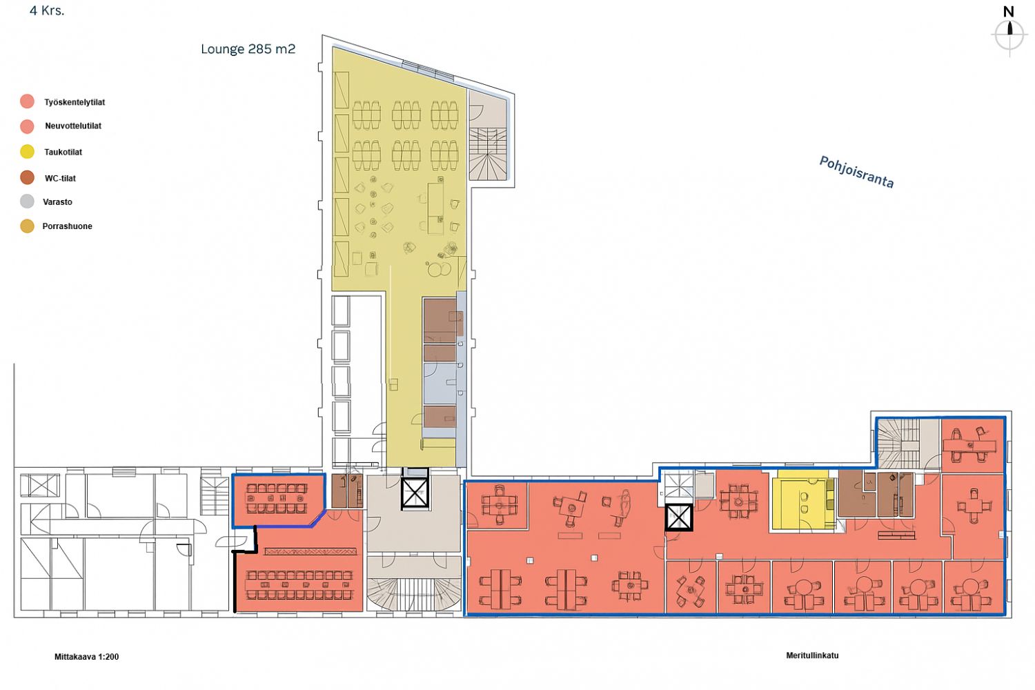
Pohjapiirros
Kiinteistö
Ainutlaatuinen noin 494 m² toimistotila Helsingin kantakaupungin merellisessä Kruununhaassa, osoitteessa Meritullinkatu 1. Tilat sijaitsevat kiinteistön 4. kerroksessa, ja niistä avautuvat upeat merinäkymät. Toimisto koostuu erillisistä huoneista, neuvottelutiloista sekä avotilasta, tarjoten monipuoliset ja muunneltavat puitteet erikokoisille yrityksille. Tilava pohjaratkaisu yhdistää työskentelymukavuuden ja tehokkuuden, ja suuret ikkunat tuovat runsaasti luonnonvaloa sisätiloihin. Tilan neliömäärässä on mukana yhteistilojen jyvitykset.
Meritulli 1 on historiallisesti arvokas ja arkkitehtonisesti omaleimainen toimitilakiinteistö, joka on modernisoitu vastaamaan nykypäivän tarpeita. Kiinteistö tarjoaa korkeatasoiset tekniset ratkaisut ja yrityksille joustavasti muokattavat tilat. Käytettävissä ovat myös monipuoliset palvelut, kuten pyöräparkki, kuntosali ja sosiaalitilat, jotka tukevat työhyvinvointia ja arjen sujuvuutta.
Meritulli 1 on historiallisesti arvokas ja arkkitehtonisesti omaleimainen toimitilakiinteistö, joka on modernisoitu vastaamaan nykypäivän tarpeita. Kiinteistö tarjoaa korkeatasoiset tekniset ratkaisut ja yrityksille joustavasti muokattavat tilat. Käytettävissä ovat myös monipuoliset palvelut, kuten pyöräparkki, kuntosali ja sosiaalitilat, jotka tukevat työhyvinvointia ja arjen sujuvuutta.
Sijainti
Sijainti tarjoaa Kruununhaan parhaat puolet: aamiainen Kauppatorilla, virkistävä uinti Allas Sea Poolilla tai rauhalliset kävelyt Tervasaaren ympäri ovat osa arjen luksusta. Läheisyydessä sijaitsevat useat tunnetut maamerkit, kuten Presidentinlinna, Tuomiokirkko, Uspenskin katedraali, Suomen Pankki ja Säätytalo. Kruununhaan tunnelmalliset ravintolat, kahvilat ja kivijalkaliikkeet palvelevat aivan kulman takana, ja Helsingin ydinkeskustaan on vain muutaman minuutin kävelymatka. Lähin ruokakauppa löytyy 50 metrin päästä, ja vihreän liikkumisen mahdollisuudet, kuten kiinteistön oma pyöräparkki ja kaupunkipyöräasemat, tekevät arjesta entistä helpompaa..
Vapautuu
Heti
Rakennusvuosi
1839
Saneerausvuosi
2022
Kerros
4 / 6
Energiatehokkuusluokka
Ei lain edellyttämää energiatodistusta
Näkyvällä paikalla
Hissi
Ota yhteyttä
ScanReal Oy LKV
Opus Business Park
Hitsaajankatu 24
00810 Helsinki
info@scanreal.fi
Puh:
Näytä puhelinnumero
020 730 8830
Sopivat toimitilat yhdellä otolla!
Kartoitamme toimitilatarpeesi ja etsimme yrityksellesi parhaiten sopivat vapaat toimitilat. Koska vuokranantajat maksavat palvelumme, on tämä yrityksellesi veloituksetonta.
OTA YHTEYTTÄ - SOVI NÄYTTÖ!
Kaikki kohteemme eivät ole netissä, kerro tilatarpeesi niin kartoitamme vaihtoehdot.
Palvelumme on tilanhakijalle ilmainen
Pyydä lisätietoa
