Vuokrataan toimistotilat - Helsinki
Pursimiehenkatu 29-31, Punavuori, 00150 Helsinki #10841649
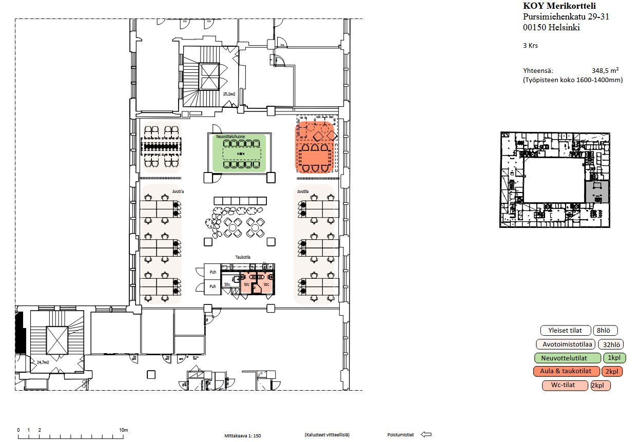
Vapaana toimistotila Merikorttelissa Punavuoressa 360 m²
Osoite
Pursimiehenkatu 29-31, 00150 Helsinki
Tilatyyppi
Toimistotilaa
360 m2
Kiinteistö
Merikorttelin historiallisessa miljöössä Punavuoressa vuokrattavana on 362 m² kokoinen industrial-henkinen toimisto. Tila on muuttovalmis ja siinä on korkea huonekorkeus, joka tuo avaruutta ja valoisuutta työympäristöön.
Tilojen tiedot:
362 m² toimistotilaa, 3. kerros
Muuttovalmis – heti käyttöön otettavissa
Sopii 30–60 henkilölle
Industrial-tyylinen tila, korkea huonekorkeus ja valoisa ympäristö
Tämä tila tarjoaa modernin ja inspiroivan työympäristön yritykselle, joka arvostaa tunnelmaa ja toimivuutta yhdistettynä Punavuoren legendaariseen Merikortteliin.
Tilojen tiedot:
362 m² toimistotilaa, 3. kerros
Muuttovalmis – heti käyttöön otettavissa
Sopii 30–60 henkilölle
Industrial-tyylinen tila, korkea huonekorkeus ja valoisa ympäristö
Tämä tila tarjoaa modernin ja inspiroivan työympäristön yritykselle, joka arvostaa tunnelmaa ja toimivuutta yhdistettynä Punavuoren legendaariseen Merikortteliin.
Sijainti
Lähistöllä on paljon ravintoloita ja Hietalahden kauppahalli löytyy nurkan takaa. Punavuoreen on hyvät kulkuyhteydet ja Baana sijaitsee ihan vieressä. Merenranta on vain kivenheiton päässä.
Palvelut
Tunnelmallinen Merikortteli on ainutlaatuinen kiinteistö merellisen Punavuoren sydämessä.
Talossa toimii monipuolinen joukko yrityksiä kahvipaahtimoista mainostoimistoihin, jotka yhdessä muodostavat ainutlaatuisen ja eloisan työyhteisön. Keväällä 2022 palvelutarjonta laajentui italialaisesta pizzakulttuurista elävän Forzan ja leipomo-ravintola Levainin myötä. Korttelissa on myös tunnelmallinen elokuvateatteri Riviera. Viime vuosina valtavasti kehittyneellä Telakkakadulla sijaitsevasta Merikorttelista löytyy jo entuudestaan muun muassa kahvipaahtimo-kahvila Kaffa Roastery ja lounasravintola-kahvila Moko Market Café.
Lounasravintola / kahvila
Neuvottelutiloja
Joustotilat
Parkkihalli
Pyöräparkki
Päivittäistavarakauppa
Sähköauton latauspiste
Wellness-palveluita
Talossa toimii monipuolinen joukko yrityksiä kahvipaahtimoista mainostoimistoihin, jotka yhdessä muodostavat ainutlaatuisen ja eloisan työyhteisön. Keväällä 2022 palvelutarjonta laajentui italialaisesta pizzakulttuurista elävän Forzan ja leipomo-ravintola Levainin myötä. Korttelissa on myös tunnelmallinen elokuvateatteri Riviera. Viime vuosina valtavasti kehittyneellä Telakkakadulla sijaitsevasta Merikorttelista löytyy jo entuudestaan muun muassa kahvipaahtimo-kahvila Kaffa Roastery ja lounasravintola-kahvila Moko Market Café.
Lounasravintola / kahvila
Neuvottelutiloja
Joustotilat
Parkkihalli
Pyöräparkki
Päivittäistavarakauppa
Sähköauton latauspiste
Wellness-palveluita
Vapautuu
Heti
Energiatehokkuusluokka
Ei lain edellyttämää energiatodistusta
Katutasossa
Näkyvällä paikalla
Liitetiedostot
Ota yhteyttä
Arvo Premises Oy
Joakim Kukkonen
Osakas, Toimitilavälittäjä
Näytä puhelinnumero
040 555 8106
Seppo Pakarinen
Osakas, Kiinteistönvälittäjä. LKV, YKV, AKA
Näytä puhelinnumero
040-703 8000
Pyydä lisätietoa
