Videoesittely
Myydään varastotilat, työtilat - Helsinki
Vesilinnankatu 31, Alppila, 00510 Helsinki #10841435
Harvinainen kellaritila Alppilasta – Puolikas Vastike!
Osoite
Vesilinnankatu 31, 00510 Helsinki
Tilatyyppi
Varastotilaa
35 m2
Työtilaa
35 m2
Yhteensä
35 m2
Virtuaaliesittely
Myyntihinta
34'900 € (velaton myyntihinta)
Muuta
Nyt myynnissä varastotila Oy Helsingin Vesilinnankatu 31:n kellarikerroksessa, erinomaisella sijainnilla Linnanmäen kupeessa ja hyvien kulkuyhteyksien läheisyydessä.
Tila myydään vuokrattuna.
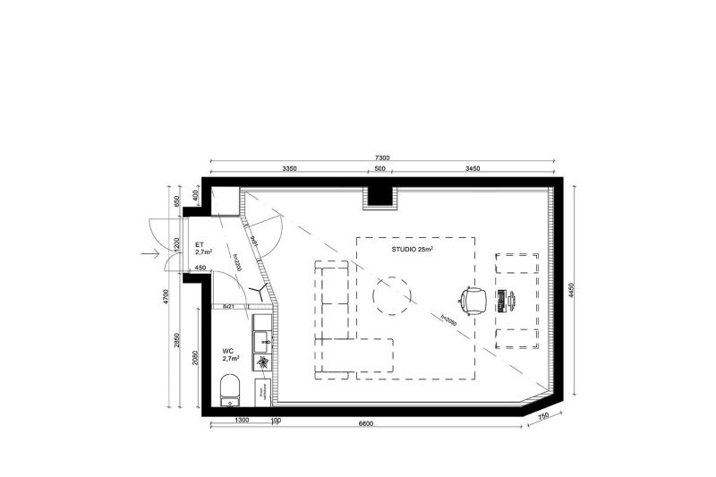
Tila on pinta-alaltaan 35 m² ja sen sisäkorkeus on 2,5 metriä. Tilassa ei ole WC eikä vesipistettä. Alustavan kyselyn mukaan ostajalla on mahdollista rakennuttaa tilaan WC.
Tila soveltuu parhaiten varastointiin, mutta voi soveltua myös työtilaksi käsityötekijälle (kts kuvista tilan hahmotelma harrastetilana, huom! tilassa ei ole ikkunoita). Yhtiöjärjestyksen mukaan askartelutilan vastikeperuste on vain ½ normaalista pinta-alasta, mikä tekee ylläpitokustannuksista erittäin kohtuulliset. Sähkökin sisältyy vastikkeeseen.
Lämmitysmuotona taloyhtiössä on kaukolämpö ja yhtiöllä on oma tontti.
Paikoitustilaa löytyy hyvin kadun vastapäätä olevalta parkkipaikalta.
Huoneiston vastikekerroin on vain 50 %!
Hyvällä sijainnilla laadukas pieni varastotila!
Kohdetiedot
Sijainti
Katuosoite: Vesilinnankatu 31, 00510 Helsinki
Kaupunginosa: Alppila
Ympäristö: Alppilan kaikki palvelut
Rakennus/huoneisto
Pinta-alat: 35 m²
Huoneistoselitelmä: Varastotila
Kerros: Kellari, maan alla
Kunto, varusteet ja palvelut: Siisti tila
Vapautuu: Myydään vuokrattuna
Myyntihinta ja kulut
Myyntihinta: 27’700 €
Lainaosuus: 7’200 €
Velaton myyntihinta: 34’900 €
Hoitovastike: 151,55 €/kk
Pääomavastike: 121,45 €/kk
Lämmitys: Sisältyy vastikkeeseen (kaukolämpö)
Sähkömaksu: Mittauksen/kulutuksen mukaan
Tila myydään vuokrattuna.
Tila on pinta-alaltaan 35 m² ja sen sisäkorkeus on 2,5 metriä. Tilassa ei ole WC eikä vesipistettä. Alustavan kyselyn mukaan ostajalla on mahdollista rakennuttaa tilaan WC.
Tila soveltuu parhaiten varastointiin, mutta voi soveltua myös työtilaksi käsityötekijälle (kts kuvista tilan hahmotelma harrastetilana, huom! tilassa ei ole ikkunoita). Yhtiöjärjestyksen mukaan askartelutilan vastikeperuste on vain ½ normaalista pinta-alasta, mikä tekee ylläpitokustannuksista erittäin kohtuulliset. Sähkökin sisältyy vastikkeeseen.
Lämmitysmuotona taloyhtiössä on kaukolämpö ja yhtiöllä on oma tontti.
Paikoitustilaa löytyy hyvin kadun vastapäätä olevalta parkkipaikalta.
Huoneiston vastikekerroin on vain 50 %!
Hyvällä sijainnilla laadukas pieni varastotila!
Kohdetiedot
Sijainti
Katuosoite: Vesilinnankatu 31, 00510 Helsinki
Kaupunginosa: Alppila
Ympäristö: Alppilan kaikki palvelut
Rakennus/huoneisto
Pinta-alat: 35 m²
Huoneistoselitelmä: Varastotila
Kerros: Kellari, maan alla
Kunto, varusteet ja palvelut: Siisti tila
Vapautuu: Myydään vuokrattuna
Myyntihinta ja kulut
Myyntihinta: 27’700 €
Lainaosuus: 7’200 €
Velaton myyntihinta: 34’900 €
Hoitovastike: 151,55 €/kk
Pääomavastike: 121,45 €/kk
Lämmitys: Sisältyy vastikkeeseen (kaukolämpö)
Sähkömaksu: Mittauksen/kulutuksen mukaan
Vapautuu
Myydään vuokrattuna
Ota yhteyttä
Tilat.fi
KTM, LKV Antti Soivio
Näytä puhelinnumero
0400 446 553
OTM, LKV Riikka Tuominen
Näytä puhelinnumero
0400 551 790
KTM, LKV Maria-Sofia Puhakka
Näytä puhelinnumero
0400-150330
MBA Susanne Wallenius
Näytä puhelinnumero
0400-128877
Yrityksen virallinen nimi: LKV Tilat.fi Oy.
Toimitilojen välitykseen erikoistunut yritys.
Pyydä lisätietoa
