Ainanlinna Kauppakadulta/Hämeenkadulta kuvattuna
Ainanlinna Kauppakadulta/Hämeenkadulta kuvattuna
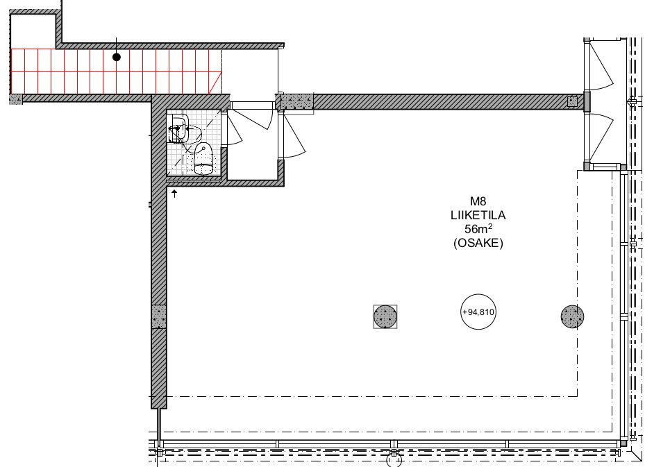
Liiketilan M 8 pohjapiirros sekä WC ja portaikko kellarivarastoon MV 12
Liiketilan M 8 pohjapiirros sekä WC ja portaikko kellarivarastoon MV 12
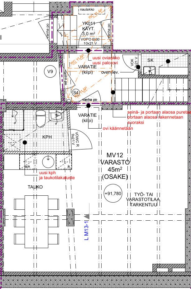
kellarin suunnitelma
kellarin suunnitelma
Kuvakulma puistomaiselta Näsilinnankadulta, HUOM!  neljä suurta näyteikkunaa.
Kuvakulma puistomaiselta Näsilinnankadulta, HUOM! neljä suurta näyteikkunaa.
Kauppa- ja Näsilinnankadun kulmaliiketila
Kauppa- ja Näsilinnankadun kulmaliiketila
Sisäänkäynti Kauppakatu 12 kulmaliiketilaan
Sisäänkäynti Kauppakatu 12 kulmaliiketilaan
Kuvakulma liikkeestä Näsilinnankadulle, neljä suurta näyteikkunaa.
Kuvakulma liikkeestä Näsilinnankadulle, neljä suurta näyteikkunaa.
Avonainen ikkunataso Kauppakadun ja Näsilinnankadun risteykseen.
Avonainen ikkunataso Kauppakadun ja Näsilinnankadun risteykseen.
Sisäänkäynti ja näyteikkunat Kauppakadulle. Huom!  Lämpöpatterit ikkunapenkkien alla.
Sisäänkäynti ja näyteikkunat Kauppakadulle. Huom! Lämpöpatterit ikkunapenkkien alla.
MV 12 kuvattu oviaukosta tilan vastakkaiselle seinälle
MV 12 kuvattu oviaukosta tilan vastakkaiselle seinälle
MV 12  kuvattu ovesta oikealle ja kohti takaseinää.
MV 12 kuvattu ovesta oikealle ja kohti takaseinää.
MV 12 kuvattu ovesta oikealle kohti takaseinää.
MV 12 kuvattu ovesta oikealle kohti takaseinää.
MV 12 sisääntulon oviaukko ja seinä
MV 12 sisääntulon oviaukko ja seinä

Vuokrataan toimistotilat, liiketilat, näyttelytilat, tuotantotilat, varastotilat, työtilat, muut tilat - Tampere

Liikehuone M 8 = myymälä nro 8 Ainanlinnassa, Kauppakatu 12, 33210 Tampere #10840889

Paras, näyttävin vapaa kulmaliikehuoneisto Tampereen keskustassa, 56 m2 myymälätilaa ja 45 m2 varastotilaa. Hyvät liikenneyhteydet esi-kaupungeista ja lähikunnista raitiotie- ja bussiyhteyksin.

Osoite
Kauppakatu 12, 33210 Tampere
Tilatyyppi
Toimistotilaa
101 m2
Liiketilaa
101 m2
Näyttelytilaa
45 m2
Tuotantotilaa
101 m2
Varastotilaa
45 m2
Työtilaa
101 m2
Muuta tilaa
101 m2
Yhteensä
101 m2
Tila soveltuu
Studio/ateljé, koulutus, parturi- ja kampaamo, popup
Kiinteistö
Kiinteistö valmistunut v. 1952, täydellinen putki- ja sähköremontti valmistunut v. 2018. Talon kunnosta pidetään hyvää huolta ja kiinteistö on omalla tontilla.
Kiinteistön palvelut
Kiinteistöpalvelut, Piha, Pyöräparkki
Sijainti
Tampereen keskustan näyttävin vapaa Kauppa- ja Näsilinnankadun kulmaliikehuoneisto, näyteikkunapintaa 6 m + 9 m = 15 m, liiketila 56 m2 katutasossa ja täydentävä kellarivarasto 45 m2 heti vapaana. Liikehuoneistoon on valokaapeli- ja TV-yhteys.
Ympäristö
Hyvä, säännöllinen ratikkayhteys Hervannasta (etelä), Tays:sta(itä) ja Lentävänniemestä (länsi) sekä pian Linnainmaalta(itä) sekä luonnollisesti bussiyhteydet naapurikuntiin.
Pysäköinti
Ainanlinnan pihassa yksi paikka varattu liikehuoneelle (90 €/kk), maksullisia kadunvarsipaikkoja liikkeen molemmin puolin ja parkkitalossa n. 150 m Näsilinnankatu 13.
Palvelut
Ravintola Thai & Laos Ainanlinnassa, ravintolat Ståhlberg Näsilinnankadulla ja Tiiliholvi Kauppakadulla, pääkirjasto Metso n. 150 m, Keskustori 150 m, rautatieasema 900 m ja ratikkapysäkit n.80 m, Tampereen pääkatu Hämeenkatu 60 m. Tavarataloja sekä K- ja S- liikkeitä lähikortteleissa sekä useita erikoisliikkeitä.
Kulkuyhteydet
Lentokentältä ulkomaanyhteyksiä sekä Helsinkiin, bussiyhteydet maakuntakeskuksiin sekä eri kaupunkeihin, Kotka - Hamina, Helsinki, Turku, Jyväskylä jne.
Vuokralaisia
Ainanlinnassa on ravintola Thai & Laos, kauneudenhoitoalan eri tyyppisiä mm. parturi- kampaamoyrityksiä, vaatteiden tuontia harjoittava yritys, yhteensä yli 10 kappaletta.
Muuta
Talosta huolehditaan hyvin ja liiketiloihinkin on veloituksetta tietoliikenne-valokuituyhteydet 100/100, lisänopeudet eri maksusta ja TV- antennipistoke.
Lisätietoa saneerauksista
Täydellinen putkiremontti, sähkökeskukset kaikissa tiloissa uusittu, asuntojen ovisummerijärjestelmä luotu, valokuituyhteys 100/100 nopeuksinen veloituksetta, lisänopeudet maksullisia, SOL-huoltojärjestelmä, pyöräparkki, jätteiden lajittelu, liikehuoneille ikkunamarkiisit, yhteistilojen pinnat maalattu,
Vapautuu
Heti vapaa
Rakennusvuosi
1952
Kerros
1 / 10
Huoneiden lukumäärä
1

Katutasossa

Näkyvällä paikalla

Ota yhteyttä

puh. Näytä puhelinnumero 040-5066602 Pekka Tanskanen

Kadunpuolen ikkunoiden yläpuolella on markiisi-aurinkosuojat, ohjataan kaukosäätimellä.

Pyydä lisätietoa

Kohteesta Kauppakatu 12, Tampere

 

B2B palvelut

LASTAUSRATKAISUT

Mainos
Lastauksien ratkaisut tehokkaammin ja turvallisemmin

HALLIT